查看完整案例

收藏

下载
公寓, Los Angeles, 美国
建筑设计:Dan Brunn Architecture
面积:2520 .2501349m²
项目年份:2021
摄影师: Brandon Shigeta
厂家:Atlas Concorde, Caesarstone, Cambridge Elevating, Concrete Collaborative, Miele, Mosa, SYNLawn, StyleLine, Sun Valley Skylights
主创建筑师:Dan Brunn
City:Los Angeles
Country:美国
在完成一位客户的威尼斯海滨住宅设计几年后,建筑师丹·布伦( Dan Brunn )又接受了在附近设计第二幢海滨住宅的委托。委托的要求非常直接——房屋的结构可以在最少维护的情况下,抵御恶劣的海洋天气。布伦的直接反应是设计建造的一个全混凝土结构。
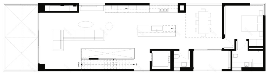
建在一块密集的场地上,面对海滩,宽度仅8.5米,这样的场地条件对细节要求很高,以保证灵活的建筑功能、自然采光和户外空间。
布伦的设计从空间规划开始,通过在BIM软件中堆叠虚拟立方体的方式构思,尝试不同的设计直到视野、隐私和自然光线之间的对比合适。通常立方体块设计导致了体块间的推拉,具有正负空间的二元性,因此被命名为:正向的负。我们可以把这栋住宅比作一块经过凿刻的石头,比作一个实心的体块,在其本来笨重的特性中还有轻盈流动的空间。
这种设计方式中必不可少的是流线编排,空间和结构的排列造就了它的特点,即当人们在空间内移动时可以有鲜明的导向。这种体验在楼梯中庭里非常显著,每一层下降的楼梯重复的形状组成了一系列的右转弯。
所规划的运动流线突出了多个有广阔街景视野的位置点,并产生了强烈的视觉冲击。将用户体验放在心中来设计建筑符合布伦的人文主义设计方法,他称之为“ Empathetic Design ”,旨在引起反思和参与。
宽敞空间、开放式阳台和各种材料的组合渗透了各种环保设计方法。主体结构由垂直板状混凝土建造,其间点缀着光滑的白色抹灰墙、磨砂木制品和光滑的水磨石地面。屋顶上有高效的太阳能系统提供被动降温和地板辐射供暖以调节住宅温度。
文字描述由建筑师提供
译者:陈世洁
项目完工照片 | Finished Photos
客服
消息
收藏
下载
最近















































