查看完整案例

收藏

下载
房屋,印度艾哈迈达巴德
设计师:Naman Shah Architects, SferaBlu Architects
面积: 440 .2501349m²
年份:2020
摄影:Umang Shah
建造商: Jaquar, ARTIZE, Bharat Floorings, Green House Enterprise, NOYA Studio, Philips, Prato Kitchens & More, Shri Rang Glass, Techtona Grandis
首席设计师:Naman Shah
建筑设计:Tarjini Parikh, Binal Shah, Jasmit Bagga
室内设计:Rahul Patil
现场工程师:Bhaumik Kadiya
项目实习生:Shreya Biscuitwala, Lavina Alagh, Niyati
家具:Paramjitsingh Phull
地板:Babulal D. Prajapati
设计师:SferaBlu
结构顾问:Innovative Designs
景观建筑: Prabhaker B. Bhagawat
土建承包商:Shree Shreenathji Buildcon
自动化:All Automatic
制造:Geeta Engineering Works
城市:Ahmedabad
国家:印度
设计师描述 | Designer description:
这个项目的客户是两个女孩。 分别为3年和9年。 这房子是按照他们的幻想为他们建造的,并呼吁他们的敏感性。 为了生态友好,重点在于当地材料和技术,升级,回收利用,以确保最小的碳足迹。
现在,地球已经永远存在了。 它经受了时间的考验。 因此,将这个土变成了房屋就很有意义了。[/ b]仅使用正常建筑通常需要的6-8%的水泥的房屋。 在乡村,人们经常用泥土建造房屋。 将相同的想法带入主流建筑中,我们通过夯实从场地本身挖出的泥土来建造房屋的结构墙。 大地提供了绝热,也减少了能源消耗。 为了添加有趣的元素(如在分层砂岩中看到的图案),可以使用不同的天然氧化物在大型整料中创建分层的流体图案。 这些女孩的石头和贝壳收藏品也被添加到墙上,以保留他们的美好回忆。
旧建筑的木头被熟练地升级成框架,门和窗户。 围绕传统石灰石膏混合物的研究表明,有一些配方可以滤除空气中的毒素。 我们邀请了代代相传的技术专家。
孩子们问我们能否建立一个可以改变的上限。 因此,我们决定为生活随天气变化的情况准备一个倾斜的玻璃。 凝视和整洁的天花板。 充满动感的天花板,可以仿照云层中的图案,体验雨水,就像头上的瀑布,整夜凝视着月亮和星星! 凉爽的北极光全天照亮房屋,减少了用电量。
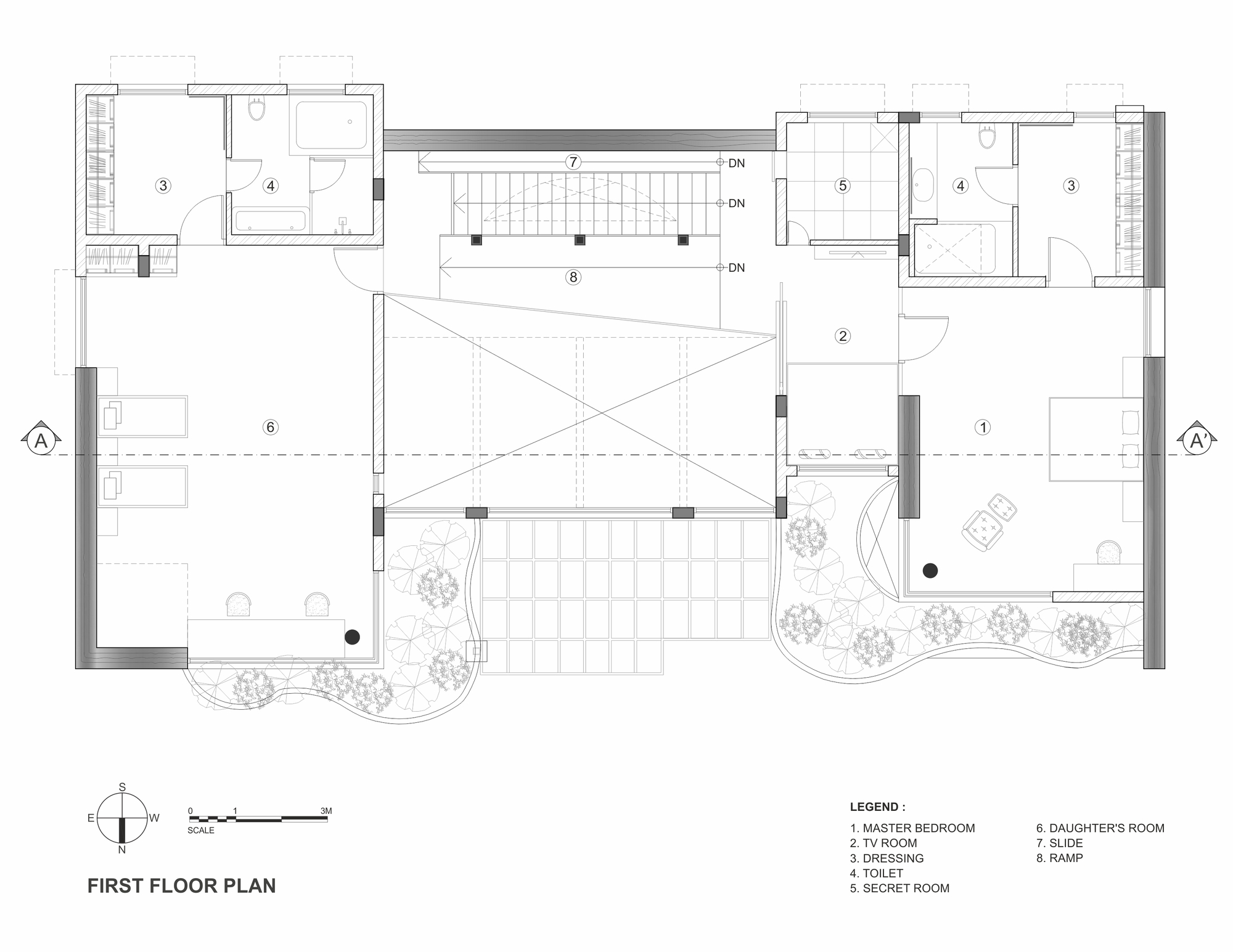
这个想法是使它成为一个游戏屋。 由于艾哈迈达巴德(Ahmedabad)在夏天变热,我们决定将操场带入屋内。 一楼有一张幻灯片滑落下来。 有一个秘密房间! 一个有三个不同的条目,但是每个条目都是一个谜。 当我们制作一个断头台门,一个看上去像是隔断的滑动门,以及是一楼书架一部分的楼梯时,他们的兴奋无止境。
一楼的桥斜向下走到女孩的房间,为时尚达人即兴走秀。 接下来是一张杂技床,吊在天花板上,绳梯上升,有很多攀爬和跳跃的机会。 屋子里还有很多古怪的东西,例如一个隐藏的水池。 看起来就像就餐柜台,但提起一个翻盖,向外折叠一面镜子,那里有一个洗手盆。 他们的素描本上的草图变成了窗户的格栅,隔板上的黑板,将毕加索带入其中。
项目完工照片 | Finished Photos
设计师:SferaBlu Architects
分类:Houses
语言:英语
客服
消息
收藏
下载
最近

























