查看完整案例

收藏

下载
由 Lenovo 联想集团与 UCCA Lab 打造的「从未来到未来——数字文明艺术展」,通过“未来序曲”“奔腾时代”“数字新生”“瞬息万物”“遇见未来”5 个篇章,为人们呈现了一场科技探索之旅。1190㎡的大型展览空间,由 KiKi 建筑设计事务所创始人及主持建筑师关佳彦打造,设计师用时间轴的叙事形式,将人类、电子通信设备与环境之间的关系,内化为空间逻辑,并以大事记为线索,表述了“数字信息”在速度、尺度、框架、边界等维度上的发展与变革。
“The Future To Be – Evolution of Digital Culture,” created by Lenovo Group and UCCA Lab, presents a journey of technological exploration through five chapters: “Future Overture,” “Surging Waves,” “New Digital Life,” “Everything and Everywhere,” and “Our Future Selves.” With a space of 1190 square meters, Yoshihiko Seki, the founder & director of KiKi ARCHi internalized the changes between humans, electronic devices, and the environment, and turned them into their design logic for the exhibition space. Threaded together by the chronological milestones in technological advancement, the space design provided narration on how digital information across dimensions such as speed, scale, framework, and boundaries.
▼展览概览,Overall view© 锐景摄影
▼入口处,Entrance© 锐景摄影
▼入口通道,Entrance corridor© 锐景摄影
The space blends abstract architectural elements, utilizing corridors, independent spaces, and interwoven semi-open blocks to illustrate the evolution of digital civilization. Among these, corridors serve as the central framework, acting as “time-space tunnels” delineated by epochs and connecting the five chapters. As each chapter unfolds, visitors’ interaction with information within the corridors evolves. Initially, significant Lenovo Events are presented conventionally on display platforms, then transition to walls, acrylic boxes, metal grids, and ethereal mesh fabric. Visitors’ perspectives shift from an initial top view to eye level, then to multidimensional observations and upward views. Through subtle changes in material textures, KiKi ARCHi skillfully conveys the gradual dissolution of information framework boundaries, with the media carrying information becoming increasingly ethereal.
▼第一章空间
Chapter 1 space
© 锐景摄影
▼第二章空间
Chapter 2 space
© 锐景摄影
与此同时,多种形式的独立空间,充实了展览的各个章节。它们分别呈现了与时代背景相呼应的艺术作品、Lenovo 联想品牌的各代产品。值得一提的是,各代产品的展陈形式,均由产品特质提炼、衍生而来。例如,“M”字母投影区,对应了人们熟悉的摩托罗拉手机;红色立柱区代表着 ThinkPad 的经典红点标;彩色镜面陈列区提取了 YOGA 双屏翻转本的年轻、新颖之态;而以键盘为概念的深色陈列墙,则是对游戏笔记本“拯救者”系列的致敬。
Simultaneously, diverse independent spaces enrich each chapter of the exhibition, showcasing artworks that resonate with their respective eras and products from different generations of Lenovo. Notably, the display formats for each product generation are derived from and refined based on their unique characteristics. For instance, the “M” letter projection area corresponds to Motorola phones; the red column area symbolizes the classic TrackPoint of the ThinkPad; the colorful mirrored display area embodies the youthful and innovative traits of YOGA Laptops; and the dark display wall, inspired by a keyboard, pays homage to the gaming laptop “Legion” series.
▼第三章
Chapter 3
space
© 锐景摄影
随着展览动线的回旋,立面上的若干“窗”,形成了新的视觉交错点,如同一幅幅动态画框,捕捉时间轴上不同章节的场景与人物。身处其中,观众可以透过这些窗回望过去,洞悉未来,体会人类在数字文明中的耕耘和收获。而“窗”本身,也被作为设计要素,集中阵列于展览第 5 章节中的“码头”。在 KiKi 建筑设计事务所看来,电子通信设备的屏幕,恰如建筑上的“窗”,尺寸与孔径的大小,直观反应了人类在不同历史阶段的技术与眼界,也预示着边界与关系的无限革新。
Following the circulation line to the turn, several “windows” on the facade create new visual intersections, resembling dynamic frames capturing scenes and characters from different chapters. Within these spaces, visitors can peer through these “windows” to look back at the past, glimpse into the future, and appreciate humanity’s cultivation and harvest in the digital civilization. Moreover, the “windows” themselves serve as design elements, concentratedly arranged in the “dock” of the exhibition’s fifth chapter. According to KiKi ARCHi, screens of electronic communication devices are akin to “windows” on buildings, with their size and aperture reflecting the technological advancements and perspectives of humanity at different historical stages, while also foretelling the innovation of boundaries and relationships.
▼第四章 空间
Chapter 4 space
© 锐景摄影
▼第五章空间
Chapter 5 space
© 锐景摄影
▼以键盘为概念的深色陈列墙,Dark display wall was inspired by a keyboard© 锐景摄影
展览的尾声以深邃的镜面步道、透明的碎片,烘托沉静氛围。无数的“窗”,最终汇于码头一侧,它们由小至大依次排开,描摹了天津城市的历史、河流与建筑景观,同时告诉观众:在过去和未来的时光中,在不确定和难以言说的变革间,穿梭于时间长廊的人们,无论是停驻与漫游,终将能体会到“数字文明”“自然”“生活模式”演变下的自由与生机,在三者的平衡共生中,得以抵达突破想象边缘的未来。
At the end of the exhibition, mirrored pathways and transparent fragments create a tranquil atmosphere. Countless “windows” converge on one side of the dock, arranged from small to large, depicting Tianjin’s history, rivers, and architectural landscapes. They convey to the audience that no matter in the past or the future, amidst the implicit changes, people traversing along the corridor of time, whether wandering or stopping, can always experience freedom and livelihood with the evolution of the “digital civilization,” “nature,” and “mode of life.” While trying to reach a balance among the three, arrive at a future beyond imagination.
▼码头场景,The dock © 锐景摄影
▼码头场景处的窗,Window on the facade© 锐景摄影
艺术装置:承载已知与未知
Art Installation: Carrying the Known and the Unknown
除却展览设计本身,KiKi 建筑设计事务创始人关佳彦,同时跨界参与了部分艺术装置的创作。这些装置作为展览内容、空间构成、互动元素,以 Lenovo 联想各时期产品设备为部分元素,结合艺术作品,记述了数字文明的已知、未知。
KiKi ARCHi founder Yoshihiko Seki, in addition to exhibition design, has also been involved in the creation of some art installations. These installations, serving as part of exhibition content, spatial composition, and interactive elements, incorporate Lenovo’s various products from different periods as elements, combined with artistic works, depicting the known and unknown of digital civilization.
郭锐文、关佳彦《流与量》,2023
新媒体互动装置,尺寸可变
Raven Kwok and Yoshihiko Seki《Flow and Mass》, 2023
Interactive new media installation, Dimensions variable
陈列于展览第二章节。信息在时间的移动下,形成裹挟着大量数据的“流”;物质在空间的累积中,构建物理存在的“量”。由艺术家郭锐文、关佳彦联合创作的影像互动装置,以 CRT 显示器作为传播介质,通过 5×4 的阵列布局,演绎数字文明发展过程中特定的时代现象。20 个悬空堆叠的 Lenovo 联想复古显示器,描绘了实体经济时期的缩影。体积硕大的计算机,紧密排列,散发出强烈的存在感,象征着上世纪 90 年代,琳琅满目商品货架、原始的购物模式、量化消费所带来的满足感。玻璃地面内缠绕的数据线缆,喻示着时代洪流里,新事物的涌动之势,以及无序无惧的生长活力。计算机显示屏上,Windows 操作系统的 GUI 元素,为人们加载了互联网初期的虚拟世界,随着民用计算机的普及,有关未来的形式与效率,即将被重塑。通过操控机械鼠标,观众可以实时干预 GUI 元素的运动轨迹,在庞大的网络坐标中,重新确立定位。伴随着一次次人机互动,物理的“量”与虚拟的“流”,形成一种“对冲”,速度和路径的转换,将人们引入一场跨时空的磁场效应。
This work is presented in the second chapter of the exhibition. Information accumulates with the passing of time, forming enormous data “flow;” matters build up in space, conglomerating into physical “mass.” New media artist Raven Kwok and Yoshihiko Seki jointly created this interactive installation Flow and Mass, using CRT monitors set up in a 5 x 4 matrix as the medium, illustrating specific phenomena that are particular to certain periods of development in the digital civilization. The 20 stacked vintage Lenovo monitors hang in the air, depicting the epitome of the real economy period. These large computers are tightly aligned, radiating a strong presence, representing the fully stocked shelves with eclectic goods, the original modes of shopping, and the satisfaction from mass consumerism back in the 1990s. The cables wiring under the glass floor signify the springing up of new things, fearless and lively in the flow of time. On the computer screens, the GUl elements from the Windows operating system load the virtual world from when the Internet first came into existence. As personal computers prevailed, the future of form and efficiency became reconstructed. The audience can intervene in the movement of the GUI elements in real-time by controlling the mechanical mouse, and repositioning them in the vast coordinate system. Upon every human-machine interaction, the physical “mass” and the virtual “flow” collide-the changing speed and paths lead people into a magnetic field effect across time and space.
▼《流与量》,《Flow and Mass》 © 锐景摄影
关佳彦《升腾》,2023
艺术装置,尺寸可变
Yoshihiko Seki《Rising》, 2023
Art installation,Dimensions variable
陈列于展览第三章节。自然界中,覆载高动能的气流涡旋而升,直抵云霄,其内在的分子势能,不断蓄力,持续积累,正如一个品牌的耕耘过程。关佳彦以“气流”为蓝本,创作了承载联想品牌发展历程的环形立体装置。该装置垂直贯穿,占地 30㎡,高达 4.8 米,由白色钢架、亚克力盒子和 Lenovo 联想各时期产品、文字信息、照片、大事件物料组成。自下而上,平等叙述了始于上世纪 80 年代的数字化故事。近 40 只亚克力盒子,在虚实透明和灯影变幻中,呈螺旋形向上递进。从外部看去,仿佛阳光映入云层般,纯粹而轻盈,表达了面对时代挑战与机遇时,前行者所坚守的积极、腾跃的精神态度。步入其中,丰富的展示内容,在信息交换中,伴随着视线的抬升,向更高更远处迁移,引向未来的未来。
This work is presented in the third chapter of the exhibition. In the natural world, high-energy air currents swirl and ascend, reaching the sky, with their inherent molecular potential continually gaining strength and accumulating, much like the cultivation process of a brand. Yoshihiko Seki has taken “airflow” as the blueprint and created a circular three-dimensional installation that embodies the development journey of the Lenovo brand. The high-standing installation covers an area of 30 square meters and reaches a height of 4.8 meters. It is composed of white steel frames, acrylic boxes, and archive documents representing various development periods of the brand, including products, text information, photos, and items from significant events. From bottom to top, it equally narrates the digital story that began in the 1980s. Nearly 40 acrylic boxes spiral upward amidst the shifting shadows of the light box, as if sunlight penetrates the clouds, pure and lightweight when viewed from the outside, representing the positive and leaping-up attitude of pioneers when they encounter challenges and opportunities of the times. As one steps inside the installation and raises their line of sight, the rich content on display migrates higher and farther in the exchange of information, guiding towards the future of the future.
▼《升腾》,《Rising》© 锐景摄影
▼《升腾》装置内部,Interior view© 锐景摄影
关佳彦、三千流明工作室《雨》,2023
影像装置,尺寸可变
Yoshihiko Seki, 3000LM Lab《Rain》, 2023
Video installation,Dimensions variable
陈列于展览第四章节,由关佳彦与三千流明工作室联合创作,以暗调空间与影像作品的结合,塑造出一个思辨的场域。装置表达了在智能时代,人类已借助互联网与电子设备,冲破物理的空间边界。信息、时间、地域、语言之间不再受既定框架的束缚,世界因此虚实相融。
超现实深色空间中,18 个 Lenovo 联想显示屏散发出的“光”,引导观众停留、穿行,如同漂浮于信息媒介之间,在交互与不确定中,寻求一种熟悉的人文感知。屏幕上,来自不同时空的“同一场雨”不间断播放,隐喻当下万物互联的世界场景,蕴含着无法被移除的人文精神。
© 锐景摄影
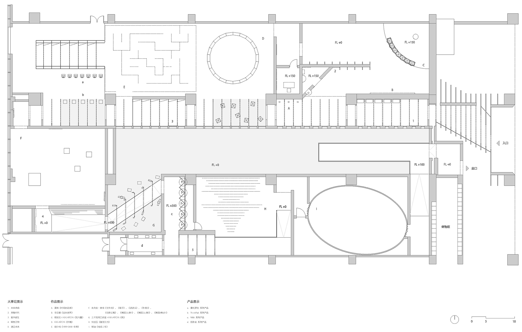
▼平面图,plan© KiKi 建筑设计事务所
项目名称:「从未来到未来」展览空间设计:探寻边界与关系
项目位置:天津,中国
项目类型:展览空间
项目业主:Lenovo 联想
设计公司:KiKi 建筑设计事务所
主持设计师:关佳彦
设计团队:穐吉彩加,林思闽,车泽彧
项目面积:1190㎡
设计周期:2023.7-2023.10
完成时间:2023.12
项目摄影:锐景摄影
客服
消息
收藏
下载
最近




















































