查看完整案例

收藏

下载
“想象力往往会带领我们去到从未存在的世界,但没有想象力,我们一无所得。”——美国天文学家 卡尔·萨根《宇宙》
Imagination will often carry us to worlds that never were, but without it we go nowhere. —- American astronomer Carl Sagan《Cosmos》
▼店面,storefront ©Wen Studio
Halation 光晕灵感西厨位于上海静安区延平路街区,整体街区风格偏向年轻化族群为主。针对品牌背后对于天文学与光晕的含意,将其环境及品牌特点呈现于整个空间店铺之中。
Halation bistro is located in Yanping Road, Jing’an District, Shanghai. The general style of the space mainly targets young consumers. The design is inspired by the brand’s association with astronomy and halation, integrating these thematic elements throughout the space.
▼入口,entrance©Wen Studio
关于 Halation 的内、外、上、下
About Halation inside, outside, up and down
Halation 为沿街店铺,我们希望能达到与街区的联动性,同时又能保有良好的室内用餐体验,所以一层作为主要的就餐区域,设计灵活,可根据不同活动的需要灵活调整空间,既能容纳活动聚会,也能满足小型聚餐的需求。而二层,为面积较小的卡座用餐区,除了日常运营需求外,也能独立提供小型活动的包场需求,并且还设置了一处小观景平台,可以浏览整间店铺的空间环境。
Halation is a street-facing store, our goal is to link the exterior and interior environment while offering an excellent culinary experience. Thus, a full-height glass facade allows us to achieve this visual connection between the interior and exterior. The first floor is the main dining room, designed flexibly to adjust the space for various activities like gatherings and small dinners. The second floor offers a smaller seating area and accommodates not only daily operational needs but also private events. Additionally, it has a small viewing platform providing a bird’s eye view of the entire store.
▼从入口看向室内,interior view through entrance©Wen Studio
▼室内概览,interior overview©Wen Studio
▼二层概览,attic floor overview©Wen Studio
▼二层就餐区,attic floor seating area©Wen Studio
从室外入口处延伸至内部的胶黏石子地区域被巧妙设计成过渡空间,设置了沿街吧桌和沿街的卡座区,成为了与室外互动的链接点,并且也是引导顾客进入用餐或是等位的区域。在中心就餐区域,分为散座区和右侧的卡座区,在这个区域可配合拼组桌椅,提供配合各式需求的聚餐场地。而位于一层内部最底处的酒吧台,不仅为一层顾客提供服务,还能方便服务二层客户,形成了一、二层之间便捷的送餐出发点,为顾客提供了更加舒适和便利的用餐体验。
From the outside to the inside of the terrazzo floor made of gravel, a bar table and a sofa corner are installed along the street, which is the connection point between indoors and outdoors and the waiting area. The central dining room is divided into scattered seating and sofa areas, which can be flexibly combined with tables and chairs to meet needs. The bar area is located in the innermost part of the first floor and serves as a starting point for food delivery between the first and second floors.
▼中心就餐区,central dining area©Wen Studio
▼卡座,sofa areas ©Wen Studio
▼材质细部,material details©Wen Studio
丰富的想象力是 Halation 引力场的开端
Rich imagination is the beginning of the Halation gravitational field.
在整体空间的设计概念上,以天文学的引力和光晕发散为设计主题,空间中唯一的石柱成为了我们设计整个引力场概念的中心点。我们以瓦楞纸堆叠并切割出优雅的曲线线条,再进行层层的拼组,最后产生出了不同大小的 8 层环型装置。包裹石柱的 8 层巨型瓦楞纸装置不仅在视觉上是空间的焦点,如同光晕的想象也象征着一种引力场的具象模拟,以其独特的存在感和设计风格,吸引顾客及街区行人的目光。穿插错落其中的圆球灯,无论是在一层或是二层观看,在不同的座位或视角下,光线透过瓦楞纸的波形断面,散发出一处处柔和的光晕,让整个空间充满了奇妙的氛围。
▼空间规划概念,layout diagram© RooMoo
▼石笼及瓦楞纸天花装置,gabion and corrugated paper installation diagram©RooMoo
The space design is themed around astronomy’s gravitation and halation. The sole pillar serves as the center, around which we crafted eight differently sized circular paper installations by stacking and cutting corrugated paper into curves. The installation is the space’s focal point, symbolizing Halation and gravitational field. Ball lights interspersed within emit a soft halo of light through the corrugated paper, creating a magical atmosphere.
▼包裹石柱的 8 层巨型瓦楞纸装置,corrugated paper installation in the central focal point©Wen Studio
▼吧台,bar counter©Wen Studio
▼柔和的光晕,soft halos of light ©Wen Studio
我们把 Halation 想象成一整个引力场,整体环境色系主要以品牌色及大地色系为主。同时,包围整个引力场的是空间里的石笼,石笼里大小不一的鹅卵石如同宇宙里的小陨石的汇聚。而隐藏在石笼之中的灯光,透过随意的堆叠从缝隙中散发出微微的光晕,更为用餐时增添了舒适的氛围感。同时,我们在酒吧台面刻意设置了柔光背景,透过暖白色和蓝绿色碎片所制成的亚克力材料板,让在吧台桌用餐饮酒的客人,也可以感受到光晕发散的气氛,同时也呼应了 Halation 的品牌色中的蓝绿色。
We imagine Halation as a gravitational field, with colors mainly consisting of brand tones and earthy hues. Surrounding this field are stone cages filled with cobblestones resembling small meteorites, while hidden lights emit through the cracks, enhancing the dining ambience. At the same time, we deliberately set a soft light background on the bar counter, with light filtering through acrylic panels made of warm white and blue-green fragments. It creates a halo atmosphere for guests to dine or enjoy drinks at the bar.
▼大地色系,earthy hues ©Wen Studio
▼细部,detail
©Wen Studio
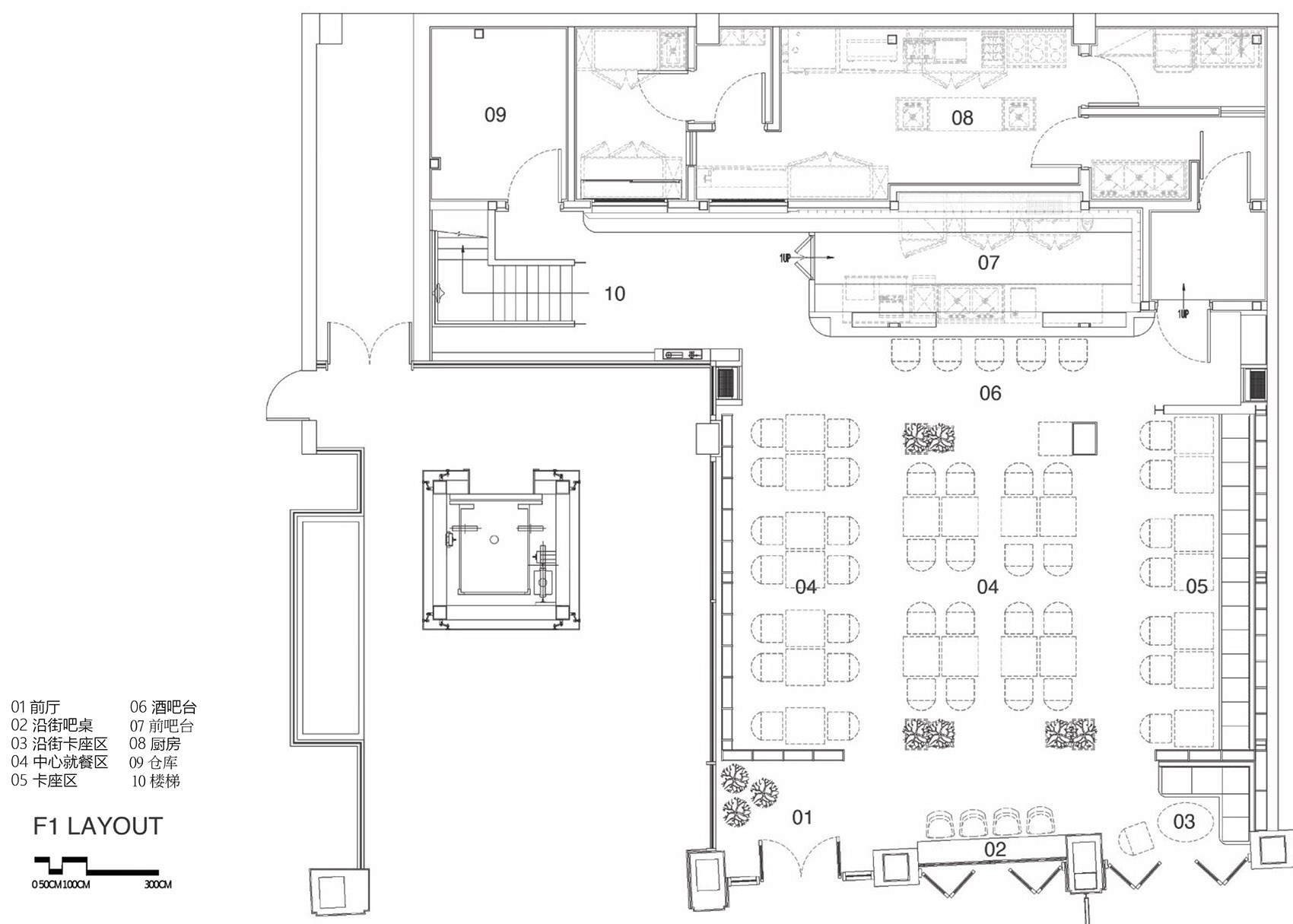
▼一层平面图,1F plan©RooMoo
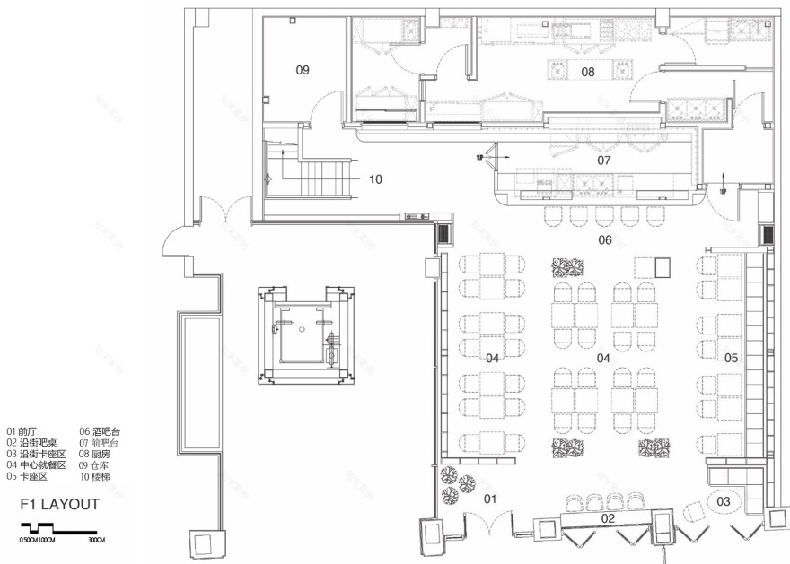
▼一层平面图,2F plan©RooMoo
项目城市:中国上海
项目面积:238 平米
楼层:1 层
商业型态:餐酒馆
客户:Halation
设计团队:RooMoo Design Studio
主要材料:瓦楞纸、鹅卵石、亚克力、砖、胶黏石子
项目位置:静安区延平路 135 号 107 室
摄影:Wen studio
About the project
Project city: Shanghai, China
Project area: 238 square meters
Floors:2 floors
Business type: bistro
Client:Halation
Design team: RooMoo Design Studio
Main materials: corrugated paper, pebble, acrylic, brick, gravel
Project location:Room 107, No.135 Yanping Road, Jing’an District
Photography:Wen Studio
客服
消息
收藏
下载
最近































