查看完整案例

收藏

下载
独立住宅, 居住建筑, 钵场镇, 越南
建筑设计:武重义建筑事务所
面积:740 .2501349m²
项目年份:2020
摄影师: Hiroyuki Oki
主创建筑师:Vo Trong Nghia
设计团队:Ngo Thuy Duong, Nguyen Van An, Do Huu Tam, Pham Phuong Thao
City:钵场镇
Country:越南
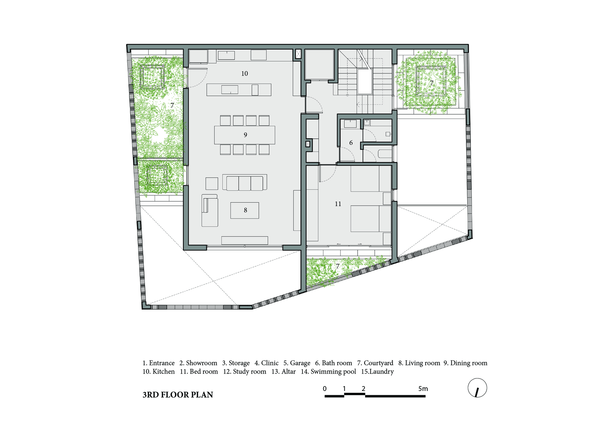
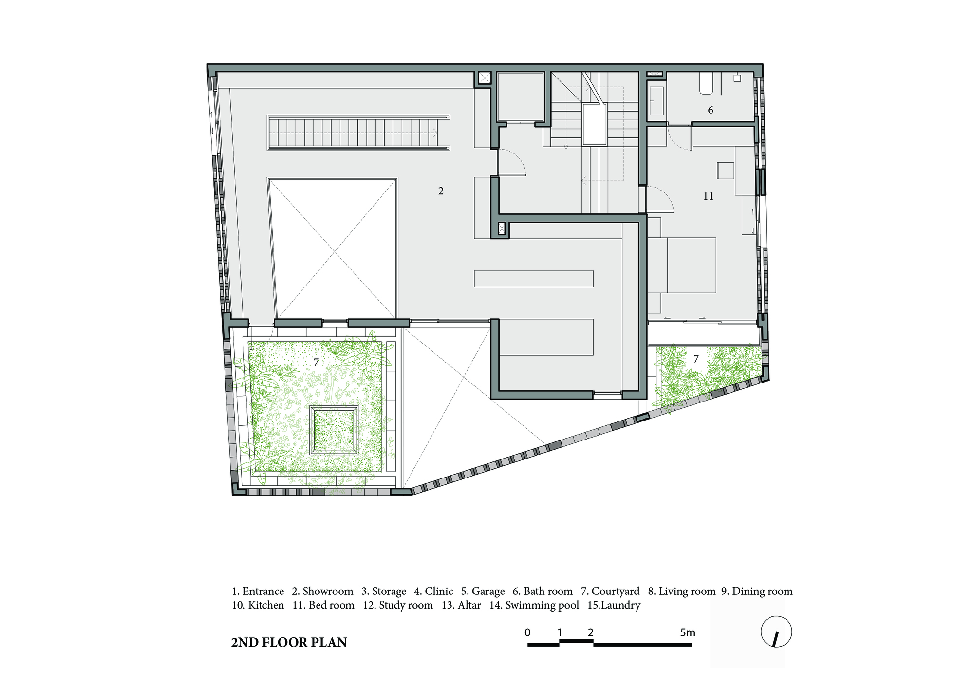
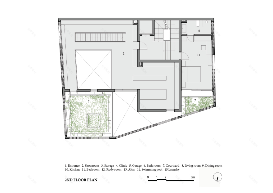
项目位于一个已有10年以上历史的陶瓷村庄钵场镇(Bat Trang)。建筑的表面代表了这个村庄独有的陶艺文化。其外观的设计灵感来自于小镇的传统之美,而内饰则打造了现时代生活的便利和舒适环境。房间的布局以酒店主人的理想之家构想为基础,让其功能区域与自然可以和谐交织在一起。
该项目的任务是为一个七口之家设计一栋房屋,并让这里可以成为亲朋好友聚会的地方。钵场之家不仅仅有住宿的功能,同时也可以充当商店,用于陶瓷小镇传统瓷器的交易。
建筑所在的村庄有着丰富的文化背景,因此设计团队则优先考虑使用了当地的材料。此外,该项目的业主本身是一个陶瓷专家,因此武崇义建筑事务所可以充分地利用这种材料,发挥陶瓷本身所具有粗糙美感和高耐用性,以此打造建筑的表皮。因此,整体立面完全由陶瓷砖块塑造。每一个砖块都经过细致的尺寸调整,以构筑立面上交替变幻的韵律,并以此打造敞开或封闭的空间。砖块排放所产生的小缝隙则可以作为通风口使用,让空气循环并遍及整个建筑物。立面上的大开口则面向较大的绿地,以此让过滤的光线可以由此通过。
室内空间采用了简约的设计。直射阳光将会被两层陶瓷砖立面和绿墙所过滤,且建筑设有大型玻璃面板,因此房间不会变得过热。陶瓷砖块之间的缝隙可以有效地收集阳光,并将其适量地带入室内空间。尤其在夏日,这样的设计能让房间变得更为舒适。因此,人工空调在这栋建筑里显得并不重要,因为三层通风系统的“室外陶瓷砖立面”、“变幻的绿色空间”以及“门户”已经保证了建筑内部的“绝对凉爽”。太阳能板和雨水收集器则共同完成了可持续设计的一部分。大型的落地窗和变幻的陶瓷砖间隙与室内空间相接,为这里的住户打造了一年四季不断变化的美景。
人与自然紧密的联系对设计团队尤为重要。因此,武崇义建筑事务所的建筑师们则确保了他们参与的每个住宅项目都达到了自然且可持续生活的质量。这些精心的设计让住户随时都可以体验到清新的绿地空间,并为他们的日常生活提供充足的自然光线。
译者:黄菁菲 Jingfei Huang
项目完工照片 | Finished Photos
设计师:VTN Architects
分类:Houses
语言:英语
客服
消息
收藏
下载
最近

































