查看完整案例

收藏

下载

翻译
Architects:Studio Carlito e Renata Pascucci
Area:150m²
Year:2022
Photographs:Julia Novoa
Manufacturers:Black Angel,Botteh,Diego Limberti,Dk Luminarias,Estudio Moa,Estúdio Bola,Fernando Jaeger,Forja Recicla,Futom Company,Heleno da Luz dos Santos,Passado Composto,Paulo Alves,Ponto Lucce,Vavan,maria jovem
Text description provided by the architects. Perfect meeting: location of the land, sea view, and the presence of nature. These are the elements that enchanted the couple from Studio Carlito and Renata Pascucci to build the 150m² house, whose residence is the refuge of the professionals. Privileged by its location, as it is between the mountains and the sea, on the coast of São Sebastião (SP), besides being a space for rest, it also shares the sensory experience making it for rental.
Through the tangential gaze of the horizon, the project manages to welcome the resident as part of nature, since the house encompasses the Atlantic Forest. In all rooms, it is possible to visualize the landscape of Toque-Toque Grande Beach and in this aesthetic rest, the pool as an infinite background facing the waters over 60m high from sea level, appears to be suspended under the canopy of trees - its bluish tone makes it even more immersed and is one of the attractions of the residence.
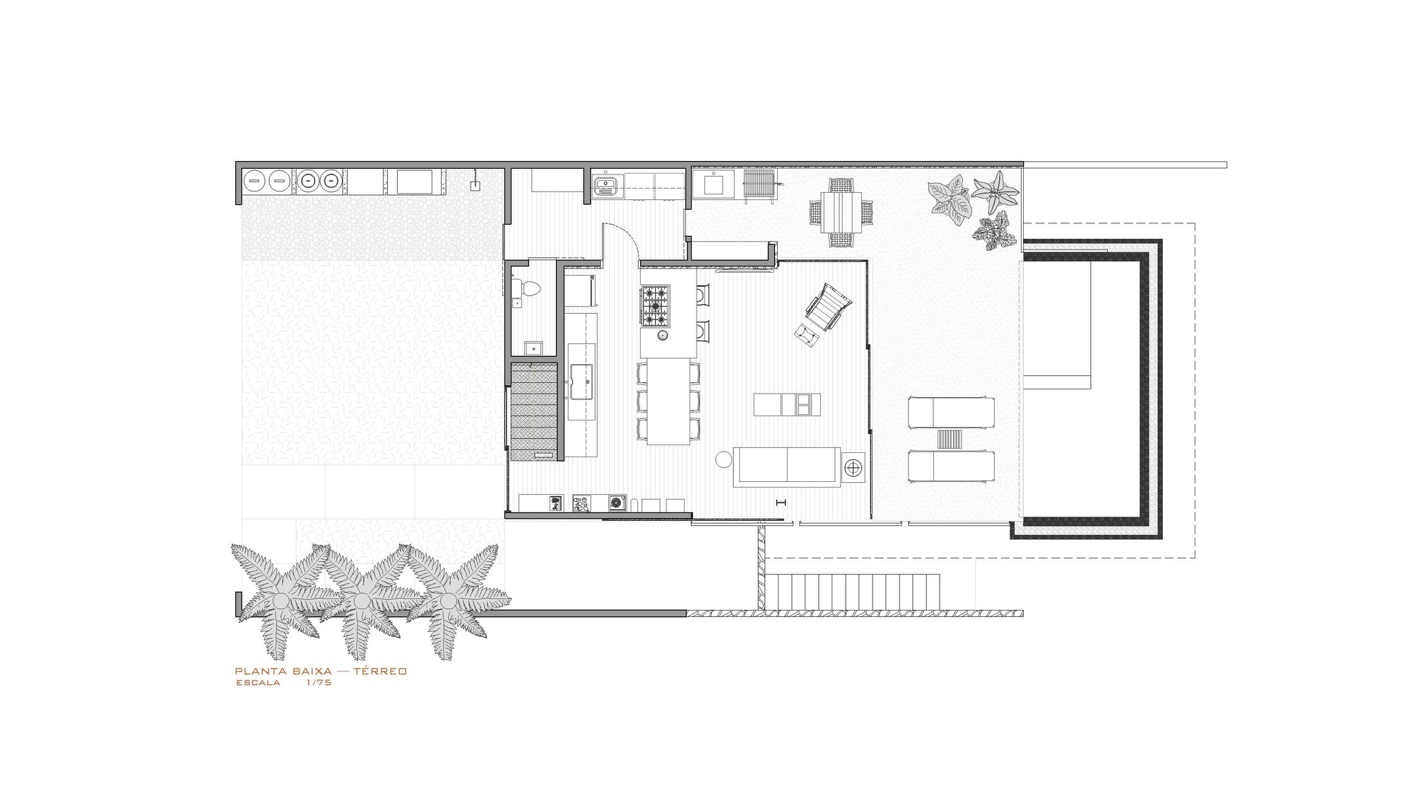
Small and practical, it meets the requirements of an architectural project that would work for the needs of a couple's life. On the ground floor, there is the entrance hall, access to the stairs, kitchen integrated with the living room and fireplace, laundry room, toilet, barbecue area, deck, and pool, environments where both can interact. On the upper floor, only a generous suite with a closet, which has access to the solarium - a contemplative and technical space, where the solar panels and the water tank are located. The office chose to work with large window frames, with the main objective, which gives the project its name: to see the sunrise and sunset.
In the desire to establish a contemporary architecture of straight lines and openings, natural materials were used to materialize the concept, such as the use of stone, wood, steel, and cement. From a neutral base, the color that contrasts the social environment is red on the staircase wall and in the kitchen joinery.
Several pieces of furniture were designed by the office itself in the carpentry project. The freijó wood slat in the laundry room, dining table in demolition peroba wood, crates used as a center table in ironwood and zebrawood, "Tetris" shelf in the hall with freijó wood and straw, a slatted table in the "boteco" style in the barbecue area, the kitchen structure, bed, and bedside tables in the suite. In addition to pieces chosen to compose the decoration that bears the signature of designers, such as Jean Gillon and his jangada armchair, stools from the Fernando Jaeger island, the cocar of the Caraiva indigenous tribe, oil painting on canvas "Dinosaur Head" by Diego Limberti, chairs and sofa from Estúdio Bola, serigraphs above the headboard from Estúdio Moa, graffiti on the staircase by Ricardo AKN, among other artistic perspectives that resulted in the poetic of Casa Pôr, which transcends the local soul and beach accent.
Project gallery
客服
消息
收藏
下载
最近
















































