查看完整案例

收藏

下载
提供精神健康服务的 Springfield 大学医院位于一个占地 33 公顷的庄园,是该庄园改造项目的中心,C.F. Møller 建筑事务所参与了医院周边住宅的开发和城市设计的规划,包括将以前的高尔夫球场改造成一个新的公共公园,为英国国家医疗服务系统信托基金(NHS Trust)提供咨询服务。Springfield 大学医院以循证建筑理念为基础,为病人提供治疗环境,为员工和病人创造健康的环境。
The Springfield University Hospital, which provides mental health services, is at the centre of a 33 hectare estate regeneration, and C.F. Møller Architects has advised the NHS Trust in the planning and phasing of the surrounding residential development and urban design around the hospital, including the conversion of the former golf course into a new public park. Springfield University Hospital is based on the concept of evidence-based architecture to provide therapeutic surroundings for patients and wellbeing for staff and visitors.
©C.F. Møller Architects
▼项目外观,exterior of the project©Mark Hadden
医院由两座不同的建筑组成,包括新建的精神卫生设施、成人住院病房、成人和儿童门诊服务、康复学院、教学设施和支持服务设施。建筑内还包括零售商店和多层停车场,为医院和医院周边正在开发的住宅区提供服务。
▼平面布局,layout©C.F. Møller Architects
The hospital consists of two distinct buildings and compromises new-build mental health facilities, provides a range of adult inpatient wards along with adult and children’s outpatient services, Recovery College, teaching facilities and support services. The hospital buildings also incorporate retail shops and several floors of carparks that will serve both the hospital and the emerging residential plots that are being developed around the hospital.
▼项目街景,street view of the project©Mark Hadden
光照和花园
Daylight and gardens
设计的重点是创造具有良好视野和声学效果的非机构环境,充足的日光、自然通风、通向花园的室外空间是设计的主要目标。设计的愿景是提供安静、安全的环境,并为工作人员创造最佳的工作条件。
▼空间布局,space layout©C.F. Møller Architects
The design is focused on creating non-institutional environments with good sightlines and acoustics, ample daylight, natural ventilation, access to gardens and outdoor spaces are key design objectives. The aspiration is to create a calming and safe environment, as well as optimal working conditions for staff.
▼户外花园,outdoor garden©Mark Hadden
▼充足的采光,ample daylight©Mark Hadden
▼自然的通风,natural ventilation©Mark Hadden
▼立面细部,facade detail©Mark Hadden
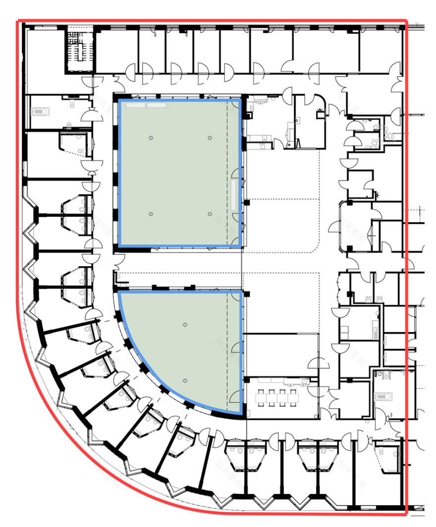
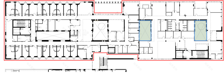
设计将开放式区域置于每个病房的中心,以创造一个通风透光的环境,并与相邻的外部花园庭院形成强烈的视觉和物理联系。从布局上看,病房入口和大部分病人通道区域都能一览无余。设计力求尽可能消除盲角。
▼外部花园庭院,garden courtyard©C.F. Møller Architects
The design incorporates open plan areas at the centre of each ward to create a light and airy environment with strong visual and physical connections to adjacent external garden courtyards. The layouts generally allow easy overview of the ward entrance and of the majority of patient circulation areas. The design has sought to eliminate blind corners where possible.
▼通道区域,circulation areas©Mark Hadden
房间和中央走廊的边缘设有固定和松散的家具,以及各种休闲和社交的座位区。外墙和外部构件由坚固耐用的优质材料组成,这些材料因其兼容性、美观、耐用性和可持续性而被选用,同时还考虑到其生命周期对环境的影响和成本。双色砖砌体是整个建筑的主要材料,与邻近的建筑相呼应。
The edges of the rooms and central corridors incorporate fixed and loose furniture with a variety of seating areas for relaxing and socialising. The facades and external elements consist of robust and high-quality materials chosen for their compatibility, beauty, durability and sustainability, with consideration for their life-cycle environmental impact and cost. Two-tone brickwork is the primary material across the buildings, which relates contextually to the adjacent listed buildings.
▼座位区,seating areas©Mark Hadden
▼病房,ward©Mark Hadden
▼轴测图,axon© C.F. Møller Architects
▼场地区位,site plan© C.F. Møller Architects
▼一层平面,ground floor plan© C.F. Møller Architects
▼法医取证区域,Forensic Visibility© C.F. Møller Architects
▼病房区域,Non-Forensic Swing bed© C.F. Møller Architects
▼病房区域可视度,Non-Forensic Ward Visibility© C.F. Møller Architects
▼安全区域,Non-Forensic Deaf security© C.F. Møller Architects
▼功能分区,ward functional diagram© C.F. Møller Architects
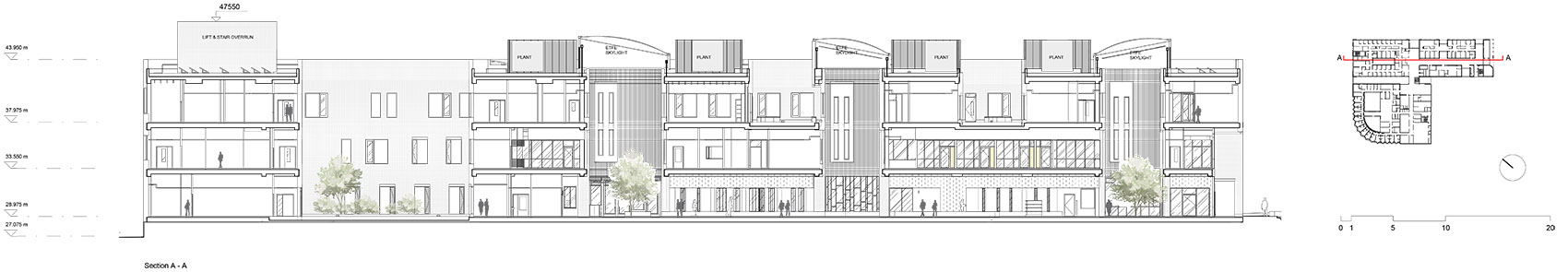
▼剖面 1,section 1© C.F. Møller Architects
▼剖面 2,section 2© C.F. Møller Architects
▼剖面 3,section 3© C.F. Møller Architects
Client: South West London and St. George’s Mental Health NHS Trust
Size: 34.300 m² including car parks, 133 adult beds
Address: Wandsworth, London
Year: 2023
Contractor: Sir Robert McAlpine
Engineering: MEP Engineering: Arup
Structural Engineering: Walsh
Fire Engineering: Trenton Fire
Architect: C.F. Møller Architects
Landscape: C.F. Møller Architects
Collaborators: Project Manager: Appleyard & Trew
Cost management services: Gardiner Theobald
Planning Consultant: Montagu Evans
Catering Consultant: Sterling Foodservice Consultancy
Sustainability: BREEAM Excellent
客服
消息
收藏
下载
最近
































