查看完整案例

收藏

下载
“链接”(LINK)是我们在瑞士艾格勒这个项目的关键词,顾名思义,设计的出发点是要在新建筑与老街区之间建立起有机的联系。我们希望让新社区成为古老的广场与街道的自然延伸,并使建筑在场所中获得独特而可持续的身份。
“LINK” is the key word for our project in Aigle, Switzerland, as the name suggests, the starting point of our design is to create an organic connection between the new building and the old neighborhood. We wanted to make the new neighborhood a natural extension of the old squares and streets , and give the building a unique and sustainable identity within the place.
LINK项目的目标,在于建立起相邻街区之间特征上的联系:项目的城市结构延续周边公共空间的道路网络以及相邻街道的肌理。由街道与广场构成的网络,使项目置于现有城市结构之中,这意味着可以通过具体的规划,给出场地中每个区域的真正身份。
▼城市肌理,Plan situation © LEMANARC瑞士瑞盟设计
The goal of the LINK project is to establish a characteristic connection between adjacent blocks: the urban fabric of the project continues the road network of the surrounding public spaces and the texture of the adjacent streets. The network of streets and plazas that place the project within the existing urban fabric means that specific planning can give the real identity of each area of the site.
▼与城市肌理相结合,Scheme integrated with the urban fabric © LEMANARC瑞士瑞盟设计
▼午间俯瞰Krafft街道,Airview rue Krafft with Dents de Midi © LEMANARC瑞士瑞盟设计
项目处于复杂结构中,它起到了一种整合的作用,将周边风格迥异的建筑统一起来——这也是LINK名称的由来。LINK项目拓宽了我们对于可持续性密集城市的视野。它在社会、环境、文化与经济各方面的原则彰显出“共同生活”的理念,这在当前是很有价值的。
The project is in a complex structure, which acts as a kind of integration, unifying the surrounding buildings of different styles – which is also the origin of the name LINK. The LINK project broadens our vision for sustainable dense cities. Its principles in social, environmental, cultural and economic aspects highlight the idea of “living together”, which is valuable today.
▼波尔广场,Clos du Bourg Place © Hélène Maria
▼俯瞰广场,Aerial view of the square © LEMANARC瑞士瑞盟设计
▼公园与街区关系,Parc and relation to neighborhood © LEMANARC瑞士瑞盟设计
通过引入人流使街道重生的理念贯穿了LINK项目。方案改造了Monneresse街,将现有的喷泉引入景观,涓涓细流如同丝线一般,将建筑空间与周边环境联系起来。Monneresse街与Krafft街一起,为城市生活营造了舞台,在其上各种社会功能(例如商业、办公、医疗与住宅入口等)得以组织起来。
The idea of regenerating the streets by bringing in the flow of people runs through the LINK project. The plan renovated Rue de la Monneresse, introducing the existing fountains into the landscape, and the delicate streams are like silk threads, connecting the architectural space with the surrounding environment. Together with Rue Krafft ,Rue de la Monneresse, creates a stage for urban life on which various social functions (such as commercial, office, medical and residential entrances, etc.) are organized.
▼Monneresse街道,Street de la Monneresse © Hélène Maria
▼Krafft街道,Rue Krafft © LEMANARC瑞士瑞盟设计
▼立面,Façade © LEMANARC瑞士瑞盟设计
这种基于“生活方式”的城市形态能够自我整合,并以欢迎的姿态对待每一个家庭(年轻夫妇、单身人士、以及带儿童的老年人)。它建立在日常活动的使用之上,并为这些活动提供一个在感官、社会与功能方面都富有品质的环境。
This “lifestyle” based urban form is self-integrating and welcomes every family (young couples, singles, and seniors with children). It builds on the use of everyday activities and provides an environment for these activities that is sensory, social and functional.
▼老年人家居流通空间,Elderly home circulatio space © Hélène Maria
▼楼梯,Staircase © Hélène Maria
▼客厅,Living room © Hélène Maria
▼无障碍楼梯,Staircase for protective housing © Hélène Maria
▼学生接待处,Reception units for schoolchildren © Hélène Maria
▼地面层平面图,Plan 0 © LEMANARC瑞士瑞盟设计
▼一层平面图,Plan 1 © LEMANARC瑞士瑞盟设计
▼五层平面图,Plan 5 © LEMANARC瑞士瑞盟设计
▼立面图,Elevation © LEMANARC瑞士瑞盟设计
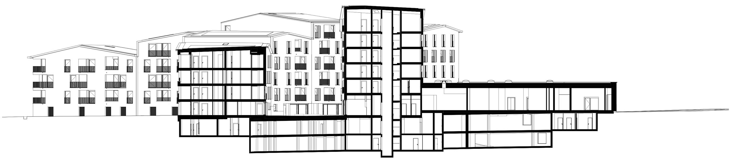
▼剖面图,Section © LEMANARC瑞士瑞盟设计
项目地点:瑞士,沃州,艾格勒
占地面积:11,250 m²
建筑面积:30,000 m²
客户:Cité Derrière – Solufonds
项目投资:60,000,000瑞士法郎
项目现状:2021年建成投入使用
项目设计时间:2011-2019
项目完成时间:2021
工作内容:规划设计,建筑设计,室内设计
主创建筑师:Vincent Zhang 张万桑
其他团队成员:Andreas Scheiwiller, Xavier Marlaire,Emma Fuller,Maria Tapia, Alexander Sokolov
建筑设计合作伙伴:A à Z Architekten AG
项目管理:Gepimob SA, Lausanne 、Efimob SA, Villeneuve
景观设计师:Denogent SA, Prangins
结构工程师:BGI SA, Aigle
地质顾问:Claude Marie Marcuard
机电顾问:ERT Comazzi, Fribourg
暖通空调顾问:VHTechnic sarl, Sion
消防顾问:Ignis salutem SA, Lausanne
声学顾问:EcoAcoustique SA
工程顾问:Transitec, Lausanne
摄影:Hélène Maria,LEMANARC SA
Project location:Aigle,Vaud ,Switzerland
Site are a:11,250 m²
Construction Surface: 30,000m²
Client: Cité Derrière – Solufonds
Investment: Swiss Franc 60 million
Project status: Completed and put into use in 2021
Design time:2011-2019
Completion time:2021
Work content: Master planning, architectural design, interior design
Chair architect:Vincent Zhang
Other team member:Andreas Scheiwiller, Xavier Marlaire,Emma Fuller,Maria Tapia, Alexander Sokolov
Architecture partnership:A à Z Architekten AG
Project Managers:Gepimob SA, Lausanne
Project Managers :Efimob SA, Villeneuve
Landscape Architects:Denogent SA, Prangins
Structure Engineers:BGI SA, Aigle
Geology Consultants:Claude Marie Marcuard
MEP Consultants:ERT Comazzi, Fribourg
HVAC Consultants:VHTechnic sarl, Sion
Fire Consultants:gnis salutem SA, Lausanne
Acoustics Consultants:EcoAcoustique SA
Engineers consultant:Transitec, Lausanne
Photographer :Hélène Maria,LEMANARC SA
客服
消息
收藏
下载
最近
























