查看完整案例

收藏

下载
项目名称:英国Springfield大学医院
位置:英国
设计公司:C.F. Møller Architects
提供精神健康服务的Springfield大学医院位于一个占地 33 公顷的庄园,是该庄园改造项目的中心,C.F. Møller 建筑事务所参与了医院周边住宅的开发和城市设计的规划,包括将以前的高尔夫球场改造成一个新的公共公园,为英国国家医疗服务系统信托基金(NHS Trust)提供咨询服务。Springfield大学医院以循证建筑理念为基础,为病人提供治疗环境,为员工和病人创造健康的环境。医院由两座不同的建筑组成,包括新建的精神卫生设施、成人住院病房、成人和儿童门诊服务、康复学院、教学设施和支持服务设施。建筑内还包括零售商店和多层停车场,为医院和医院周边正在开发的住宅区提供服务。设计的重点是创造具有良好视野和声学效果的非机构环境,充足的日光、自然通风、通向花园的室外空间是设计的主要目标。
设计的愿景是提供安静、安全的环境,并为工作人员创造最佳的工作条件。设计将开放式区域置于每个病房的中心,以创造一个通风透光的环境,并与相邻的外部花园庭院形成强烈的视觉和物理联系。从布局上看,病房入口和大部分病人通道区域都能一览无余。设计力求尽可能消除盲角。房间和中央走廊的边缘设有固定和松散的家具,以及各种休闲和社交的座位区。外墙和外部构件由坚固耐用的优质材料组成,这些材料因其兼容性、美观、耐用性和可持续性而被选用,同时还考虑到其生命周期对环境的影响和成本。双色砖砌体是整个建筑的主要材料,与邻近的建筑相呼应。
英国Springfield大学医院外部实景图
英国Springfield大学医院外部实景图
英国Springfield大学医院外部实景图
英国Springfield大学医院外部实景图
英国Springfield大学医院外部实景图
英国Springfield大学医院外部实景图
英国Springfield大学医院外部实景图
英国Springfield大学医内部实景图
英国Springfield大学医内部实景图
英国Springfield大学医内部实景图
英国Springfield大学医内部实景图
英国Springfield大学医内部实景图
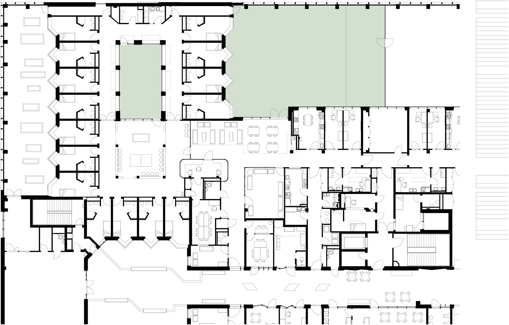
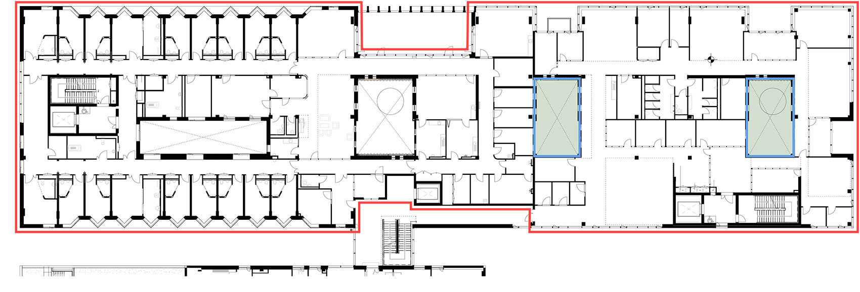
英国Springfield大学医院平面图
英国Springfield大学医院平面图
英国Springfield大学医院平面图
英国Springfield大学医院平面图
英国Springfield大学医院平面图
英国Springfield大学医院平面图
英国Springfield大学医院平面图
英国Springfield大学医院平面图
英国Springfield大学医院平面图
英国Springfield大学医院剖面图
英国Springfield大学医院剖面图
英国Springfield大学医院剖面图
客服
消息
收藏
下载
最近



























