查看完整案例

收藏

下载
向阳而生,逐光而行,让光重焕 20 年老宅活力。围绕着房子中间的采光井,我们重新定义了几个“庭”“园”,让建筑内部进一步切分成不同层次的“内”与“外”、“明”与“暗”、“曲折”与“开阔”区域。穿行于“光庭”中的“游园”路径,在便捷与有趣之间微妙平衡。
▼项目概览 ©恩万建筑摄影
迎光之“庭”
中心光庭
它是空间中的核心,原本是房屋的采光天井,而之前一次的改造将楼梯移到了这个区域,楼梯本不该去阻挡更为充足的光线到达各层,然而谁也无法拒绝楼梯挪位带来的更多使用空间。
▼从餐厨区望向玄关 ©恩万建筑摄影
▼下沉客厅 ©恩万建筑摄影
▼餐厅 ©恩万建筑摄影
那么光井和楼梯合二为一,沿边盘旋而上的楼梯结合曲线栏板,形成柔和升起的态势,白色材质让顶部倾泻而下的光线在楼梯体量间充分反射而混合均匀。白色曲线楼梯的引入让光线有了可感知的体积和重量,而光线的又让沐浴阳光的楼梯漂浮于一片明亮的“泡沫”中,轻盈升腾。
▼从吧台区域望向下沉客厅 ©恩万建筑摄影
▼光井和楼梯合二为一 ©恩万建筑摄影
地下室活动空间、一层客厅餐厨、二层书房环绕光庭布置。如同城市中建筑体量围合而成的共享广场。聚集功能、开放空间、充足光线带来了家中更多层次的交流互动。
▼多层次的场景 ©恩万建筑摄影
蓝色光庭
中心光庭的光线到达地下室时已经衰减大半,蓝色光庭是我们新增加的一个自然采光井,它靠近客厅的南侧,紧邻窗口,阳光可以最直接的进入地下。正是这个光庭,让原本密实不透的地下娱乐区,增加了生机,客厅和娱乐空间紧密联系。之所以在光庭中覆盖上蓝色的软包,意在让光线穿过后反射的蓝光让下层空间仍能还原到它静谧的状态。
而在一层大多数位置并不会意识到这个光庭,光庭中间的拉网,避免了栏杆的出现,而引入的儿童活动恰到好处地与成人化的客厅混合。
▼地下娱乐区 ©恩万建筑摄影
▼光庭中覆盖上蓝色的软包 ©恩万建筑摄影
▼蓝色光庭细节 ©恩万建筑摄影
红色乐园
它紧靠在中心光庭地下北侧,布置了可以攀爬、游戏的设施,虽是儿童专属的游戏场地,然而每一个成人都乐于参与其中,跟孩子“较量”一番。
红色乐园一侧的拱形洞口,让游戏世界镶嵌进客厅空间中,视线交流、空间融合对这个缺乏挑高空间的房子尤为有意义。
▼儿童游戏区 ©恩万建筑摄影
▼攀爬墙 ©恩万建筑摄影
▼楼梯 ©恩万建筑摄影
▼空间一瞥 ©恩万建筑摄影
边庭
二层南侧卧室空间以外的区域全部开放,它既可以对望中心光庭,也能俯瞰北侧室外花园。布置书桌、书架、琴台,是家中的图书馆、音乐室。
▼阅读休息区 ©恩万建筑摄影
▼从二层望向楼梯 ©恩万建筑摄影
游园之“径”
中心光庭螺旋上下的楼梯并不独立,它与其他空间自然衔接。
原户型的客厅和餐厨、餐厅和北花园有 1.2 米的高差,陡峭的台阶极大地割裂了各部分空间联系。我们将直接集中的台阶上下,分解成为“走走停停”,切分出更多更短暂的高差,入户换鞋后先上两个台阶,移步至中心光庭位置,再上三步。穿行的抬高路径,自然的切分出下沉的客厅、上抬的餐厨区,而中心光庭与它们间相互衔接,地下到客厅、地下到餐厨、餐厨到客厅,形成有趣的分叉路径。它让家里的空间“游动”起来。
▼被“切分”的路径 ©恩万建筑摄影
变换的路径也因家中有一只年迈且后腿病坏的柯基,为它加设了一条无障碍路径。客厅对面处高起的台子,对于玄关来说是换鞋凳,对于客厅来说是吧台,而下面的拱洞就是狗的通道,由它跨过第一次高差,然后在中心光庭和厨房间的台子,是家中的中岛、餐台,也是狗跨过客厅、餐厅间高差的通道。
▼狗坡道&多功能桌 ©恩万建筑摄影
▼厨房 ©恩万建筑摄影
▼客厅吧台 ©恩万建筑摄影
柔光中的雕塑
当光庭呈现,路径切分后,家中剩下的空间遵循着梁柱、设备、家具等自然地形成隆起的体量,它们又悄然地融进吧台、长桌、鞋凳、狗洞、储纳功能使用中。在柔和的光线中显现出雕塑般的明暗转折。
▼雕塑般的体量贯穿空间 ©恩万建筑摄影
▼户外庭院 ©恩万建筑摄影
▼原始平面 ©大海小燕设计工作室
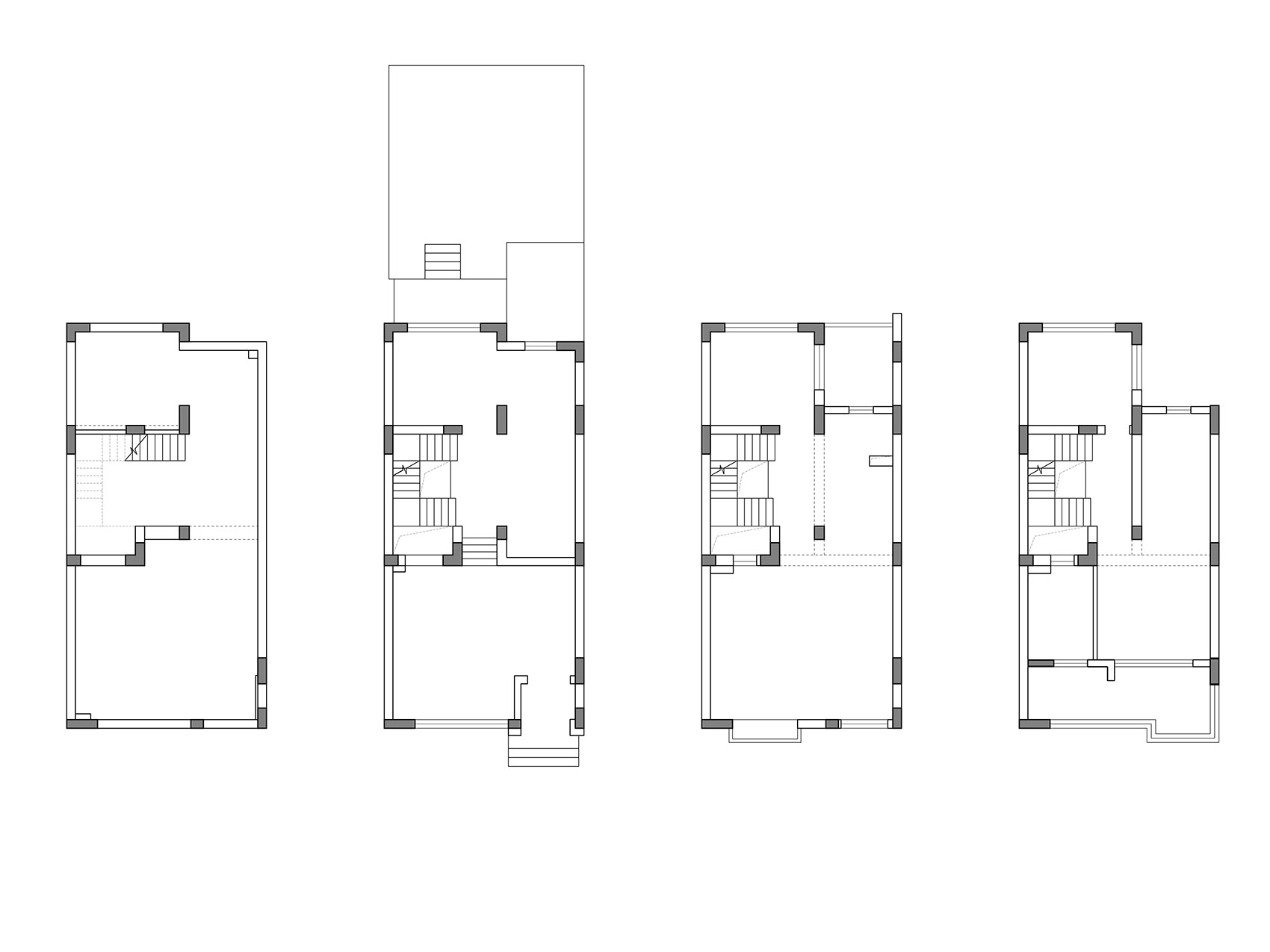
▼项目平面图 ©大海小燕设计工作室
▼一层剖面图 ©大海小燕设计工作室
▼楼梯间剖面 ©大海小燕设计工作室
项目名称:光庭
设计方:大海小燕设计工作室
公司网站:
项目设计 & 完成年份:2020-2021 年
主创及设计团队:郭东海,燕泠霖
项目地址:上海市静安区
建筑面积:300.2501349m²
摄影版权:恩万建筑摄影
客服
消息
收藏
下载
最近



















































