查看完整案例

收藏

下载

翻译
Architects:2by4-architects B.V.
Area:180m²
Year:2024
Lead Architects:Remko Remijnse, Matteo Carbone, Agnese Argenti
Lead Team:Remko Remijnse
Design Team:Agnese Argenti
General Constructing:Bouwbedrijf Bos
Interior Design:Kooistra Interieurbouw
Landscape Architecture:Staatsbosbeheer
Engineering & Consulting > Structural:Constructiebureau Heino
Engineering & Consulting > Lighting:Bakker installaties
Engineering & Consulting > Environmental Sustainability:TiMax
Country:The Netherlands
Text description provided by the architects. The challenge of this project was to create a sustainable vacation home on Terschelling, seamlessly integrating into the dune landscape of West Aan Zee while maximizing the breathtaking views. The result is a restrained and intimate dwelling, whose design and material selection harmoniously blend with its surroundings. The metaphor of the "hermit" guided the concept: an ostensibly closed natural structure nestled in the sand, yet upon closer inspection, revealed surprises.
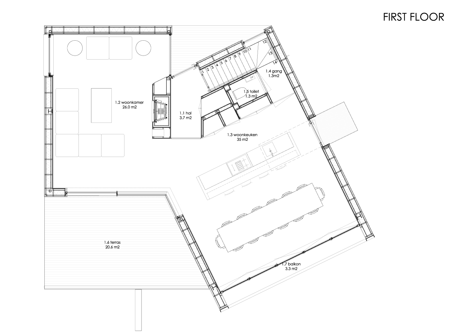
One side of the dwelling appears closed with occasional openings in the facade, while the other side opens completely toward the landscape. Furthermore, the floors contrast starkly; the ground floor is low-key and embedded in the dune, merging with the landscape, offering an intimate ambiance with subtly filtered light and views. Conversely, the first floor is open, lofty, and luminous, with each space offering a unique vista of the landscape, filled throughout the day with changing natural light, creating a rich diversity of atmospheres.
Surrounding the dwelling is a thoughtfully designed landscape with terraces at various elevations, each creating its ambiance and enhancing the sense of privacy. This meticulous design ensures that the home is not merely a place to stay but an experience seamlessly blending with the beauty of the natural surroundings.
The location's 360-degree beauty offers a complete immersion in the stunning dune landscape. The dwelling is designed from various sightlines, accessed via a notch between two concrete discs in the landscape. From the entrance hall, a spiral route through the home unfolds, akin to a journey through the dunes, echoing the hermit metaphor. This route revolves around a wooden core housing a variety of functions across both floors, offering a sequence of spatial experiences with varying light and views.
The task was to achieve a net-zero energy home with a zero-carbon footprint. Through good insulation, proper orientation, a heat pump, and burying the ground floor, an energy-neutral building was realized. By installing solar panels on the adjacent existing dwelling, also owned by the client, a net-zero energy balance was achieved. The entire facade is constructed from biobased materials that elegantly blend with the landscape and naturally age over time. Finally, a conscious decision was made to involve local parties from the island in the construction process, contributing to the local economic and social sustainability.
Project gallery
客服
消息
收藏
下载
最近
















