查看完整案例

收藏

下载

翻译
Architects:Irina Biletska
Area:2153ft²
Year:2021
Photographs:Maja Juzwiak
Manufacturers:Delfavero,Luzeiro marcenaria,Point dos Marmores
Lead Architect:Irina Biletska
Executive Project:Joana Pack
Construction Administration:Gonzalo Nadal
Program:Térreo: sala de estar, cozinha, quarto de visitas, varanda, banheiro, área de serviço. 1º andar: suíte master, home office.
City:Serra Grande
Country:Brazil
Text description provided by the architects. Located in a tranquil coastal village in southern Bahia, Brazil, this house harmoniously integrates with the lush Atlantic Forest, embracing the region's humid tropical climate. Its main purpose is to offer a healthy, welcoming, and environmentally friendly environment, prioritizing solutions that minimize dependence on conventional energy resources.
The central strategy to ensure thermal comfort without the need for air conditioning was the maximization of cross ventilation in all spaces of the residence. This was achieved through the intelligent use of elements such as solid brick cobogó, which allows for continuous air circulation, keeping the spaces cool and airy even on the hottest days.
The design of the house is oriented to the east, making the most of natural light and the cool ocean breezes. Internally, some adobe walls contribute to regulating temperature and humidity, creating an even more comfortable environment for the residents. It is worth noting that the adobe bricks were produced on-site, ensuring a sustainable approach from the outset of the project.
The choice of construction materials also reflects a commitment to sustainability. The structure combines concrete, wood, and bamboo, the latter sourced from a nearby farm. The internal plaster and paint were made from local clay, enriched with the softness of Tabatinga, a characteristic white clay from the region.
The ceramic tile and reclaimed wood flooring add rustic charm and coziness to the spaces, while the cumaru wood frames ensure durability and natural beauty.
In addition to construction solutions, the house adopts ecological sanitation practices, such as the separation of gray water and flush water, directing them to reuse and treatment systems such as banana circles and biodigesters. Hot water is supplied by a solar heating system, further reducing the environmental impact of the residence.
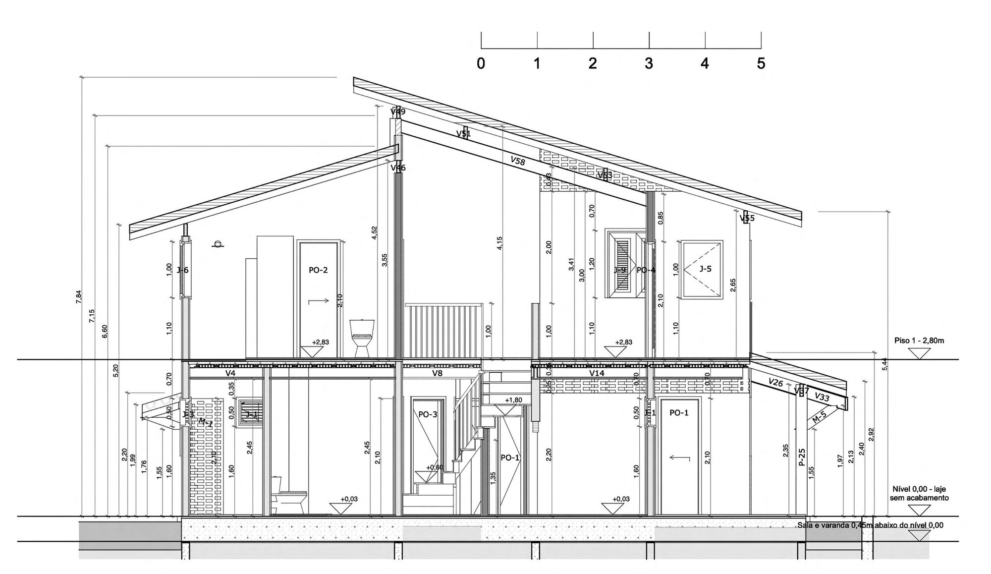
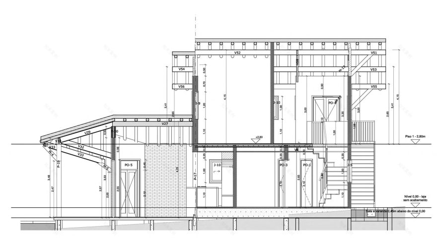
With its orientation facing the sunrise and proximity to the lush Mata Atlântica forest, the house offers natural shade and an intimate connection with nature. The project, which follows the gentle slope of the terrain, is distributed over two levels, with social and service areas on the ground floor and a master suite and a studio/office on the upper floor, the latter intended for activities such as a home office and music lessons.
For years, this house has been the happy home of a family, even witnessing the birth of a family member in a home birth, reflecting not just a residence, but a space where precious memories are built and preserved.
Project gallery
客服
消息
收藏
下载
最近























