查看完整案例

收藏

下载
“
质朴的现代主义是当代最唯美的生活方式。美不需张扬,返璞归真才是生活的本质。
——Christian Liaigre
江南,远不止一个地理概念,而是一种理想生活的代名词,她代表优雅、质朴和妥帖,代表现代社会日益珍贵的美好生活本质。位于苏州园区湖西CBD的万科左岸中心,是苏州金鸡湖西天际线上的新贵,以大平层公寓为主。DIA在此贡献2款全新样板房,用以呈现苏州精致生活的场景,开启返璞归真的湖居新纪元……
细节里的精致奢华
THE DETAILS CREATE EXQUISITE LUXURY
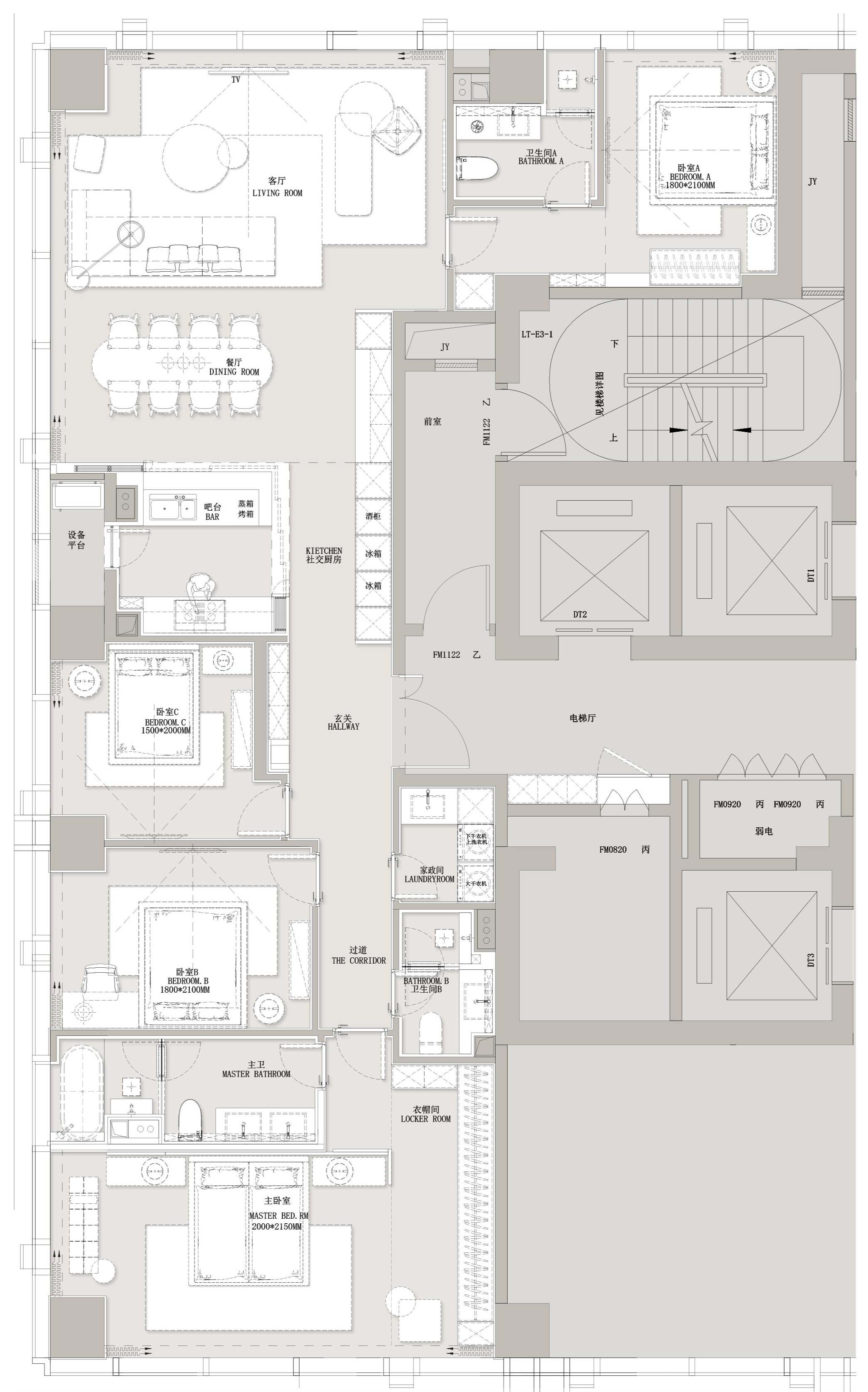
268户型
▽ 材质基调:成熟沉稳
户门内外双玄关带出整套空间的奢华前奏,简约利落的线性结构突出建筑感。
270度的全景豪宅的氛围从客厅开始,最大限度地放大了全景视野。大面积落地窗模糊了私人空间与室外空间的界限。LDK的布局模式,让空间与居住者形成一种舒适融洽的互动,生活品质、情感、梦想、彼此印证,共同生长。
大量哑光高级灰色调和皮革、石材、玻璃与金属元素、纹理独特的普拉达绿岩板,在舒适温暖的底色之上绘就优雅的图景。当光与影的交替,动与静的变换,光影游走,赋予空间不俗的沉稳气质。
开敞式的厨房,社交岛台,所有的设定均以生活动线与习惯来模拟并加入丰富的创意量身订做,聪明的收纳与整合的巧思处处可见,如大面积的西橱柜,满足了中西厨基本功能,还可以根据个人的喜好增加其他功能。在这里独自品酌或与亲朋对饮,情思爽然,便是人间乐事。
书房选极具力量感的书桌陈列,恰到好处的比例塑造出简约而隽永的空间气质。或站、或坐、或观,都可以找到最佳视角,移动的只有窗外来的光线,带来生命力的质感,思绪也随其生长蔓延,撷取一段与自我独处的静思时光。
屏风隔断出卧室内玄关,光线在墙面游走,蔓延至空间,具象地构筑起空间的温度。色调的深浅对比和空间体块的互相渗透丰富视觉层次。把自然作为生活的底色,这本身就是一种舒适与奢侈的平衡。
在城市的缭绕云雾和灯火阑珊间安放自己,真正的诗意栖居,是在心中呵护独属于自己的一方理想家。因此,家无定式,之于居者,既是可以精心雕琢的空间,亦是可以品味的生活哲学。
年轻力的新潮流
THE NEW TIDE OF YOUTH
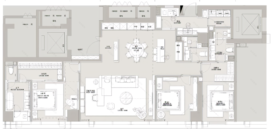
245户型
▽ 245户型平面图
▽ 材质基调:活力新潮
以完整生活概念出发,匠心打造一梯一户的归家体验,双玄关的设计从细节和生活方式来重新梳理空间的功能和需求。
城市无敌窗景,是毋庸置疑的C位。独具一格的空间角度与内敛的感官体验,革新了现代舒适轻奢的概念。书房客厅一体化设计,让公共领域更加宽敞,视觉开阔。量身定制交流、洽谈、扩列的高阶场域,缔造纯粹圈层的生活空间,与品味共鸣者,各享优雅志趣。
空间的流动,一方面得益于布局上的贯通,一方面仰仗于大面积采光的多向呼应。在核心的功能组件之外,整体浅色系的搭配,反向聚焦了客厅的动线焦点,亦让家的相处有了更多极具呼吸的通透,功能与精神皆可自由生长。
结合了古堡灰,木饰面,不锈钢,岩板等丰富材质的运用,低调内敛地呼应了窗外的城市景观。设计基调带有装饰艺术风格的轮廓,包含了生活功能的各种收纳,从壁纸、屏风到浴室隔断,通过材质组合变幻来相呼应。
卧式延续了整体空间的纯粹,空间大面积留白,以温暖的低饱和度色系为底,搭配自然的木色调,注意力留给松弛本身。
将主卧扩展成自成一体的主人空间,它包括了满足收纳需求的步入式衣帽间和独立卫浴。在时间的长河里,总有些耐得住的淬炼,流传为经典。时间沉淀后的内敛之美,与当下的艺术碰撞出新的火花。
生活的俗常,经几何形态点化,明晰了功能,奏和出灵动。艺术的仪式,也丝毫不甘缺席,以材质的品位,以色彩的调和,以细部的精度,共同营造出致敬热爱生活的礼赞。
结束语
即使再细碎的生活片段,也值得用心对待。DIA的艺术情怀与现代审美的需求相结合,让时间的维度,在空间中一一串联,为自然、为生活去追寻明日的美好。
项目名称:左岸中心
业主单位:苏州万科
项目位置:苏州工业园区苏惠路星汉街
设计范围:268样板房 245样板房
甲方团队:李森,蔡逸帆,陈嘉豪,高洁颖
主创设计:薛峰
设计团队:朱晓鸥,卢卓铭,董伟
软装设计: CCD·WOWU无物艺术
完成时间:2022年11月
摄影师:鲁哈哈
ABOUT DIA
DIA丹健国际是由中德多位设计师合作成立的国际化设计团队,在深圳、上海、德国Herford均设有创作团队和顾问团队。DIA主要从事高端酒店、办公、住宅、会所、商业空间等公共空间的室内设计,是华润、华侨城、融创、招商、融信等一线地产商长期战略合作伙伴,拥有如上海苏河湾、北京东直门8号、融创北京壹号院、深圳华侨城新天鹅堡、深圳前海双子湾等一系列重量级作品。DIA自成立起一直坚持自我、坚守品质,并以其良好的信誉和稳健的作风赢得了业内一致赞誉。
客服
消息
收藏
下载
最近


















































