查看完整案例

收藏

下载

翻译
Architects:STO.M.P
Area:5000ft²
Year:2023
Photographs:f/8
Manufacturers:Bloom habitat,Carysil,EBCO,Hafele,Hybec,Ikea,Jaquar,Kaff,Mikasa,Nuvocotto,Tostem,Urban Pots
Lead Architect:Vignesh Sekar
Structural Engineers:Archetype
MEP Consultants:Aperture
Co Founder:Shamini Vignesh
Project Lead Architect:Karthik Vasuki
Architects:Raji Annamalai, Abishek
Interior Contractor:Pankaj
Program / Use / Building Function:Houses
Client:Swati & Sumit
Text Credit:Abinaya Somasundharam
City:Thoothukudi
Country:India
Text description provided by the architects. Sited on the outskirts of a port city, Tuticorin, the 5000sq.ft residence offers solace reflecting the relentless shoreline. The house, The Billy O’ Tea” is personified as a docked ship over the parcel, homing the residers to balance the synergy between the East Indian cultural background and the coast.
The core intent of the residence cascades throughout the spaces symbolizing magical realism as an extension of its personality delineated through seashell inlays on the rustic slabs, flooring pattern impersonating the waves and the rippling water, amphitheater personified as a rowing vessel with a seat for the oarsman. The cladded bricks on the facade strap up antiquity to the rustic personification. The creepers flowing jewels up as weeds to the abandoned vessel. The metal canopy with a water spout ensembles the overflow drain of the ship. The amphitheater, shut from its immediate atmosphere, evokes the mood of the sea with a boundless sky. Sailing into the space, we sang the shanty (traditional folk song of sailors) reflected through the material, detailing, patterns, and elements that sowed exuberating rhythm and energy.
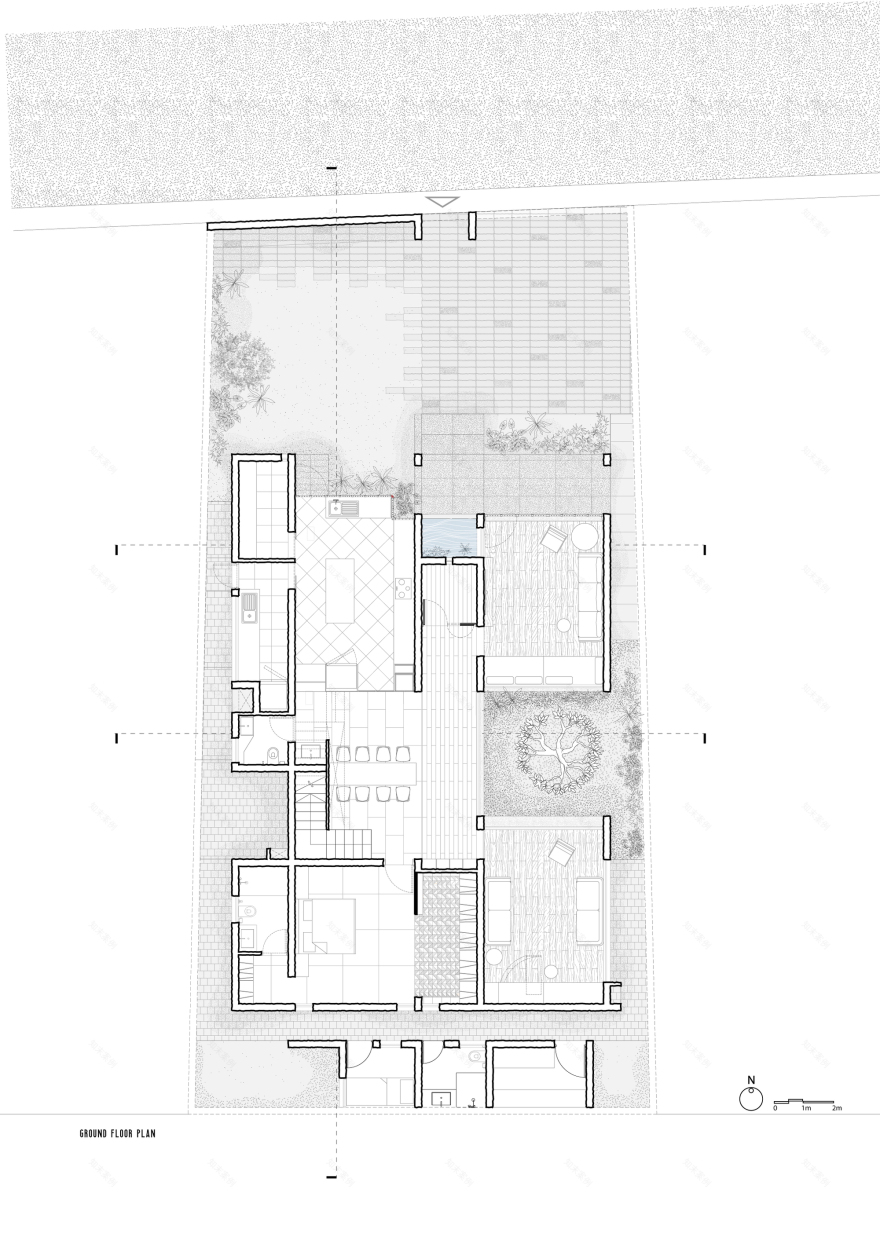
The brief resonates maximum alignment with the exterior, unveiling the need for multiple spillover areas to cater for the seasonal themed parties the family hosts, thus unwinding the spaces with seamless flow into one another through extending lawn, front yard, and an open-air theatre. The site has an urban prairie over the north that contributes to the microclimate, enhancing the flow toward the plot. The planning is straightforward, with four bays of alternating widths. The composite configuration punctuates the paths of movement with multiple exits and entries to a single node, providing pause, rest, and reorientation. The heights of the floor plates are generous to dissipate heat. The courtyard is scooped out from the mass, which blurs the limits between living and the den. All the private spaces are positioned around the core, with all their services allocated over the periphery.
Sprawling through, the kitchen extends to the front yard, quaint aesthetics of erstwhile. The court space exudes warmth and sophistication acquitting the adjacent spaces with light and ventilation. Sunlight envelopes the entire environment through the east-facing courtyard, lighting up with palpable energy. Tall punctures positioned on all edges facilitate constant wind movement through the spaces. The design intervention briefs the architectural narrative by creating a space where no detail is small or inconsequential. Sleek lines, Bold hues, and an exquisite material palette with calcium-based stones, kota, udaipur pink marble, Indian Arna marble, Jaisalmer yellow marble, terrazzo on the floor, and fenestrations create a holistic living space that muses the mood and spectrum of sea-serene and mischievous. Sunlight shimmers on the windows and doors featuring wood and Indian marble. The Indian marble on the intricate wooden joineries glorifies the twilight. The shimmering Indian marble on the wooden joineries glorifies light and life.
Stacking over the habitable spaces of diverse functions, both the living and the amphitheater aligned with a parallel thought establishes cohesiveness where their volume of spaces complements mutually. During rain, water cascades through the seaters, channeling the runoff into the floor drain. The amphitheater accommodates different ergonomic flexibility while screening movies and star gazing. The house images a ship in remembrance of the city’s Horcrux. Manifesting “The Billy O’ Tea” to sail into the sea. YES, IT SAILS. Soon may the Wellerman come to bring us sugar and tea and rum!
Project gallery
客服
消息
收藏
下载
最近





































