查看完整案例

收藏

下载
Superimpose叠术建筑应邀接受了在北京核心区域,为跨国科技公司华为,设计首家“北京旗舰店”的挑战。该店坐落于北京热闹繁华、享誉数百年的王府井步行街的十字地带,毗邻历史建筑故宫。作为传统与现代的交汇之地,王府井正在积极迎接国际化的时代潮流,而这片古老的、充满活力的商业区,不仅是中国文化底蕴的代表,更是国际化的窗口。
▽店面概览© Kris Provoost
该店设有两层,占地超过1200平米,Superimpose叠术建筑从深厚悠久的地标古迹——例如故宫和长城中汲取灵感,将中国传统建筑元素、空间逻辑和构筑语言,巧妙地融入现代设计中,进行全新阐释。多年来,华为以“构建万物互联的智能世界”为愿景,不断扩展产品范围,广泛涵盖电子产品、智能设备等,并逐步打造出数字生态系统。此次北京旗舰店的设计,引入“城市客厅”的理念,尊重在地文化,同时为所在城市营造出一个全新的体验空间。
▽传统与现代的交汇之地© Kris Provoost
▽从深厚悠久的地标古迹中汲取灵感© Kris Provoost
室内设计:中轴线与绿洲灵感
Superimpose叠术建筑秉持着“期待+1”的设计宗旨,全力投入这一挑战性项目。旗舰店整体采用连续的布局,灵感源自于紫禁城的尺度、对称性和不同空间类型。其中,展示厅位于整个店铺的中心,设计契合了人们对华为店面形象的期待——整洁、简约、细致入微的美感,致力于最大程度地展示产品,为访客带来沉浸式的空间体验。此外,设计团队结合“城市客厅”概念,创造了鼓励社区聚会、探索和互动的空间:绿洲咖啡区。
▽展厅入口区域© Kris Provoost
▽主要销售区© Kris Provoost
▽二层等候区© Kris Provoost
▽儿童区© Kris Provoost
在原始建筑场地不对称的情况下,设计团队加入了一道厚重的天然莱姆石墙壁,将店面对称的划分为销售区、绿洲咖啡区,巧妙的与北京的城市脉络、中轴线、紫禁城均衡对称的布局相呼应,同样也是华为美学的延续。这个自然石材隔断墙,受到长城的启发,其清晰的墙面缝隙,是对长城砖墙的汲取与提炼。
▽天然石材将空间划分为销售区和绿洲咖啡区© Kris Provoost
▽绿洲咖啡区© Kris Provoost
绿洲咖啡区,旨在为访客提供一个互动体验场所,鼓励人们使用产品并融入“城市客厅”。咖啡区本质上是一个多功能空间,可用于举办活动、讲座或日常聚会。它在设计上采用木质天花、暖色微水泥地板和茂密的绿植墙,并放置了一座洞石咖啡吧台,呈现了一个自然、明亮温馨的韵律空间。咖啡区的楼梯设计独具匠心,踏步的另一端连接着一整块玻璃面板扶手,悬浮于郁郁葱葱的室内花园上方。这些细节,均是受到长城蜿蜒于北京苍翠山脉的景色启发。
▽自然、明亮温馨的韵律空间© Kris Provoost
▽楼梯口© Kris Provoost
▽独具匠心的楼梯© Kris Provoost
立面设计:古老建筑的优美曲线
两层通高的玻璃幕墙,镶嵌在曲面造型的UHPC(超高性能混凝土)立面框架中,描摹出紫禁城壮丽的气势。立面的弧形造型,借鉴了北京城古老而优美的屋顶轮廓线。设计团队精密把控每一个技术细节,确保其表面处理干净而流畅。
▽曲面造型的玻璃幕墙© Kris Provoost
8.8米高的玻璃板,凸显了立面对于城市的开放性,将街道上的人群自然地引至室内。值得一提的是绿洲咖啡区内,设有一块大型的LED曲面屏幕,增添了视觉吸引力,也将室内外无缝衔接,交融贯通。UHPC幕墙板,遵循商场裙楼的屋檐轮廓,而中间的玻璃门,则在入口处形成了一个凹形空间,表现亲切的邀请姿态。
▽入口处凹形空间© Kris Provoost
▽大型LED曲面屏幕让室内外无缝衔接© Kris Provoost
作为旗舰店类型的项目,Superimpose叠术建筑的整体设计思路,旨在欢迎访客,避免繁琐或过分的装饰,专注于为华为打造一个高品质的互动空间,并在北京城市中心根植和推广数字生态系统,带来全新用户体验。
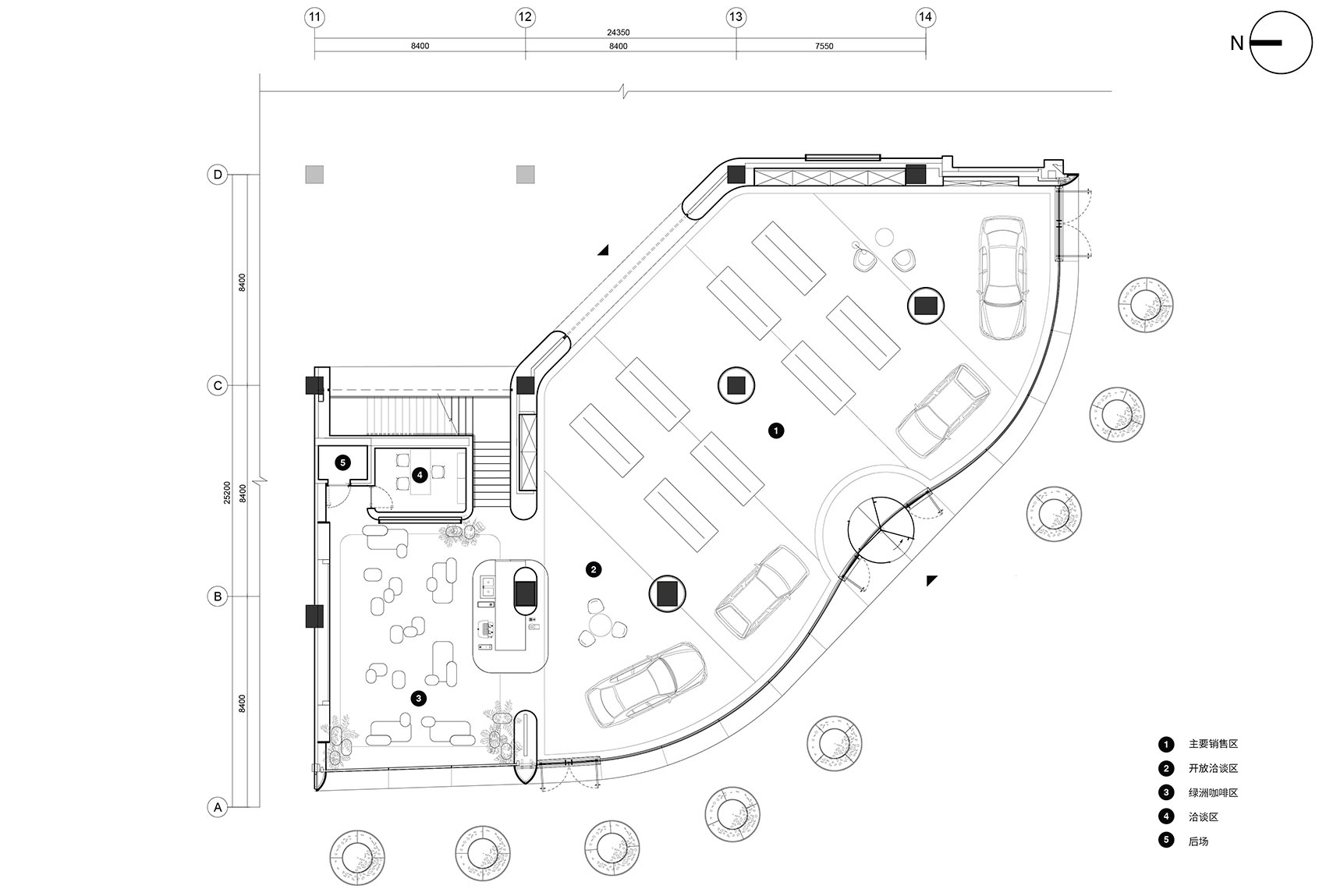
▽一层平面图© Superimpose Architecture
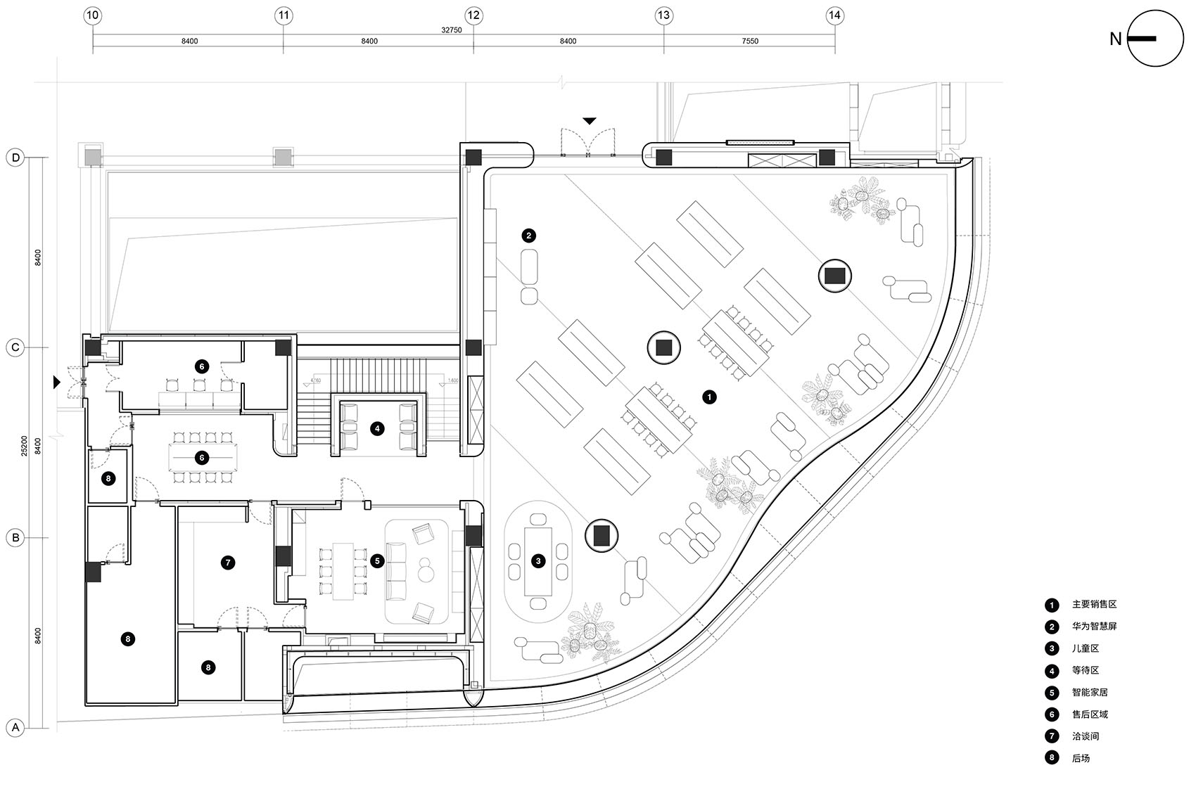
▽二层平面图©Superimpose Architecture
▽立面图©Superimpose Architecture
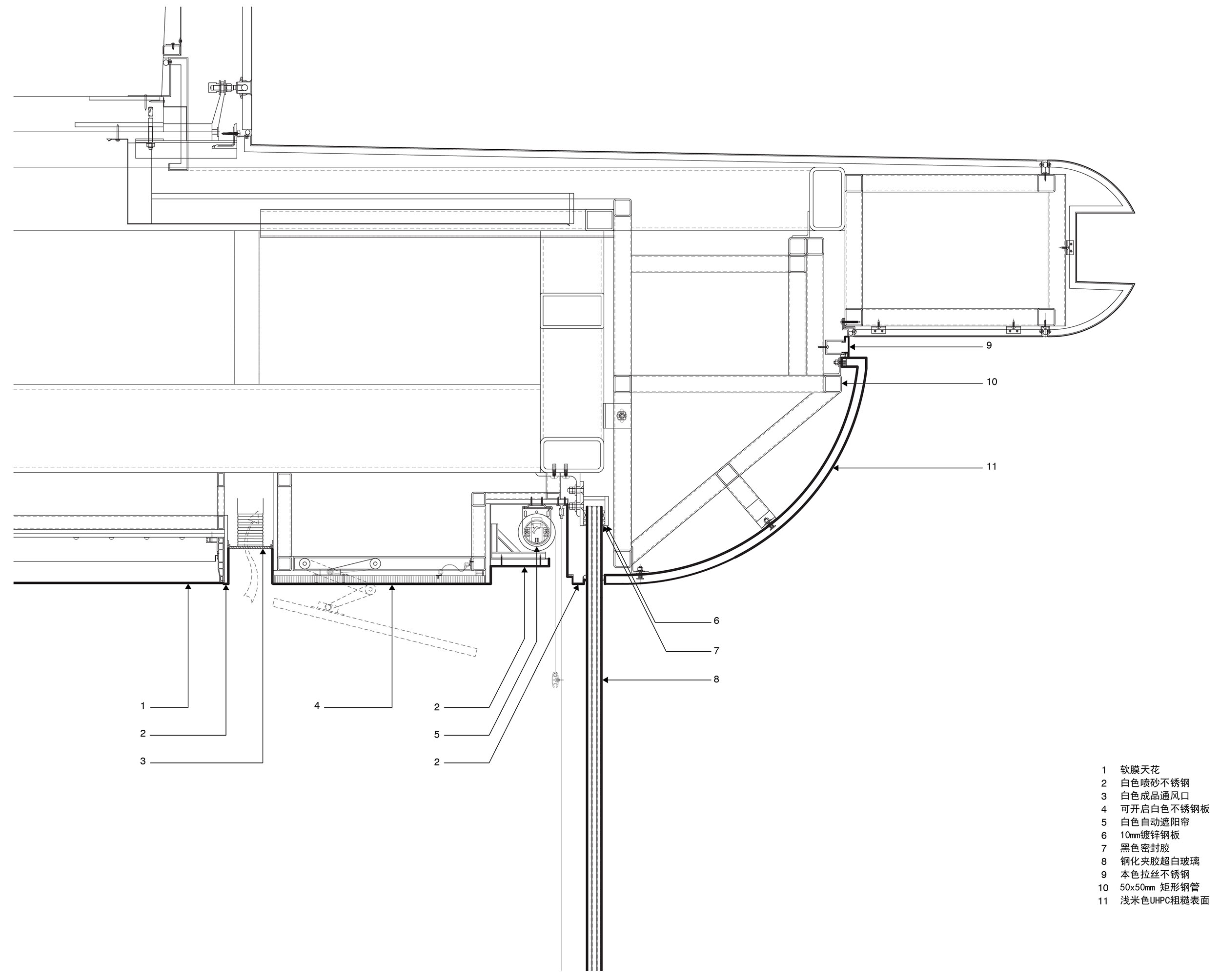
▽幕墙大样水平©Superimpose Architecture
▽幕墙大样垂直©Superimpose Architecture
项目名称 / 华为旗舰店 · 北京王府井
项目业主 / 华为
项目位置 / 北京王府井步行街银泰in88大厦
项目类型 / 商业零售
设计范围 / 室内设计与立面设计
设计公司 / Superimpose 叠术建筑
主创设计 / 梁励德,Ben de Lange,Ruben Bergambagt
设计团队 / 梁励德,Ben de Lange,Ruben Bergambagt,JunWei Loh,许潇予,曲海波,王思捷
项目规模 / 1,233 .2501349m²
合作方 / 总承包商:上海信鸿实业(集团)有限公司,设计院:悉地(北京)国际建筑设计顾问有限公司,幕墙顾问:上海熙玛工程顾问有限公司,照明顾问:上海碧甫照明工程设计有限公司
完成日期 / 2024年1月
项目材料 / UHPC 超高性能混凝土(外立面),天然莱姆石材(室内墙面),水磨石(地面),软膜天花(顶面)
摄影 / Kris Provoost
客服
消息
收藏
下载
最近



























