查看完整案例

收藏

下载

翻译
Architects:LUCY LAGO architectural studio
Area:440m²
Year:2022
Lead Architects:Lucy Lago, Angelos Lagodimos
Technical Team:Takis Lagodimos
General Constructing:Karetta Construction
City:Agalas
Country:Greece
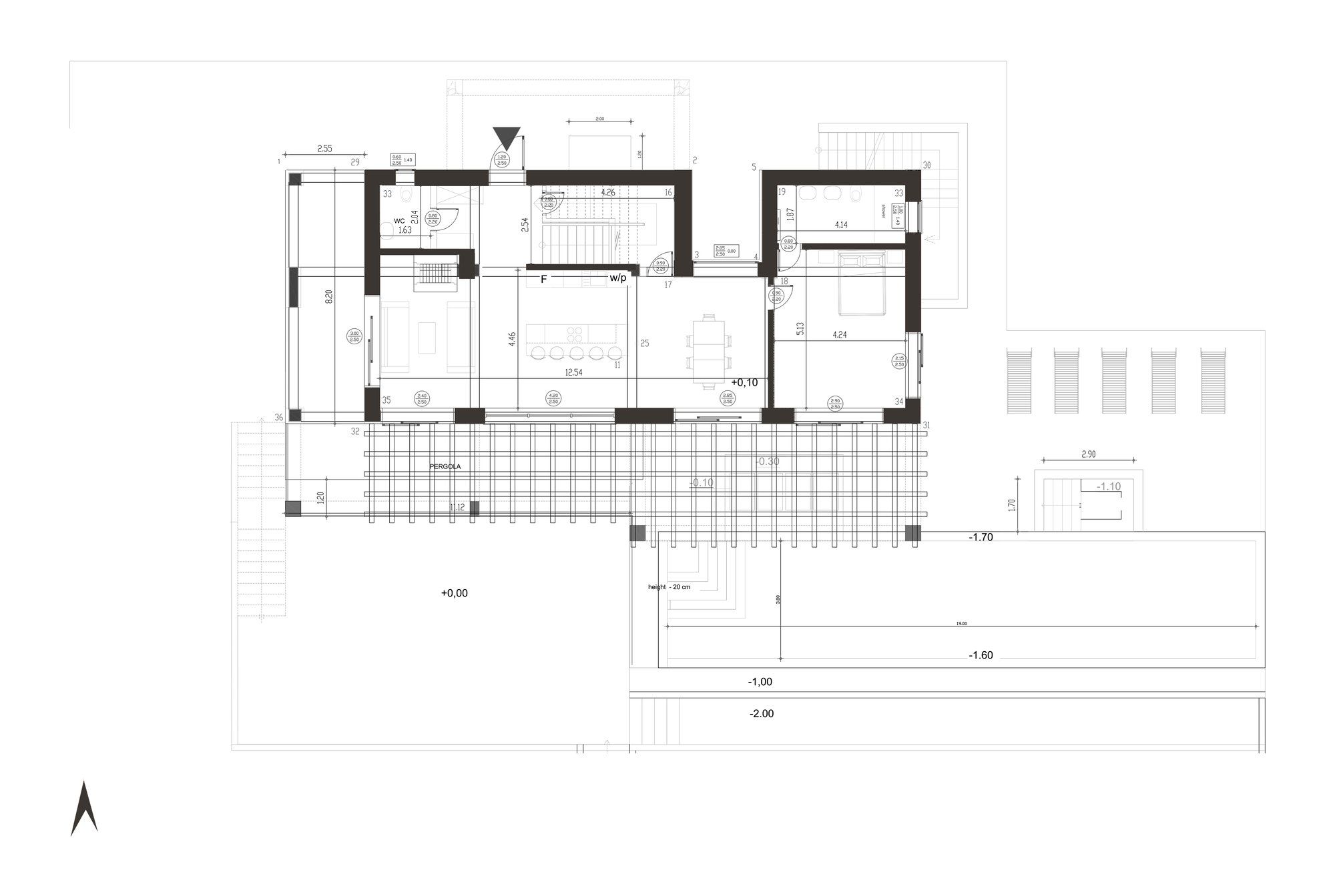
Text description provided by the architects. Villa Keri has an incredible location on Zakynthos Island, being on a hill, every room in the house offers an unforgettable view of the sea.
The project is aimed at creating a balance of traditions and modern trends. Therefore, local stone was chosen as the main material, the masonry of which is a unique relief of the facade, modern elements such as large floor-to-ceiling windows and white columns and beams complement and emphasize the architectural forms of the villa.
The structure of the villa is a reinforced concrete frame made of columns and beams, which are covered with natural local stones. We chose this construction technology to create large openings and enhance the impact of the incredible panoramic sea views on the interior space.
Villa Keri was inspired by the traditional architecture of Zakynthos. Local stone masonry has a relationship with the surrounding environment and represents a harmonious image in the landscape.
Project gallery
客服
消息
收藏
下载
最近





















