查看完整案例

收藏

下载

翻译
Architects:Sidney Quintela Architecture + Urban Planning
Area:580m²
Year:2022
Photographs:Manuel Sá
Manufacturers:Bontempo,Demuner,DiPedra,ETEC Esquadrias,HIO,Home Design Casual,Omni Light,Portobello Shop,Rauze,Tidelli
Text description provided by the architects. Customers wanted a beach house to gather family and friends on weekends and holidays. Located in Praia do Forte, on the north coast of Bahia, the residence has 580m² distributed over two floors and a basement. The project, started in 2021 and completed the following year, posed a challenge for the team at Sidney Quintela Architecture + Urban Planning office, especially in meeting the family's desire for a variety of spaces in the residence, both for hosting and leisure.
To meet these needs, the ground floor was raised by 1.50m, allowing for the full use of the basement for service areas and technical areas, as well as a multi-purpose garage for up to three cars and a cinema. In the adjacent plot, only a gazebo was installed to house a game room, a living area, and a zen space. The house's layout was designed for thermal comfort and sustainability, with natural lighting and ventilation present in all rooms.
In a contemporary tropical style, the predominant colors and materials are characterized by a triple proposal. Earth tones were used on the facades to communicate with the surrounding nature. Wood, therefore, stands out in the large window panels, pergola, and decorative panels. In the outdoor furniture, however, green and orange contrast with the more sober tones, favoring a vibrant personality in the leisure areas. In the intimate spaces, light and gray elements were chosen to provide a sense of spaciousness and luminosity.
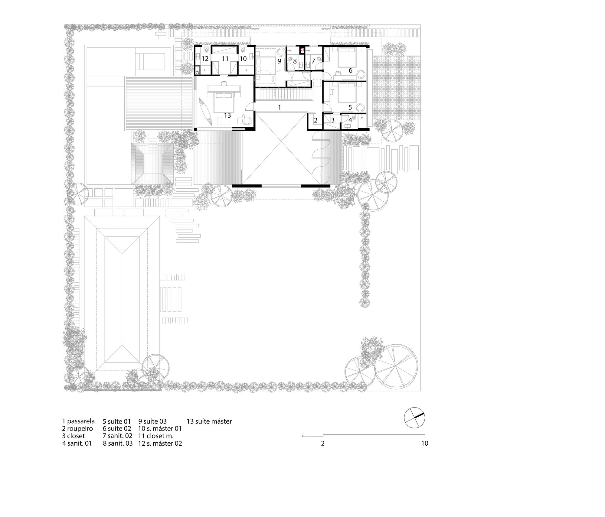
In addition to the social areas, on the ground floor, two suites were included, each with its particularity: one with total accessibility and the other serving as a reversible office. Four spacious bedrooms are on the upper floor, where the master suite offers a privileged view, a closet, and separate bathrooms for the couple.
The main highlight of the living room, which has double-height ceilings, is the internal garden that houses and hides the TV. Pivot doors, along with large window spans, allow for total visual permeability with the external environment, incorporating the surrounding landscape into the space. In terms of integration, the gourmet area, through sliding doors, integrates with the outdoor area, as well as expands the leisure area. Natural stone walls embody the resort-style.
Pieces with design blend the contemporary with the rustic in the residence's furniture. The chairs designed by Marcelo Ligieri bring lightness and contrast in line with the reclining side sofa in the living room. In the gourmet area, those designed by Gustavo Bitencourt have a linear structure contrasting with the solid wood dining table.
In this project, carpentry appears in a punctual, practical, and functional way. Natural wood is an element present in almost all environments, whether in window frames, slatted ceilings, decks, or through furniture. On the floor and walls, textured burnt cement coatings are used.
Project gallery
客服
消息
收藏
下载
最近








































