查看完整案例

收藏

下载

翻译
Architects:Unknown Works
Year:2022
Photographs:Lorenzo Zandri
Structural Engineer:Martin Redston Associates
Main Contractor:John Building Services Ltd
Additional Works:Ecore Ltd
Sink:Smeg
Glass Work:Cortizo
Tiles:Johnson
Client:Theo Games Petrohilos
Joinery:Theo Games Petrohilos
Concrete Flooring:Lazenby Ltd
City:London
Country:United Kingdom
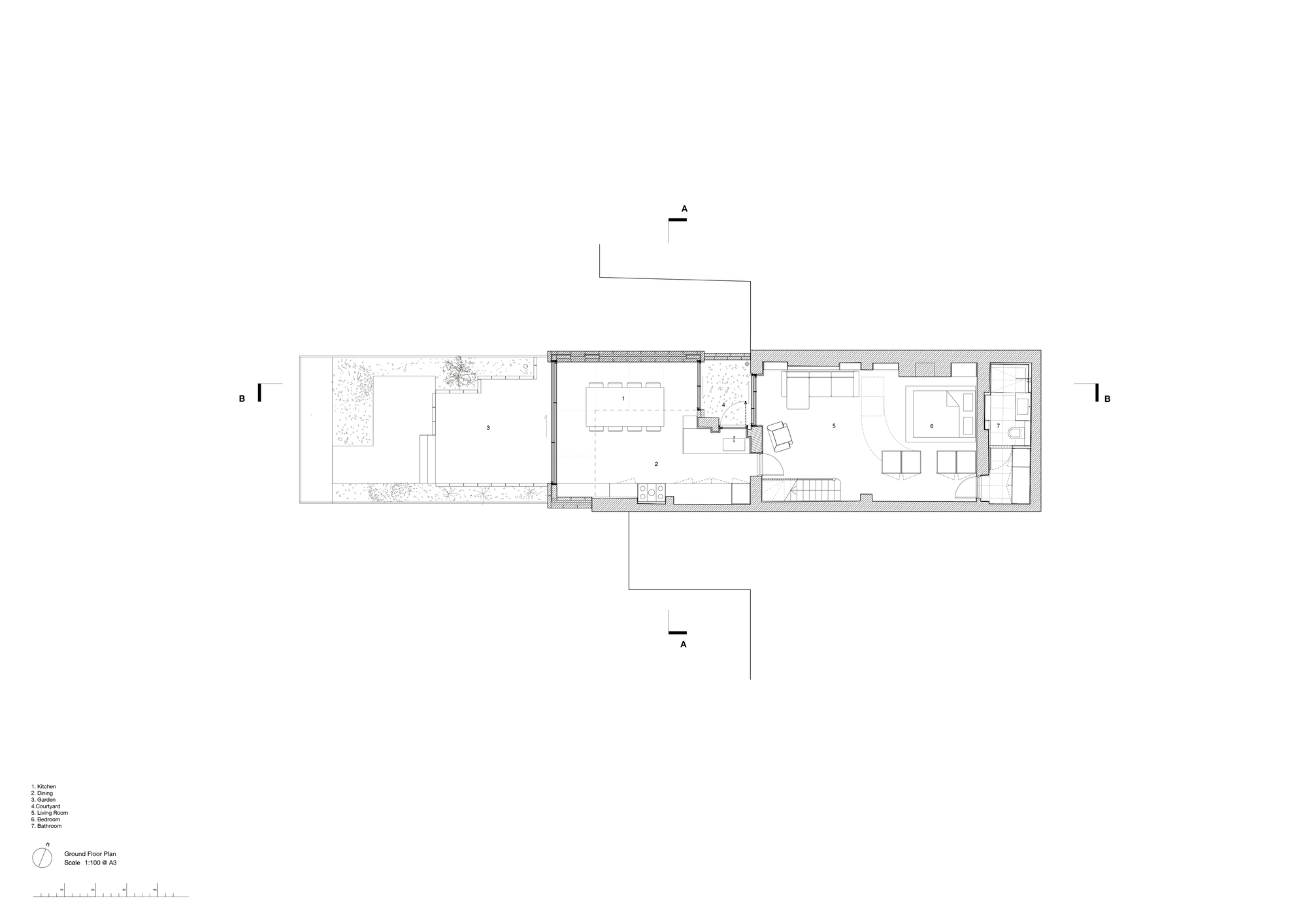
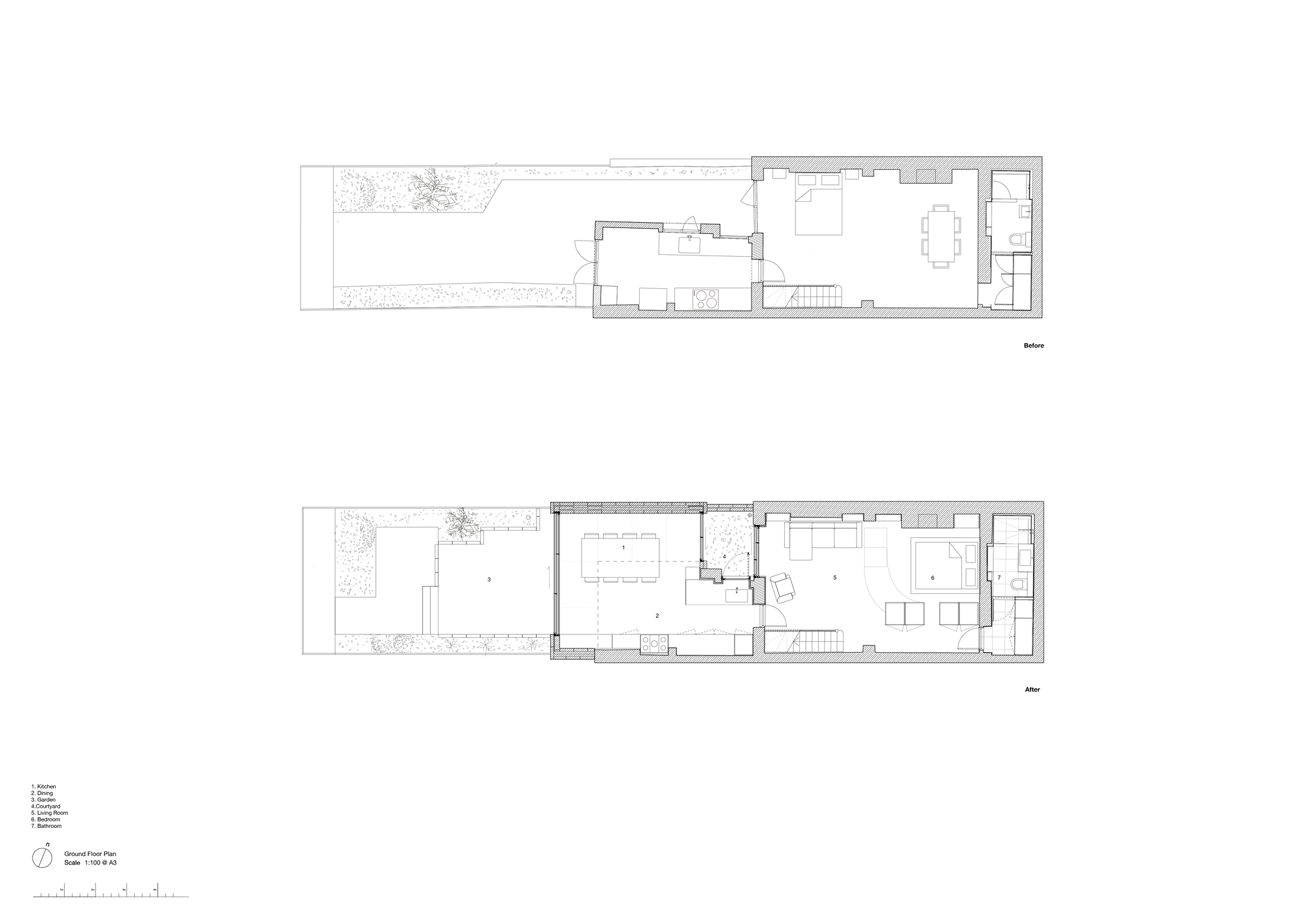
Text description provided by the architects. Unknown Works has transformed practice Director Theo Games Petrohilos’ home, resulting in a bright minimalist sanctuary in Kentish Town, North London. Using a bold approach towards layout and naturally finished materials, the studio has crafted a home flooded with light and embraced by a lushly planted hidden garden. Purchased in 2017, the existing spaces suffered from limited daylight and ventilation, decorated with faux marble tiling and a combination of dark hardwood and peeling lino flooring.
Owing to an L-shaped layout typical of Victorian terraced houses, the living spaces felt disconnected from the exterior courtyard, which featured a mature overgrown jungle of fig and bay trees. The priority was to create a flexible floor plan that increased cross ventilation and maximized access to natural light; a space to cook, work, relax and withdraw. For Theo, a keen host, the kitchen has always been the social heart of a good home; a space where friends and family gather to cook and eat together.
Unknown Works has added a side infill and slight rear extension, stepping just 1 meter into the rear courtyard garden. The reclaimed space has defined a whole new home, offering a versatile floorplan accommodating a custom stainless steel kitchen, modular furniture designed by Unknown Works, and an internal courtyard. A concrete floor anchors both the in and outdoors, expanding the sense of space to give a feeling of al fresco dining experience year-round. The ceiling throughout has been rebuilt with resilient bars and acoustic insulation to reduce neighborly noise.
Abundant natural light and airflow were central to the project brief to define an airy antithesis to the pervasive problems of London terraced homes. Working within the constraints of the tight existing plan, Unknown Works designed a new internal courtyard at the center of the home, ensuring all the rooms breathe and benefit from cross ventilation. The dining, lounge area, and large kitchen sink have dedicated openings overlooking the second courtyard garden which is lined with white pebbles, reminiscent of Japanese stone gardens. Inspired by iconic modernist houses in the neighboring Highgate area including John Winter’s own home, the newly refurbished space uses a sleek material palette of glass, white oiled timber, concrete, and stainless steel to bounce and reflect light throughout the plan.
The raw and honest materials allow the eye to travel seamlessly throughout the space - occasionally interrupted by a bright yellow door handle or painting. A custom stainless steel and plywood kitchen designed by Unknown Works offers a clean, convivial space. Original wooden floors have been painted fresh white, and white stained wood joinery further bounces light around the spaces while adding a natural depth. Smooth fair-faced blockwork with flush joints in the rear extension and internal courtyard adds a variation in texture.
The transformation presented an opportunity for Unknown Works to develop and test new ideas in modular furniture, joinery, and detailing, and create versatile interior configurations within the footprint. The practice designed a 16-seater stainless steel table, featuring a crisp edge and reflective patina designed to complement the surrounding concrete textures. Mounted on bright orange castors, it can be positioned in various configurations, even moving outside in the summer when the weather allows. Lighting too was key; a custom hanging aluminum light is suspended over the kitchen, while hidden recessed ceiling lights in the dining, living, and bathroom areas sit flush with the ceiling surface for a polished and sleek finish.
All joinery is designed and built bespoke using birch plywood, including a timber-plinthed bed with integrated storage and an open bookshelf wall. Two floor-to-ceiling plywood wardrobes, also set on wheels, rotate to define different entry sequences on arrival to living spaces, creating partitions that offer the open bedroom nook more privacy. Unknown Works’ attention to detail and transformative design approach has turned a once-confined home into a functional peaceful, light-filled haven. Oasis exemplifies Unknown Works’ expertise in creating modern architectural spaces, interiors, and furniture within a refined material palette.
Project gallery
客服
消息
收藏
下载
最近































