查看完整案例

收藏

下载
Mineless
“Mineless”位于新北市三峡区白鸡山的山林中,由曾经的忠义煤矿后勤设施改造而成。
Located in the mountains and forests of Baiji Section in Sanxia District, New Taipei City, Mineless is a reformed space that was once a logistical facility for the Chungyi Coal Mine.
▼场地入口,entrance of the site © Fanyu Lin & Lulu Lin
▼老旧的建筑遗迹营造出神秘氛围,the old architectural remains create a mysterious atmosphere © Justin Kao
遗产
Remnants
采矿设施的原始结构分散在荒野中,包括行政办公室、日本殖民时期的矿山入口遗迹、起重机基地、洗煤区、矿工宿舍、自助餐厅、浴室等等。自2000年台湾停止所有采矿活动以来,这些工业建筑废弃至今。
The original structures of the mining facility were scattered throughout the wilderness, including the administrative offices, mine entry remnants of Japanese colonial-era, a crane base, coal washing areas, miner’s dormitories, a cafeteria, a bathhouse, and more. Since Taiwan ceased all mining activities in 2000, these industrial buildings have remained abandoned.
▼B栋外观,exterior view of the Building B © Fanyu Lin & Lulu Lin
▼工业遗迹改造的冥想空间,a meditation space transformed from an industrial relic © Justin Kao
▼外观细部,exterior details © Justin Kao
功能
Function
在设施内,不同的区域被赋予了新的功能,包括:保护建筑遗迹,野生草药茶店,小剧场,天然草药茶香气室,艺术展览区,冥想大厅,以及能看到天空与茂盛的树根的茶饮休息区。Mineless旨在将当代功能融入到古老而退化的空间中,创造出丰富而充满活力的场景。
Within the facility, various areas have been repurposed for the following functions, including the preserved building of remnants, a wild herb tea shop, a small theater, a natural herb tea aroma room, an art exhibition area, a grand hall for meditation, and a seating area for tea with tree’s root in the sky. Mineless aims to integrate contemporary uses into the ancient and decaying functional spaces, creating rich and vibrant scenes.
▼被赋予新功能的空间,space endowed with new functions © Justin Kao
▼装置与建筑结构的融合,integration of installation and building structure © Fanyu Lin & Lulu Lin
▼原始建筑氛围与结构均被完美保留,the original building atmosphere and structure are perfectly preserved © Justin Kao
▼野生草药茶店,the wild herb tea shop © Fanyu Lin & Lulu Lin / Justin Kao
▼野生草药茶店吧台与座位区,bar and seating area of the wild herb tea shop © Justin Kao
修复改造
Restoration
主要建筑的修复主要集中在结构、电气系统、防水工程、原貌修复、复古家具手工工艺,以及采用本土植物进行景观美化等方面。设计师采用了一系列对历史建筑无害且友好的可逆方法,经过干预的元素在空间中架起新旧物体之间的桥梁并营造出和谐的空间氛围。
The restoration of the main buildings focuses on the structure, electrical systems, waterproofing engineering, restoration of the original appearance, craftsmanship in producing hand-made vintage furniture, and the use of native plants for landscaping, etc. These efforts employ a series of reversible methods that are harmless and friendly to historical buildings. They bridge and harmonize the differences between new and old objects in the space.
▼空间中的视角交互,perspective interaction in space ©Fanyu Lin & Lulu Lin
▼B栋室内,interior view of the Building B © Justin Kao
▼C栋室内,interior view of Building C © Fanyu Lin & Lulu Lin
修复过程中使用的主要材料是具有油壳光泽的黑铁和回收的旧木材。这些材料的老化生锈和风化纹理,与原有的建筑风格和谐共存,与结构,空间功能和建筑历史气息无缝融合在一起。
The primary materials used in the restoration are black iron with an oil-shell like luster and recycled old wood. The aging rust and weathered textures of these materials, in harmony with the original architectural style, coexist seamlessly with the restoration of the structure, functional use, and historical flavor.
▼完整保留的建筑遗存,fully preserved architectural remains © Justin Kao
▼咖啡厅/茶室,cafe/teahouse © Justin Kao / Fanyu Lin & Lulu Lin
▼茶室,teahouse © Fanyu Lin & Lulu Lin
▼景观画框,landscape frames © Justin Kao
别有洞天
Grotto-heaven
经过三年细致的研究、分析、保存、规划和建设,设计对现有空间进行了重新组织和定义。在这个美丽的空间中,我们渴望在山区煤矿的遗迹中创造出一处人类与自己、宁静、历史和自然联系的避难所。
After three years of meticulous research, analysis, preservation, planning, and construction, the existing space has been reorganized and redefined. In the midst of this beautiful space, we aspire to create a sanctuary for human connection with oneself, tranquility, history, and nature within the remnants of the mountainous coal mine.
▼隐藏灯光,hidden lighting © Justin Kao
▼细部,details © Justin Kao
▼总平面图,master plan © Divooe Zein Architects
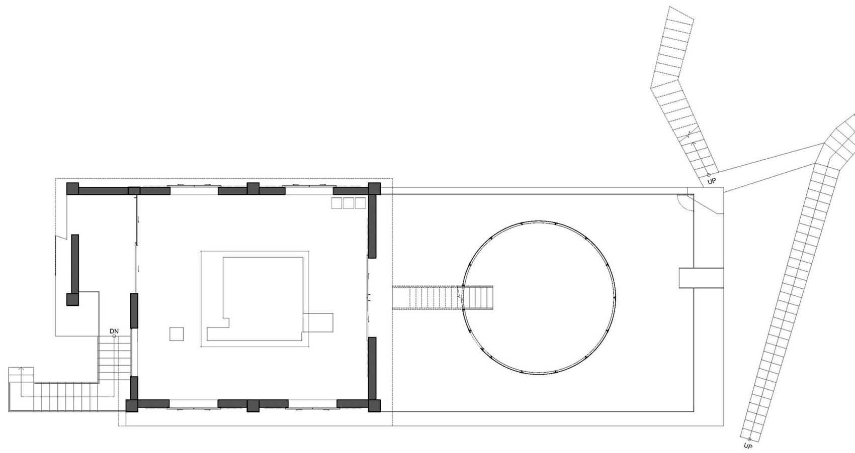
▼A栋一层平面图,Building A-1 © Divooe Zein Architects
▼A栋二层平面图,Building A-2 © Divooe Zein Architects
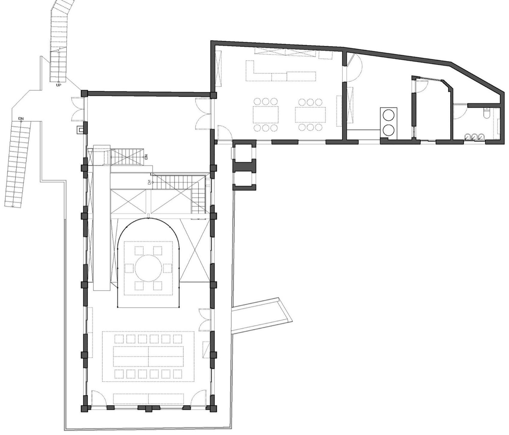
▼B栋一层平面图,Building B-1 © Divooe Zein Architects
▼B栋二层平面图,Building B-2 © Divooe Zein Architects
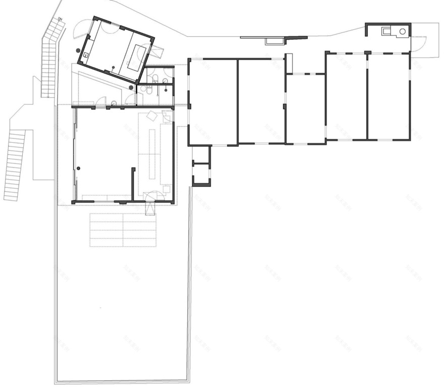
▼C栋一层平面图,Building C-1 © Divooe Zein Architects
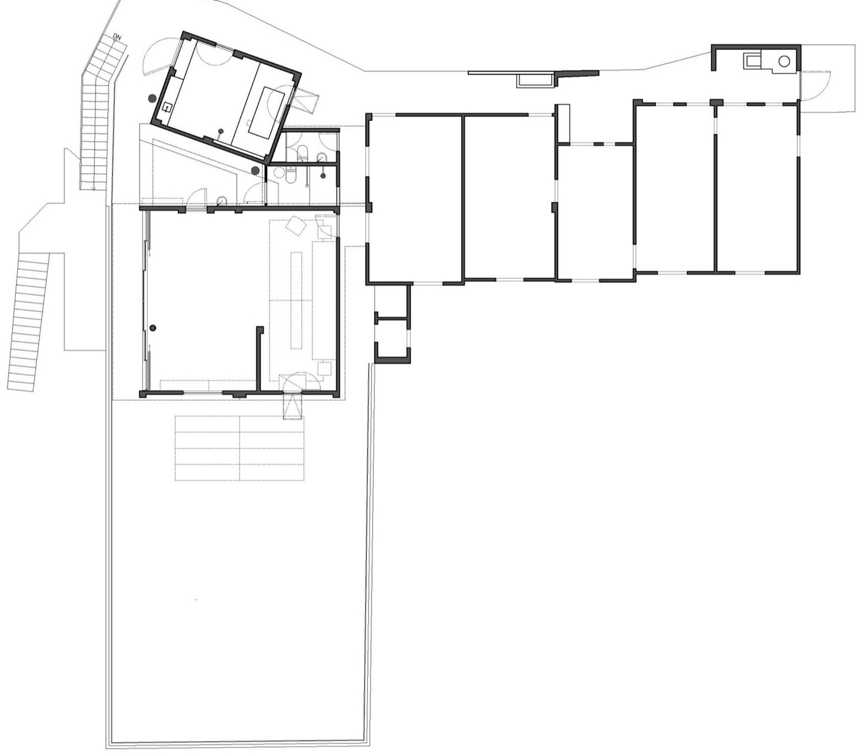
▼C栋二层平面图,Building C-2 © Divooe Zein Architects
▼C栋三层平面图,Building C-3 © Divooe Zein Architects
PROJECT INFO
Design and Planning: Divooe Zein Architects
Year: 2023
Location: New Taipei City, Taiwan
Project: Coal mine restoration
Site Area: 2380 m²
Building Area: 395 m²
Stories: 2 floors on the ground
CREDITS
Client: Mineless
Execution: C.C.H Architects
Structural Consultant: Pei Hsiu Kao
Hydrological Consultant: Te Chen Wei
Lighting Design: WEDO Lighting
Visual Design: Lulu Lin / Fan Yu Lin
Photograph: Justin Kao / Lulu Lin / Fan Yu Lin
Engineering Project Team: Studio Air Micro
Landscape Engineering: Shen Mao Green House LTD.
Furniture Engineering:
Divooe Zein Architects / An-Ting Casa Furniture / INNI Studio / Da Kang Furniture
客服
消息
收藏
下载
最近








































