查看完整案例

收藏

下载
成都锦江上院生活艺术馆位于成都市锦江区,毗邻生态旅游目的地三圣花乡。基地背靠城郭,面朝郊野,享有便捷的城市资源和自然公园——繁华市井与郊野自然两种不同的环境与生活情景在此相遇。
项目区位图 © gad
“巷院”承载着成都人的安逸生活与居住记忆,是成都独特的城市标签:杜甫草堂、宽窄巷子、崇德里……传统民居半开放的巷院空间,过渡了公共熙攘的市井与私密安静的生活,连接了城市与自然。而以经济利益主导的城市居住空间的开发方式,正在模糊、磨灭这种独特的生活体验与情感记忆。我们希望生活艺术馆的设计,可以让居者回归巷院生活——一种围绕自然与院子展开的生活方式。
摄影:Prismlmage
如何在忙碌的城市生活中唤醒安逸的生活感受,让回家更具惬意松弛感?我们尝试通过重塑回家路径的体验以实现设计理想。建筑用地面积较小,我们通过提炼、延续传统民居的空间智慧,在艺术展示厅、会客厅、健身房等不同功能空间之间嵌入不同尺度的巷院空间——半围合院坝、天井、巷弄、檐廊——以丰富空间密度与行走体验,在有限的空间内创造开放、流动的公共空间序列,延长空间路径,在城市与居所间形成温和、舒适的过渡。
空间生成示意图 © gad
与自然相连,亦是巷院生活的重要特征。为了让这种连接更极致,外墙的设计采用尽量通透、开放的方式,而室内外无高差的设计进一步增强了内外的整体性与延伸感。
无高差的室内与庭院 摄影:Prismlmage
延伸的水院 摄影:Prismlmage
传统巷院的通透与开放并非直白,而带着某种阴翳与隐逸:小天井、大出檐的空间形式,界定了空间形制又限定了光。我们的设计也着力于对自然光的控制与设计,通过空间氛围的塑造唤起居者对院与传统生活的情感记忆。
入口处悬浮的“光斗”装置,既是对院落四坡顶形式的抽象,亦产生了两种光的“形状”:外围光缝落下的光弥散、柔和,中心汇聚的光集中、有形。光以“展灯”的形式参与装置展陈,让装置呈现更具艺术氛围。下沉庭院的屋檐是内向的四坡顶,在提供更多可驻留庭院灰空间的同时,避免光线对室内的直接映射。
剖面空间形态示意图 © gad
“光斗”装置 摄影:Prismlmage
下沉庭院空间 摄影:Prismlmage
建筑的立面形式设计借鉴传统民居的精巧窗花,以粗粝的青砖复刻镂空、细致的图形,让光影参与肌理的绘制,让空间获得更丰富、细腻、朦胧、生动的情绪。
镂空的青砖肌理 摄影:Prismlmage
光影下的空间氛围 摄影:Prismlmage
锦江上院生活艺术馆的设计,不只是对成都传统生活形制的回应与回归,更是对渐入节奏的巷弄礼序、与自然相生的质感生活的理想实践。
水院 摄影:Prismlmage
室内空间 摄影:Prismlmage
技术图纸
总平面 © gad
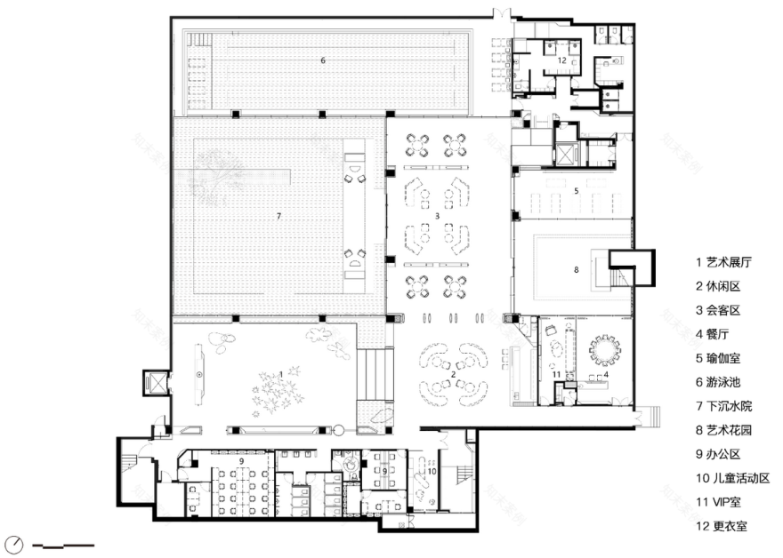
一层平面图 © gad
地下层平面图 © gad
剖面图 © gad
项目名称:成都锦江上院 巷院生活艺术馆
项目地点:四川成都
详细地质:锦江区椰树街69号
设计时间:2022-2023年
用地面积:3350平方米
建筑面积:2100平方米
容积率:0.6
设计单位:gad杰地设计
施工图设计:四川国恒建筑设计有限公司
景观设计:伤害朗道景观规划设计有限公司
室内设计:WSD世尊设计
业主:华润置地、华发股份、锦江统建
摄影:Prismimage建筑摄影
客服
消息
收藏
下载
最近
























