查看完整案例

收藏

下载
我们负责韩国美发品牌LADOR首家旗舰店项目。 客户希望在LADOR的空间里有一个休息的地方,在那里他们可以舒适地接受头发护理。 在这里,我们以LADOR舒适的家为基础,提出了一个充满体现LADOR品牌理念的建筑装置的空间。
(1) 浴室立方体被插入到
2) LADOR 的整个空间中以赋予品牌标识
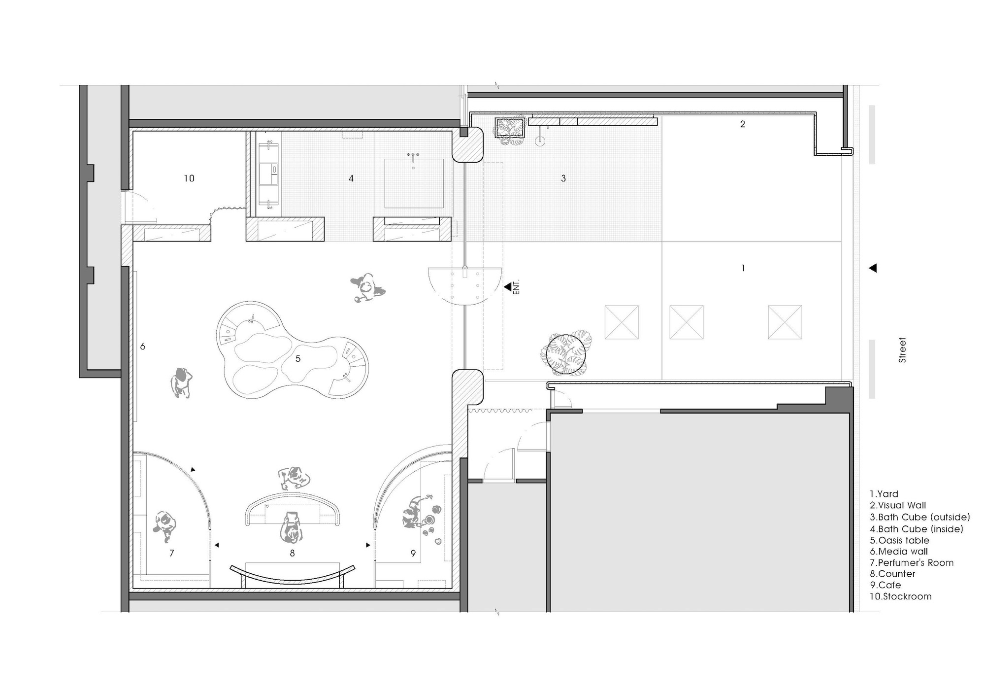
3) 房子曲线和浴室立方体交汇处的绿洲桌被放置在空间的中心 创建一条流线。 这新扩展了体验LADOR生活方式的旗舰店的疆域。
客户体验的空间装置 -
我们试图通过空间内部和外部的连接来解决隐藏在内部深处的入口问题。 我们打算将房子的整个空间与混凝土地板的外部高度连接起来,自然地将路人的目光引入室内,并从外部吸引顾客的流入。 通过连接外部和内部边界的浴室立方体,设置了一个引人注目的室外淋浴间,以引起访客的兴趣,创造出淋浴后进入房屋的过程。
我们思考如何高效引领品牌的门店体验,同时让店内感觉像LADOR的住宅空间。 我们通过将内部空间与中间的绿洲桌、展位空间和隐藏在墙后的浴室立方体分开来构建 LADOR 的形象。 进入入口首先映入眼帘的是一张绿洲桌,这是Indiesalon的标志性设计。 桌子的每一面都有一个抽屉,可以装载很多物品,利用液体美发产品和桌面上展示的产品和水槽的特点,通过灵活的曲线自然地诱导用户的流线。 这创造了进入和离开空间的各种顺序。
当您沿着绿洲桌的路径前进时,您会发现调香师的房间由黑色窗框和薄金属制成。 在这一设计中,咖啡厅的展位采用对称布置,并以经典的亮黑色饰面营造出欧洲沙龙和休息室的感觉,试图为客户提供豪华宅邸的氛围。 对于两个摊位和它们之间的柜台,我们利用 Seongsu 商店概念的含义(拥抱蓝色)创建了壁翼形状的三维轮廓。
沿着绿洲桌,从进入隐藏在墙后的浴室立方体的那一刻起,你就能更清楚地看到LADOR LADOR的品牌体验。 浴柜是顾客用五种感官体验美发产品的地方,是通过放置充满产品香味和气泡的DP浴缸来娱乐顾客的眼睛和鼻子的地方。 它由浅蓝色的定制水槽、毛巾架、俯瞰庭院的浴缸以及连接外部和内部的室外淋浴空间组成。
项目设计:Indiesalon
项目面积: 175.2501349m²
项目年份:2024
项目摄影: Donggyu Kim
供应商: TERRACO
首席设计师:Seokjoon Jang
项目业主: LADOR
项目成市: Seongdong-gu
项目国家: South Korea
设计师:Indiesalon
语言:英语
客服
消息
收藏
下载
最近































