查看完整案例

收藏

下载
南京万科朗拾示范区
Nanjing Vanke Langshi Center Exhibition Hall
中国,南京
Nanjing,China
什么是生活的真意?一处静谧的都市岛屿,一种雅奢度假的生活方式。跨越时间,历久弥新的热爱,对生活向往如新的真意。
如何寻找生活的真意?无界中寻找有界,时空中寻找记忆,精致中寻找优雅。
场所:项目位于位于河西大街、凤台南路与软件大道的交汇处,北临老城区,西接河西 CBD,东连软件谷,南面公园环伺,是主城内的稀缺地块,现有配套成熟,未来发展稳健。
△区位概况&区位图
溯源
极简主义与密斯·凡德罗
少即是多——
少,不是空白,而是精简;
多,不是拥挤,而是完美。
都市越繁华,自然越可贵,摆脱风格和形式的束缚,试图寻找最简洁的形态。建筑大师路德维希·密斯·凡德罗启迪着我们以当代简奢的线条,缔造不同以往的都市自然坐标。
△巴塞罗那德国馆
流动空间——空间构成形式多样,能够实现直接从一个点转向另一点,引导人以“流动”的角度去观察周围的事物。营造流动空间很重要的一点就是实现视线的连续的变化。
△视线分析&室内流动空间
都市岛屿
设计考虑利用高差,以“立体、复合、交错”的概念打造都市岛屿。丰富的铺装,岛屿状的台地绿化,打造社区生态空间,引导驻足、休憩与互动。
△分析图
将整个社区打造成三岛六屿,利用红线内绿地打造后花园,将自然作为设计语言,力图在繁华的城市中轴留白一处静谧的都市岛屿,在无界中寻找有界,在精致中寻找优雅。
△分析图&草图
秉承“删繁就简,溯本清源”的建筑哲学,我们致力于创造真正符合地域环境的建筑,不仅仅是生态本真,还有沉浸自然里的舒适、优雅与度假感,将自然的风景融于建筑之中,更将自然愉悦、松弛的度假体验,植入到建筑的生活里,直抵都市理想生活的样子。
△艺术馆入口/摄影:三棱镜
△庭院景观/摄影:三棱镜
设计自然
源于一体化设计所趋,将自然融入建筑更多面,即便是建筑肌理亦是如此。在对自然主义建筑解读中,越是纯粹、舒适,高雅感反而越浓烈。为此,摈弃了高端人居一贯追求材质的选择,越多关注比例、线条等设计,让建筑呈现现代低奢之美。
△艺术馆鸟瞰图/摄影:琢墨
第五立面的设计,结合屋顶进行划分,学习蒙德里安抽象艺术画做法,外形缩减到几何形状,增加第五立面的构图感
△几何抽象艺术&屋顶平面草图
△片墙与建筑关系/摄影:琢墨
通过建筑片墙的关系,将自然景观引入到室内,自然里的水流与光影在整个空间映照,让每个空间都与自然交织在一起。
△艺术场域灰空间/摄影:琢墨
△侧院空间/摄影:琢墨
运用中国园林移步易景的设计理念,在空间中创造流畅连贯的体验,将自然景观移植在动态体验及静态停顿中,创造步移景异的空间体验,景中有画,画中有景。
△后院回廊空间/摄影:琢墨
△玻璃与实墙的对话/摄影:琢墨
大尺度的玻璃面,消弭了内外距离感,引景入室,视线渗透;运用回廊灰空间过渡,外侧是绿树成荫的微风草坪。弱化了建筑的体量,建筑作为整个环境的背景,在无界中寻找有界。
△建筑消融/摄影:三棱镜
△廊下看庭院/摄影:三棱镜
驻足廊下,感受这空间的庇护,感受时空的流逝,在时空中寻找记忆。
△庇护下的视线引导/摄影:三棱镜
流动空间
建筑片墙与空间的关系,利用墙体构成封闭又开放的内外流动的空间,开放空间视线相互交流,自然景观相互渗透。
△隐奢入口/摄影:琢墨
△片墙光影/摄影:琢墨
实墙与玻璃的对话,建筑消融在整个自然之中,视线的开放性让空间流动起来。
△视线渗透/摄影:琢墨
△空间场景过程版示意图
将片墙延伸到室内,采用片墙界定空间,让整个空间视线贯通起来。
△艺术空间/摄影:琢墨
△室内空间渗透/摄影:琢墨
△空间流动/摄影:琢墨
精致细节
致力于还原建筑的自然之美,我们深入大自然,探索建筑与自然深层次的统一,斐波那契数列这一自然比例之美体现在整个布局中,通过 1.8m*1.8m 的网格寻找整个空间变化及稳定。
△斐波那契螺旋线示意
△平面网格示意
通过萃取自然的暖色调和温润的材质,融入都市的当代审美,勾勒温暖独特的建筑肌理。
建筑构成主要由四类元素构成,挑檐雨棚,石材墙,玻璃盒子,地面。墙体由室外穿插到室内,地面石材室内向外的延续,在精致中寻找优雅。
△石材与玻璃/摄影:琢墨
△挑檐与玻璃盒子/摄影:琢墨
对缝逻辑
在考究大的空间比例基础上,对细部构造尺寸进行了模数上的统一。确定每块玻璃为 1.8m X 3.3m;单块石材为 1.8m X 0.6m;吊顶铝板为 1.8m X 0.9m;地面铺装 1.8m X 0.9m,这样从立面,到顶面,到地面都按照统一模数对位对缝。呈现出最理性的设计逻辑。
△挑檐石材对缝/摄影:琢墨
△顶棚玻璃地面对缝/摄影:琢墨
△顶棚玻璃对缝/摄影:琢墨
技术图纸
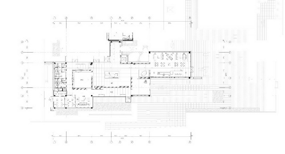
△一层平面
△立面图
△剖面图
△檐口节点
工程档案
项目名称 | 朗拾生活艺术馆
项目位置 | 南京市雨花台区
业主单位 | 南京万科
甲方团队 | 金宏 陈瑶 陆萌 丁玮 夏璐 杨宁婧
设计单位 | 上海日清建筑设计有限公司
项目总负责 | 任治国
设计团队 | 陈军 吕祝青 叶淩宇 马秀莲 张贵泳
景观设计 | 北京创翌善策景观设计有限公司
室内设计 | MAUDEA 牧笛设计
建筑面积 | 590.00㎡
设计时间 | 2022 年
竣工时间 | 2022 年
建筑摄影 | ZOOM 琢墨建筑摄影 重庆两江新区三棱镜文化传播有限公司
客服
消息
收藏
下载
最近






































