查看完整案例

收藏

下载

翻译
Der ehemalige Stall ist neu ein Wohnhaus
照片 © Ralph Feiner Fotografie, Malans/GR
Gartenzimmer
照片 © Ralph Feiner Fotografie, Malans/GR
Wohnzimmer
照片 © Ralph Feiner Fotografie, Malans/GR
Eingangsbereich
照片 © Ralph Feiner Fotografie, Malans/GR
Küche
照片 © Ralph Feiner Fotografie, Malans/GR
Bad OG
照片 © Ralph Feiner Fotografie, Malans/GR
Ortbetontreppe UG-EG
照片 © Ralph Feiner Fotografie, Malans/GR
Gäste-WC
照片 © Ralph Feiner Fotografie, Malans/GR
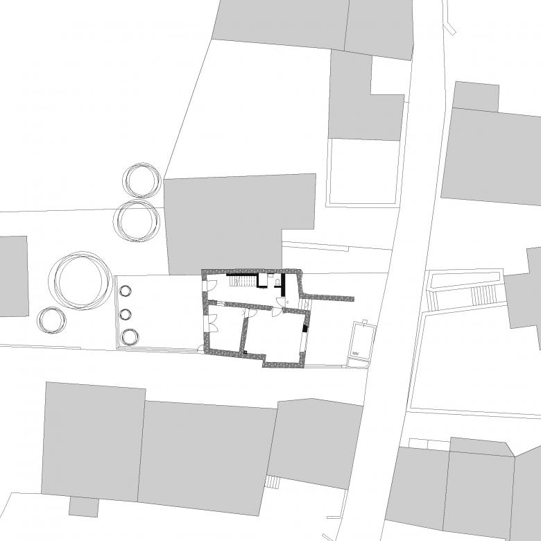
Situation
图纸 © atelier-f ag, Fläsch/GR
Grundriss Untergeschoss
图纸 © atelier-f ag, Fläsch/GR
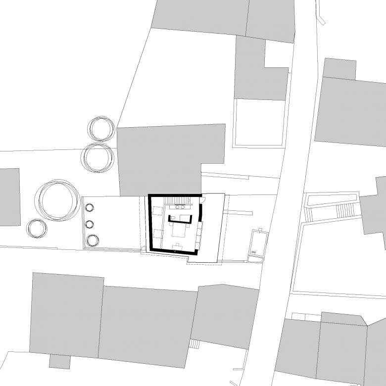
Grundriss Erdgeschoss
图纸 © atelier-f ag, Fläsch/GR
Grundriss Obergeschoss
图纸 © atelier-f ag, Fläsch/GR
建筑师:atelier-f architekten
位置:Fläsch, 瑞士
年份:2020
In der einen Hälfte der Zwillingsstallscheune wird nun gewohnt. Mit einem minimalisierten Einbau bleibt das Erscheinungsbild erhalten. Natursteinmauern und Holzverkleidungen sind soweit als möglich belassen. Der neue Einbau zieht sich ins Innere zurück und die vorgelagerte Loggia zwischen den markanten Eckpfeilern verstärkt das Bild der ehemaligen Stallscheune.
Eingestellt ist ein Einbau aus Beton, ein zweigeschossiger offener Raum. Die Raumathmosphäre wird geprägt durch die Übernahme der ehemaligen Tenn-Struktur, die durchlässige Sicht- und Lichtführung und der speziell entworfenen neuen Beleuchtung.
客服
消息
收藏
下载
最近














