查看完整案例

收藏

下载
项目基地紧邻德润路西侧,相望于蓁山脚下。近 12m 高差的场地,通过景观与建筑的融合,来访者在不同主题的景观园内步步深入,终由一条自然弧形的玻璃长廊将生活馆诠释于眼前。
城市客厅,自然纯粹
前场空间设计为城市广场,与方形建筑形态相碰撞的圆形元素塑造城市休憩场所,赋予城市一处蓁山脚下的驻足之地。
◎生活馆“树状图”
建筑与场地的关系,犹如一颗树茂密生长的大树,方形建筑作为主枝干发散出三条分支,分支各自生长为前场空间、童玩星球以及梦幻花海,在自然空间里汲取着生活馆需要的那份人间烟火。
主体建筑秉承“删繁就简,溯本清源”的建筑哲学,将建筑体块、材料以及细部以最纯粹的方式呈现自然舒适的建筑空间。因地制宜,憧憬未来。
建筑由错落有致的柱网空间架于近 12m 高差的场地之上,弧形的玻璃长廊自然地将建筑空间与自然串联贯通。外装采用超白玻搭配钢丝、铝板,体现现代设计的简洁大方。入口处抬头仰望,可见星光灿烂,犹如皓月当空繁星满布。入内弧形通高中庭,两侧设置环形书架犹如置身书房书香满屋。二层露台眺望芝罘万科城的繁华似锦,欣赏蓁山的连绵起伏,憧憬城市的未来生活。
灵感麾下,黑白见章。
◎宋照方 手绘
项目总建筑面积约 2987㎡,是由两个漂浮的玻璃盒子交互而成的“盒子”建筑。远观其势,近观其质。
概念生成,体块见形
建筑剖析,结构见致
远观其感,可见其势
远观:两个不同质感的玻璃盒子以轻盈体透的姿态穿插堆叠于空中,超白玻搭配金属钢丝给人以干净、简约,但又多了一层朦胧美的视觉感。近观其质,可见其致。
◎三层表皮
①三层表皮:在传统建筑玻璃的基础上,最外层由超白玻间隔有序布置,间隔中通过拉索钢丝丰富层次达到一种空间朦胧美。
◎入口星空吊顶
②星空吊顶:出挑二层底板穿孔铝板打造星空顶,数字化穿孔铝板的设计,使得星空顶最大程度的绽放璀璨星光。
◎前场弧形长廊
③长弧廊道:自然曲线画出的一道长弧廊道,贯穿坡地与建筑架空层之间,弧线与直线的碰撞产生艺术美。春冬之交,别有风情。
◎春意下的生活馆
此时此刻的生活馆,少了冬雪下的庄严凛然,多了一份暖春下的春意盎然。可见春意唤醒了蓁山脚下的花草树木以及那一方休憩之地,绿意下的弧形玻璃长廊,穿过花海,引人入胜。
◎冬意下的生活馆
那一棵树、两棵树,赋予生活馆的是凛冬下无所畏惧的生命力;那蓝天白云、花草树木映射在生活馆的玻璃盒子上,又是一幅大自然给予的绝世佳卷。
建筑与自然的对话
建筑与细部的对话
建筑、场地、景观、人
建筑、场地以及景观三者的协调统一,弧形短栏的设计在人车分流的基础功能上,自然的强化了入口导向感;景观场地的渐变圆形处理,与建筑的形态形成碰撞,相辅相成。且将人为感受融入设计,以致于任一角度下的生活馆都是如此的融于自然又美于自然。
穿游过丰富奇妙的登旭峡谷,沉浸于梦幻花海清淡宁神的香气里,享受过静谧的悠游时光后,映入眼帘的是“桃花源”尽头的生活馆,强壮有力的“枝干”将它架于梦幻花海之上,伴着花香鸟语,在那头轻轻歌唱着蓁山春色。
步入室内,方见其质。
室内空间的材质、色系、灯光以及空间,无一不赋予生活馆温馨、多姿的空间感受。黑白空间点缀木色以及暖光的设计,在简单空间的基础上,将暖色色调尤为突出地烘托于空间中。
蓁山脚下的生活馆无非是给予人们一个驻足、休憩或是欣赏美景的场所,如何营造出如此的生活馆呢?无边视野、风情雅座、儿童乐园、环形书吧以及契形水吧等等,无论是远道而来的你或是邻里社区的你,就此营造,何尝不吸引你入“桃花源”一赏这盛世美景呢。
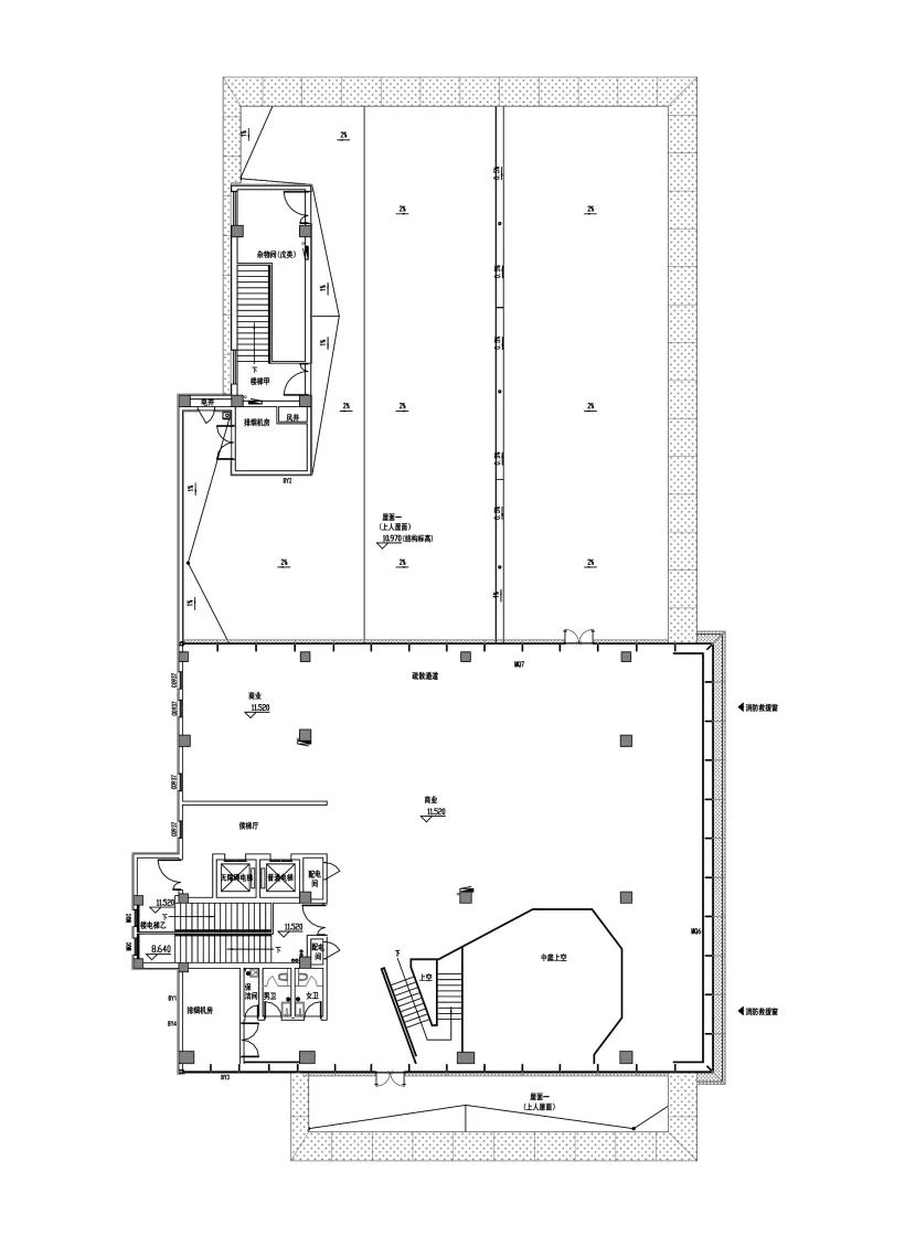
技术图纸
◎一层平面图
◎2.88M 处平面图
◎二层平面图
◎三层平面图
◎东立面图
◎西立面图
◎北立面图
◎南立面图
◎局部幕墙节点详图
◎局部墙身节点详图
项目名称|烟台芝罘万科城
项目位置|山东省烟台市芝罘区德润路与华盛路交汇处
业主单位|烟台万科房地产开发有限公司
建筑设计|上海日清建筑设计有限公司
设计总负责|宋照方
设计团队|张强 刘学杰 何军库 郝大江 邱雪玲 程豪 包玉柱
景观设计|里表都会(北京)规划设计咨询有限公司
室内设计|上海相彦建筑装饰设计工程有限公司
幕墙设计|烟台永禄装饰工程有限公司
施工图设计|山东圣凯建筑设计咨询有限公司
泛光设计|北京精诚金石灯光设计有限公司
用地面积|11500㎡
建筑面积|3010㎡
设计时间|2020.5
开放时间|2020.11
建筑摄影|战长恒
客服
消息
收藏
下载
最近

































