查看完整案例

收藏

下载
万科 · 鹿鸣星空生活馆
Vanke Luming Life Experience House
中国,包头
Baotou, China
我们希望鹿鸣星空生活馆成为社区市民心中一处走心的去处;围着建筑有好几队跳广场舞的人群、刚打完篮球的小伙、泡在书海里的小朋友、咖啡店里畅聊的人们…… 建筑跟城市一起长大,看着荒地变楼宇,杳无人烟变鳞次栉比。
包头是一座有历史底蕴的城市,作为中国工业的大后方,大草原、工业厂房、蒙元文化等交织在一起,使得城市有着独特的北方味道。
鹿鸣生活体验馆,作为新区发展的“桥头堡”,有着它独特的意义;我们希望建筑本身不单单是一个孤立的示范区,而是一个与社区一起成长的市民邻里中心。
让建筑更像一个见证者,随着城市的发展、街区的成熟、在各个阶段不断赋予街道生命力、向心力,成为市民心中和城市的一个记忆节点。
项目是一个图书馆加篮球场的邻里中心,设计灵感取自内蒙古包头的城市性格——通过材料与工艺的表达,传递出一种承上启下的传承,将工业的、民族的、未来的串联在一起。
◎工业与红砖 ◎文化与自然 ◎人与自然
概念抽取大草原上蒙古包的白净与朦胧感,与工业红砖厂房的历史感作为建筑主基调。
在此之上,赋予建筑一层星空的质感,象征一种人与星辰,人与未来的畅想和链接。
◎抽象提取
场地位于地块的街角位置,为了打破四层基础体量过于敦实的特点,各层做了略微的拉伸与旋转,并将处于正对街角的位置打开一个迎向空间,作为一个街端的视觉吸引与迎宾角点,聚集人气与提升社区参与性。
◎体块生成
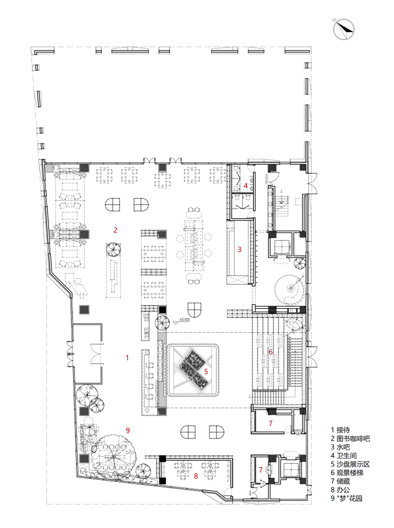
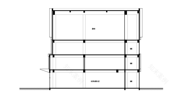
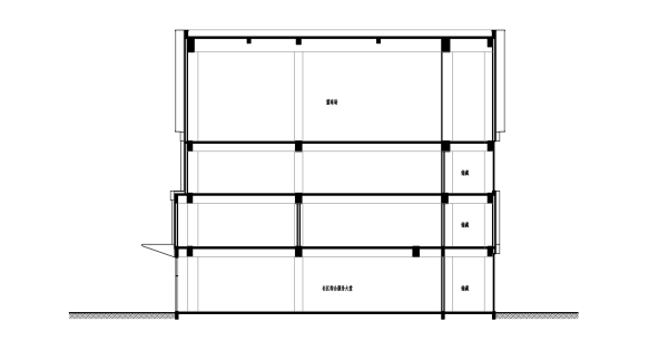
功能上对邻里中心和示范区结合做了一个探索,一二层为市民图书馆,三层是复合办公,四层为多功能篮球场;在社区、城市逐步成长的每个时期,为社群区域的居民提供一个运动与文化相结合、高品质,全龄段,多层次的共享空间,丰富市民的城市生活体验与文体生活需求。
项目在立面设计上,利用搭接砖红色陶板和倾斜穿孔铝板的组合,通过材质的不同反射率,跟自然天空光照互动,同样的砖红色下,不同材质特点在全天光照角度不同,映射出不同的立面效果,营造出丰富变化的立面整体;四层的大面积聚碳酸酯板,营造似蒙古包在大草原、蓝天下的那种——朦胧、轻盈、洁净的感觉;在阳光的参与下,跟一至三层立面形成奇妙的对比 。
首层入口也做了一个尝试,通过玻璃砖和铝折砖的渐变结合,表达一种由玻璃渐变为金属的突变感,打造材质间的冲突与融合—— 回应着包头城市发展的主题:传统与创新,工业与生态、冲突与融合。
到了晚上,建筑被点亮,星光点点从的穿孔铝板背后透出来,映出整个建筑的立面,与自然的星空形成倒映关系,呈现一种自然与建筑的互动;4层聚碳酸酯板背后的控变LED可根据想法打出不一样的动态色彩、图案,展现建筑在晚上活力、潮流的一面。
在未来,随着社区一步步发展,楼宇商街一点点盖起来,我们希望鹿鸣星空生活馆成为社区市民心中一处走心的去处;围着建筑有好几队跳广场舞的市民、刚打完篮球的小伙、泡在书海里的小朋友、咖啡店里畅聊的人们…… 建筑更像一个见证者,跟城市一起成长,看着荒地变楼宇,杳无人烟变鳞次栉比。
技术图纸
◎一层平面图
◎二层平面图
◎三层平面图
◎四层平面图
◎西立面图
◎东立面图
◎南立面图
◎北立面图
◎剖面图
◎节点图
工程档案
项目名称 | 包头万科·鹿鸣生活馆
项目位置 | 内蒙古包头市九原区青山路与世纪北路交汇口
业主单位 | 包头万科
建筑设计 | 上海日清建筑设计有限公司
设计总负责 | 宋照方
设计团队 | 张强 王小飞 娄立明 何柳汐 刘翔传
景观设计 | 凯盛上景(北京)景观规划设计有限公司
室内设计 | 北京界面空间室内设计有限公司
亮化设计 | 北京凯顺腾工程咨询有限公司
施工图设计 | 中旭建筑设计有限责任公司
施工单位 | 沈阳北方建设股份有限公司
建筑面积 | 5069㎡
建成时间 | 2020.10
建筑摄影 | RudyKu
客服
消息
收藏
下载
最近






























