查看完整案例

收藏

下载

翻译
Zimmer im Regelgeschoss
Wohndiele als zentraler Wohnungsverteiler
Offene, durch Schiebetüre abtrennbare Wohnküche mit Essbereich im Regelgeschoss
Zimmer im Regelgeschoss mit Einbauschränken, Balkone mit für den Vogelschutz eingefärbter Schallschutzverglasung
Offener Wohn- und Essbereich im Dachgeschoss mit Fernsicht
Situationsplan
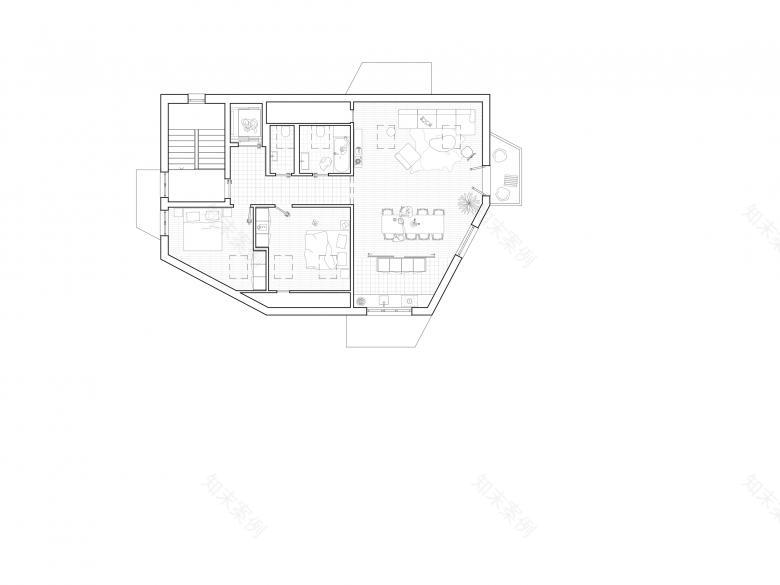
Grundriss Erdgeschoss
Grundriss Dachgeschoss
Grundriss Untergeschoss
Querschnitt
Farbkonzept Treppenhaus
Foto vom Arbeitsmodell
建筑师:Nussbaumer Architekten AG
年份:2021
In baurechtlich schwieriger Ausgangslage entsteht ein Mehrgenerationenhaus für eine Familie. Hohe Lärmbelastung von Kantonsstrasse und Bahngleisen, einschneidender Baulinienverlauf und ungünstige Baugrundverhältnisse sowie ein knappes Budget beeinflussten das Projekt. Der Baukörper markiert städtebaulich den Auftakt zu einem Wohngebiet. Die Ausformulierung mit Schrägdach unterstreicht nicht nur die Bautypologie als Wohnhaus, sondern nutzt die reduzierte Gebäudetiefe optimal aus. Ein grosses Rundfenster bietet nicht nur spektakuläre Ausblicke bis in die Voralpen, sondern gibt dem Haus ein unverwechselbares Gesicht.
Es entstehen drei altersgerechte Wohnungen mit zeitgemässer Ausstattung. Nutzungsneutrale Zimmer sorgen für eine flexibel nutzbare Belegung der Wohnungen. Die Garagenzufahrt macht sich den Terrainverlauf zunutze und erfolgt ebenerdig. Das Gebäude kommt mit wenig Haustechnik aus und setzt auf eine nachhaltige und langlebige Materialisierung.
Die Liegenschaft wurde im Edelrohbau an die Bauherrschaft übergeben; Innenausbau, Materialisierung und Gartengestaltung erfolgte mit unserer Unterstützung in Eigenleistung durch die Bauherrschaft.
客服
消息
收藏
下载
最近

















