查看完整案例

收藏

下载

翻译
Pecha Kucha «Eure Besten» an der ZHAW 13.10.2022
Video © PSA Publishers Ltd.
Grundriss Erdgeschoss
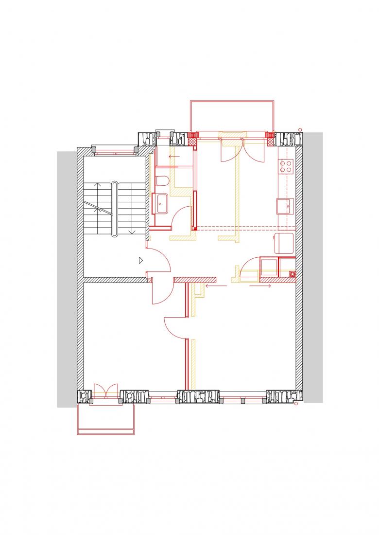
Grundriss 1. Obergeschoss
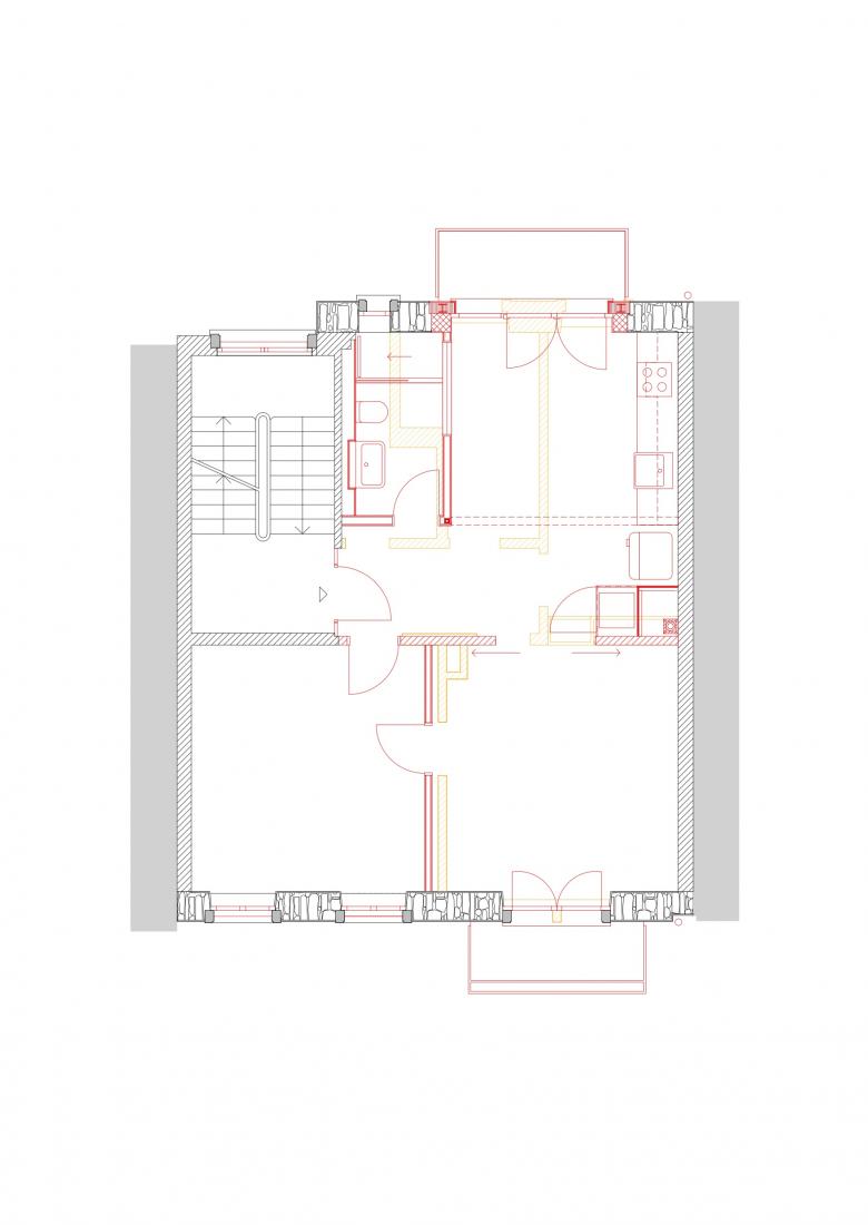
Grundriss 2. Obergeschoss
Grundriss 3. Obergeschoss
Grundriss 4. Obergeschoss
Dachgeschoss
Dachaufsicht
Querschnitt
Ansicht Strasse
Ansicht Hof
Innenhof-Ansicht mit Blockrand
照片 © Vera Hartmann
Innenhof-Ansicht mit Blockrand
照片 © Andrea Diglas
Wohnraum und Wohnküche
照片 © Vera Hartmann
wohnungsinterne Treppe Maisonette-Dachwohnung
照片 © Vera Hartmann
Treppenhaus
照片 © Vera Hartmann
Wohnküche
照片 © Andrea Diglas
建筑师:Beat Nievergelt
位置:Zwinglistrasse 18, 8004 Zürich-Aussersihl, 瑞士
年份:2020
Das 1983 erbaute Mehrfamilienhaus ist Teil eines grossen Blockrandes. Das bestehende Gebäude enthielt vier 3-Zimmerwohungen, in denen das Badezimmer und die Küche gegen den Hof orientiert waren. Durch die Aufstockung in Holzbau-Elementbauweise konnten zwei zusätzliche Wohngeschosse hinzugefügt werden. Die Erdgeschosswohnung wurde in einen Gewerberaum umgenutzt, welcher über den bestehenden strassenseitigen Hauseingang erschlossen wird. Der Zugang zu den Wohnungen erfolgt neu über den Hof, so dass die bisherige Verkehrsfläche vom strassenseitigen Hauseingang zum hofseitigen Treppenhaus als zusätzliche Gewerbefläche genutzt werden kann. Die beiden parallel zur Fassade liegenden tragenden Innenwände wurden zum Teil durch Stahlkonstruktionen ersetzt. Somit entstand im Erdgeschoss und den drei Geschosswohnungen ein durchgestreckter Raum, welcher in den Wohnungen durch eine doppelflügelige verglaste Schiebetür unterteilt werden kann. Sämtliche Geschosswohnungen verfügen über zwei Balkone, wobei diese hofseitig als Stahlkonstruktion mit filigraner Bodenplatte aus Mineralit und strassenseitig in Ort ausgeführt wurden. Um die Holzstrebe im 4. Obergeschoss windet sich sich die wohnungsinterne Metalltreppe. Mit Ausnahme dieser Strebe wurde der zweigeschossige Holzbau im Innern vollständig mit Gips verkleidet. Die geschliffenen Anhydrit-Böden, die handgefertigten Keramikplatten in den Nasszellen und die Küchenfronten aus Seekiefer-Mehrschichtplatten prägen die Materialisierung in den Wohnungen.
客服
消息
收藏
下载
最近



















