查看完整案例

收藏

下载

翻译
Ostfassade
照片 © Dietmar Strauß
Südfassade
照片 © Dietmar Strauß
Westfassade
照片 © Dietmar Strauß
Erdgeschoss Wohnen
照片 © Dietmar Strauß
Treppenhaus
照片 © Dietmar Strauß
Obergechoss Nord Treppenhaus
照片 © Dietmar Strauß
Bad
照片 © Dietmar Strauß
Dietmar Strauß
照片 © Dietmar Strauß
Lageplan
图纸 © Architektur 109
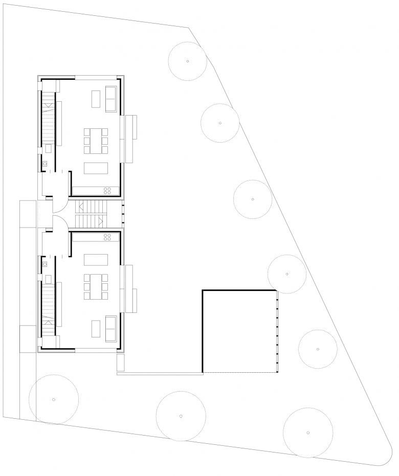
Grundriss Erdgeschoss
图纸 © Architektur 109
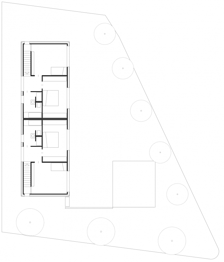
Grundriss Obergeschoss
图纸 © Architektur 109
建筑师:Architektur 109
位置:Steinheim/Murr, 德国
年份:2020
Zwei identische statt eine Wohneinheit
Qualitätvollen bezahlbaren Wohnraum schaffen für soziale Gemeinschaften: Patchworkfamilie, Generationenwohnen, Work@home, Startup-Wohnen, die sich gegenseitig unterstützend organisieren, ist die Grundidee. Konstruktive Konzepte entwickeln die kostengünstiges, ökologisches und ressourcenschonendes Bauen fördern und flexiblen Wohnraum mit hoher Aufenthaltsqualität schafft, ist eine weitere Motivation.
Qualität im ländlichen Raum
Das Zweifamilienhaus mit Carport steht eingebunden in das leicht abfallende Gelände, nach Osten ausgerichtet am Rand einer Wohnsiedlung im Übergang zur freien Landschaft. An der Ostgrenze ein kleiner Bach, begleitet mit Erlenbäumen und im Norden eine Obstbaumwiese unterstreichen die ländliche Idylle.
客服
消息
收藏
下载
最近













