查看完整案例

收藏

下载

翻译
建筑师:COMA Arquitectura
年份:2020
团队:Sainza Hervella, Alejandra Pouplana, Sergi Estrella
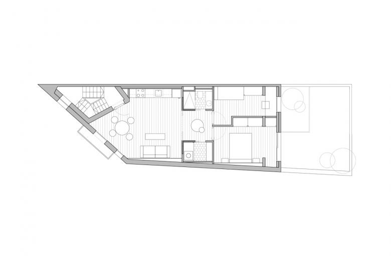
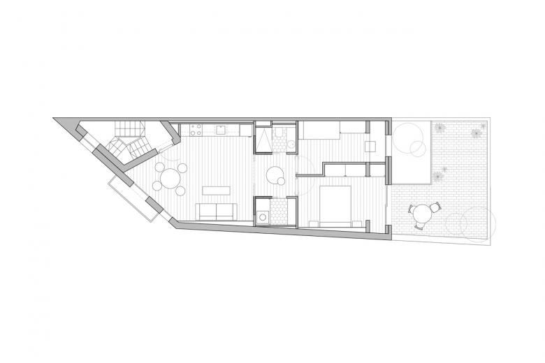
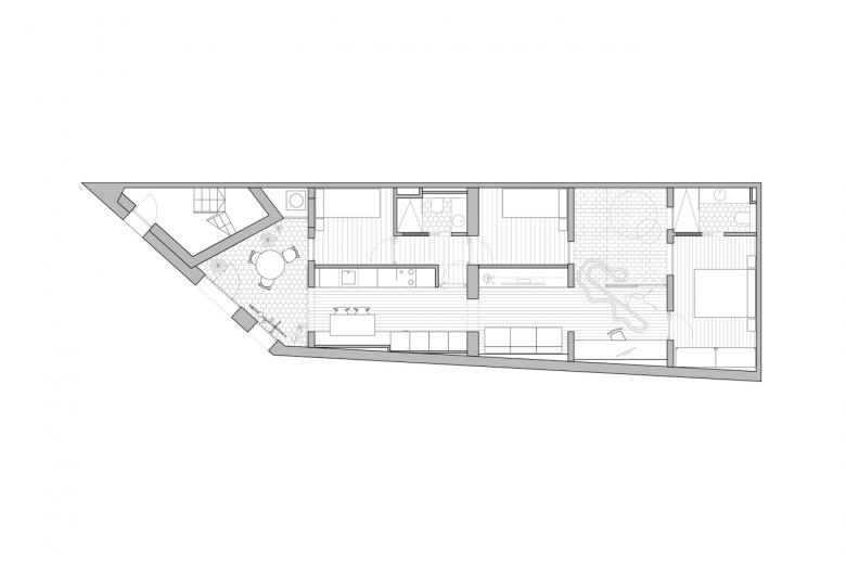
Refurbishment of three apartments with terraces, using minimum cost construction criteria. With integral renovation of the distribution to improve lighting and natural ventilation.
客服
消息
收藏
下载
最近















