查看完整案例

收藏

下载

翻译
照片 © Tom Bisig
照片 © Tom Bisig
图片 © Tom Bisig
照片 © Tom Bisig
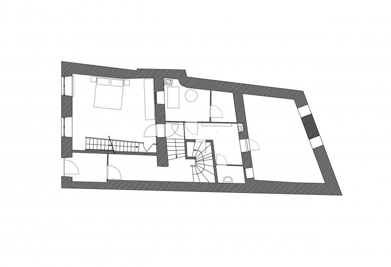
Sous Sol
图纸 © Gschwind Architekten AG
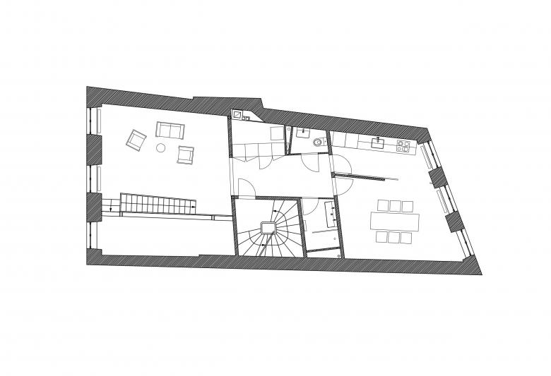
Hochparterre
图纸 © Gschwind Architekten AG
建筑师:Gschwind Architekten AG BSA SIA
位置:Basel, 瑞士
年份:2020
客户:privat
Umbau und Sanierung einer Maisonettewohnung im Hochparterre und Sou Sol in einem mittelalterlichen Wohnhaus zwischen Oberen Rheinweg und Rheingasse an der belebten Rheinpromenade im Kleinbasel.
客服
消息
收藏
下载
最近








