查看完整案例

收藏

下载
项目名称:法国公寓及学生宿舍
位置:法国
设计公司:Margot Duclot Architectes
建筑将广场上强大、神秘和独特的存在与Maréchal Joffre大道上慎重、稳固和持久的语言联系在一起。考虑到最好的居住生活是提供选择的而不是承受的,建筑师所面临的挑战是如何将这几代人和生活方式融合在一起,而不是将他们混为一谈或置于对立面。在广场上,金色的穿孔网格包裹住宽阔、私密和朝南的阳台。穿孔网格通过其微妙的透明度和蕾丝花边般的折射光线,体现了建筑的独特性。面对林荫大道,坚固的石材保护了公寓和学生宿舍免受车流喧嚣的影响。入口处有一个通向地下花园的休息区,使广场四通八达,并点缀了俯瞰Maréchal Joffre大道的立面,增强了阳光的散射和从街道向绿地观望的吸引力。
它标志着住宅区的入口。位于城市街区中心地带的地下花园的设计目的是为高层住户提供怡人的景观。家庭和学生公寓以及街道上的路人都能从中受益。无论是家庭还是学生,漂亮宽大的窗户、宽敞的室外空间、公共区域的自然采光以及欢快的起居室,都体现了居住的舒适性。所有家庭式公寓都有多个朝向,厨房可以封闭,自然采光良好。配备家具的无障碍露台可以让学生在屋顶上休息。该项目的整体建筑风格是对时代的致敬。它以简洁、不浮夸的风格反映了当时的时代特征,并通过现代设计,采用了与其所继承的城市相适应的构成元素。
法国公寓及学生宿舍外部实景图
法国公寓及学生宿舍外部实景图
法国公寓及学生宿舍外部实景图
法国公寓及学生宿舍外部实景图
法国公寓及学生宿舍外部实景图
法国公寓及学生宿舍外部实景图
法国公寓及学生宿舍外部实景图
法国公寓及学生宿舍外部实景图
法国公寓及学生宿舍外部实景图
法国公寓及学生宿舍外部实景图
法国公寓及学生宿舍外部实景图
法国公寓及学生宿舍外部实景图
法国公寓及学生宿舍外部实景图
法国公寓及学生宿舍内部实景图
法国公寓及学生宿舍内部实景图
法国公寓及学生宿舍内部实景图
法国公寓及学生宿舍内部实景图
法国公寓及学生宿舍内部实景图
法国公寓及学生宿舍内部实景图
法国公寓及学生宿舍内部实景图
法国公寓及学生宿舍内部实景图
法国公寓及学生宿舍内部实景图
法国公寓及学生宿舍内部实景图
法国公寓及学生宿舍内部实景图
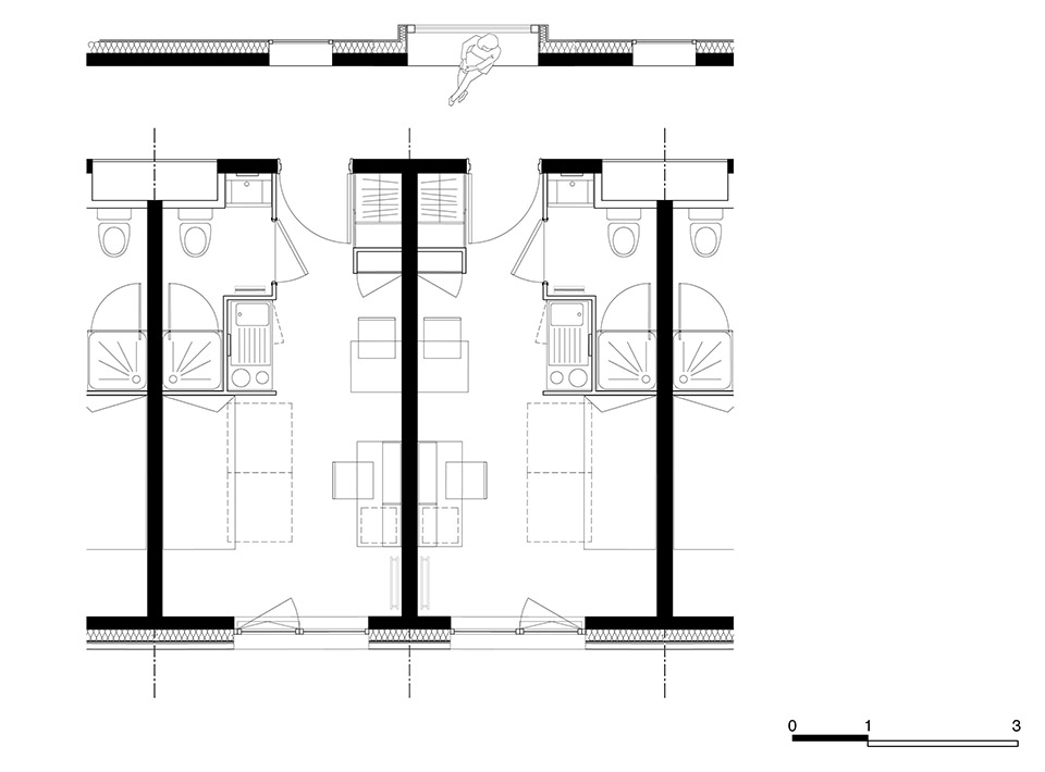
法国公寓及学生宿舍平面图
法国公寓及学生宿舍剖面图
法国公寓及学生宿舍立面图
客服
消息
收藏
下载
最近






























