查看完整案例

收藏

下载
项目名称:澳大利亚T3科林伍德办公楼
位置:澳大利亚
设计公司: 杰克逊·克莱门茨·布伦斯建筑事务所
客户带着一份雄心勃勃的简报来到我们这里——设计一座与其T3公司战略相一致的大型木材办公楼。T3公司战略的重点是交通、木材和技术,旨在满足人们对本地真实性、可持续性以及城市和社会连通性日益增长的需求。挑战在于如何将这份简报与科林伍德其特点是优雅的仓库、狭窄的街道、充满活力的艺术区和不断发展的进步人口。我们的设计借鉴了这种独特的背景,创造了一个由5层砖和混凝土裙房组成的建筑,其上有10-12层19层的轻质木结构。对建筑结构组成的直接反映以及对环境的反应。砖砌的裙房与街景融为一体,而上方的玻璃幕墙塔楼则体现了周围住宅/商业建筑的新兴类型。一个决定性的举措是将领奖台的北部立面与东部的一座遗产建筑对齐,创造了一个更宽的地面,具有大方的到达感和城市品质。塔楼形成在这个凹进处的悬臂之上,以限定一个入口通道。
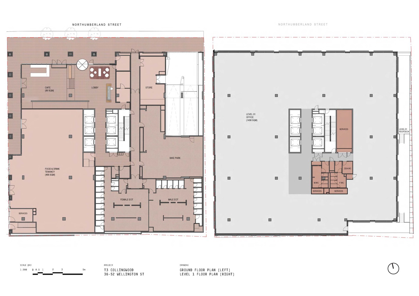
在讲台上使用红砖,在窗帘上使用赤土色,在上部立面上使用幕墙遮阳鳍片,创造了一种奇异而自信的色块反应。这种诚实、工业和坚固的材料调色板继续在内部使用,整个调色板由砖、镀锌金属、混凝土和木材组成。该计划旨在提供高效、实用、灵活的地板,并提供良好的采光和便利设施。舒适设施包括一楼的食品和饮料供应以及EOT设施,随着建筑形式逐渐后退到更高的水平,露台应运而生。温暖的木材美学创造了平静的内部空间,强烈的亲生物连接培养了居住者的幸福感,这种幸福感通常与高层办公楼无关。高效地板利用了大量的木材网格,为未来的租赁装修提供了最佳的灵活性。该设计的一个必要条件是产量最大化,这反过来又支持大规模木材系统的额外建设成本提升。
该摘要规定交付一座高度为维多利亚/澳大利亚境内从未交付过的大型木结构建筑。应对审批权限挑战需要广泛的顾问协调和整合,团队密切合作测试多种网格布局和广泛的消防工程建模和测试。对多个结构和混合系统进行了测试,以验证最终设计解决方案。这涉及到每一步的成本/价值结果的广泛建模,以确保设计具有成本效益。可持续性是一个核心焦点。该设计旨在提供一个高效节能、低碳且低运营成本的建筑。T3被授予6星绿色之星(设计),其大量木材建筑来自当地可再生森林,与同等混凝土结构相比,含碳量减少了34%。反映了开发商和设计团队的目标,该项目的完成标志着向新一代碳意识商业空间的转变。
澳大利亚T3科林伍德办公楼外部实景图
澳大利亚T3科林伍德办公楼外部实景图
澳大利亚T3科林伍德办公楼外部实景图
澳大利亚T3科林伍德办公楼外部实景图
澳大利亚T3科林伍德办公楼外部实景图
澳大利亚T3科林伍德办公楼内部实景图
澳大利亚T3科林伍德办公楼内部实景图
澳大利亚T3科林伍德办公楼内部实景图
澳大利亚T3科林伍德办公楼内部实景图
澳大利亚T3科林伍德办公楼平面图
澳大利亚T3科林伍德办公楼平面图
澳大利亚T3科林伍德办公楼平面图
澳大利亚T3科林伍德办公楼剖面图
澳大利亚T3科林伍德办公楼立面图
澳大利亚T3科林伍德办公楼立面图
客服
消息
收藏
下载
最近


















