查看完整案例

收藏

下载

翻译
In Kombination mit den Einzelgebäuden entsteht eine Gesamtstruktur von insgesamt 10 Einzelhäusern
照片 © Joshua Delissen
Das Ensemble empfängt Gäste von der Spreeseite mit einem Gastronomiebetrieb
照片 © Joshua Delissen
Das Innere des Quartiers wird in Zukunft durch Gewerbeeinheiten, eine Kindertagesstätte und Restaurants belebt
照片 © Joshua Delissen
照片 © Joshua Delissen
Verschiedene Grundrisse durchmischen das Quartier und ermöglichen den Einzug von Bewohnern mit unterschiedlichen Bedürfnissen
照片 © Joshua Delissen
Die klammerartige Erschließung dient auch als Evakuierungskonzept mit zwei diametral angeordneten Fluchtwegen
照片 © Joshua Delissen
Die Gehwege dienen nicht nur der Erschließung, sondern werden in Zukunft auch zu Kommunikationsräumen der Nachbarschaft
照片 © Joshua Delissen
Lageplan
图纸 © blrm Architekt*innen
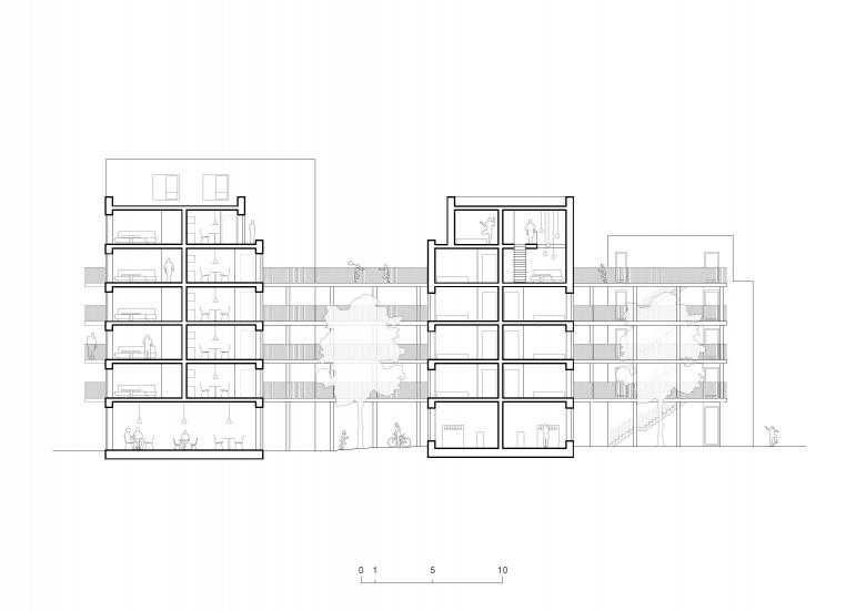
Schnitt
图纸 © blrm Architekt*innen
Regelgeschoss
图纸 © blrm Architekt*innen
照片 © Joshua Delissen
Schwarzplan
图纸 © blrm Architekt*innen
Erdgeschoss
图纸 © blrm Architekt*innen
Isometrische Darstellung
图纸 © blrm Architekt*innen
建筑师:blrm
位置:Arcostraße 11, 10587 Berlin, 德国
年份:2023
客户:Gewobag Wohnungsbau-Aktiengesellschaft Berlin
Gesamtprojektleitung:Assmann beraten+planen GmbH
Landschaftsarchitektur:Holzwarth Landschaftsarchitektur
Brandschutzplanung:hhp berlin
Das städtebauliche Ensemble an der Arcostraße nimmt Elemente aus dem Regelwerk des Berliner Blocks auf und überträgt diese in unsere heutige Zeit. Während sich die Vorderhäuser als Riegelbebauung fortsetzen, lösen sich im Grundstücksinnenbereich fünf Einzelbaukörper, die versetzt zueinanderstehen und die Hinterhäuser bilden. Im Vergleich zu den am Ende des 19. Jahrhunderts Stadtbildprägenden Berliner Bauten werden die Seitenflügel durch Stege ersetzt, die als Erschließung der Wohnungen dienen. Somit entsteht ein zusammenhängendes Ensemble mit einem hohen Maß an Durchlässigkeit.
Mix an der Spree
An der Spree gelegen sieht das Bauvorhaben eine Nutzungsdurchmischung vor. Die Porosität der Baukörper im Grundstücksinnenbereich sorgt für ein belebtes Miteinander im Erdgeschoss. Von der Spreeseite empfängt das Ensemble Gäste mit einem Gastronomiebetrieb. Die öffentliche Nutzung verteilt sich auf die einzelnen Höfe. Hier finden sich Kleinstgewerbeeinheiten und eine Kita. Die Obergeschosse sind für reines Wohnen vorgesehen. Das Wohnungsangebot reicht von Ein-Zimmer-Wohnungen bis zu Sechs-Zimmer-Wohnungen.
Erschließung als Kommunikationsraum
Die übergeordnete Erschließung aller Nutzungen geschieht von der Arcostraße. Im Grundstücksinnenbereich führen vier parallellaufende Stege und verbinden die Vorderhäuser mit den hinteren Häusern. Die beiden mittleren Eingänge sind durchgesteckt und dienen der Erschließung des Innenhofes.
In den Obergeschossen sind alle Hauseingänge an die Stege angebunden, welche die Einzelbaukörper flankieren und geschossweise erschließen. Außentreppen bilden im westlichen Grundstücksbereich den Endpunkt der Laubengangstege und dienen der Innenhoferschließung der Einzelbaukörper.
Das hierdurch entstehende spangenartige Erschließungskonzept stellt zugleich ein Rettungswegekonzept mit zwei diametral angeordneten Rettungswegen dar, wodurch die brandschutztechnischen Anforderungen an die Stege minimiert werden. Die Stege können somit offen und als nachbarschaftliche Begegnungsorte gestaltet werden, aufgewertet durch private Balkonbereiche.
客服
消息
收藏
下载
最近
















