查看完整案例

收藏

下载
随着钢筋混凝土森林日趋茂密,
城市间的气息愈发压抑,
现代建筑怎样使人们融入自然、解放束缚,
找回久违的“氧气”与呼吸感,
营造一个灵魂的栖居地,
是每一个建筑师的首任,
“海玥名邸”
模糊室内外边界,步移景异,
在建筑内享用阳光与微风,
满足了人们对美好生活的向往和追求。
01
示范区规划——南厅·北山|PLAN
——区位 | 天津·津南——
项目位于天津市津南区,基地周边有津晋高速、 宁静高速、津京高速、海滨高速等主干道,距离 军粮城北站约 8 公里,天津滨海国际机场约 16 公里,天津站约 30 公里。距离国展中心5公里以内。
©项目区位
售楼中心位于场地的西北沿街侧,作为项目的第一展示点,巧妙的利用街角场地与周边道路关系,在配合自然景观的虚实之间突出建筑主体。
©示范区选址
——理念 | 南厅北山·隔水相望——
提取中国古典园林中营园造景方式,把主体建筑按功能分解为两个体量,围水而建,将山水庭园融入生活空间,用现代的处理手法代替古典元素,营造诗意文化生活。出檐深远的白色纯净屋面,通透又充满变化的建筑立面,轻盈的步道连廊,在光影的变换下营造出淡雅,静谧的氛围。
©方案生成
建筑在不经意间融入在自然中,提取来自大自然的元素,对其进行提炼,组合,再应用在我们的设计语言里,在繁华间,寻找到身心的归属于栖息,志存高远,过滤喧嚣,去构建心灵的世外桃源。
©项目插画
——景别 | 主景·配景——
建筑作为主景,以自然山水、植物为陪衬,置于总图布局的重点突出主体,中国传统园林的特色是反对一览无余的景色,前期的景观动势将建筑主景屏障起来,通过曲折的配景,便有豁然开朗之感、别有洞天之界,提高建筑的感染力。
©实景展示
——空间 | 多重层次递进——
公共开敞,却又内敛聚合,轻盈舒展,却又变换丰富。通过景观前场从曲折空间过度到开阔空间,两者相互连接有丰富的层次变化。
©实景展示
©实景展示·水景庭院
——疏密 | 虚与实的视觉秩序——
立面穿孔铝板高低错落,庭中廊柱疏密有致的空间格局,不同层次的对比打造整体独特的文化艺术气质。
©实景展示
©实景展示
——渗透 | 流动贯通的空间——
建筑廊柱与景观绿植通过彼此的相互遮挡突出纵深感,透过若干层次实现连通渗透。
©实景展示
©实景展示
——曲径 | 蜿蜒婉转的含蓄——
单面空廊,空间交错穿插。曲折迂回,不可穷尽之感。
©实景展示
©实景展示
——立面设计 | 艺术·工艺——
立面设计上,设计团队注重室内室外环境的自然连接与融合,落地玻璃、半透明布帘等的应用,敞开式空间设计,最大程度将园区景观与自然光线引入室内,呈现明媚温暖的空间感受。
“折扇”
半透明的穿孔铝板又作为遮阳的第二层皮肤起到了节能环保的作用,与景观结合在一起形成朦胧而富于诗意的空间。
“竹林”
用竹林语汇,从到景观游廊整体贯通使 其“渗透”,“流淌”。让建筑整体呈现轻柔的状态,
表达出蜿蜒婉约氛围,在精神层面深入到东方文化空间体验。
——细部节点 | 精湛·精雕细琢——
屋面深远挑檐在形成丰富肌理的同时,给人带来注重品质及设计的感官体验。穿孔板滤过光线,既实现了遮阳的功能,又营造出了一览“门前镜湖面水”的视觉效果。
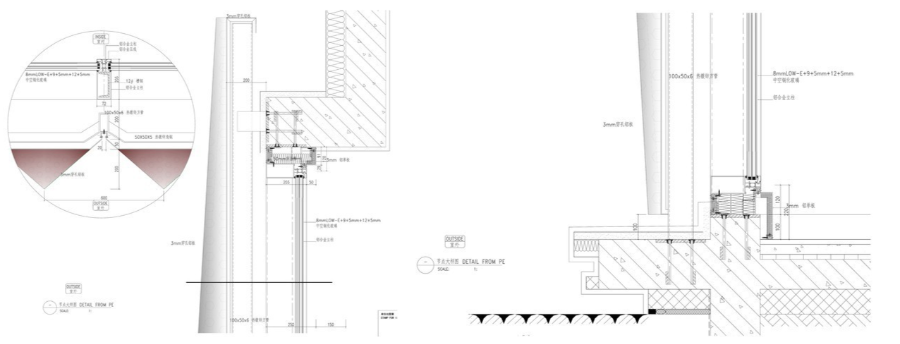
©节点大样
©实景展示
©穿孔铝板曲线形态推敲
©实景展示
©屋面挑檐大样
©实景展示
立面设计不仅融合了现代艺术,更是精湛建筑工艺的精雕细琢。
02
住宅规划——品质·礼仪
住宅区采用“纵横双轴”的规划结构统筹整个社区,同时设置“七大分区”全龄化景观主题空间,两环、两轴、七区、多点的规划布局,以突出“结合海教园学府气质,打造礼仪高品质住区”的主旨。
©规划结构
©鸟瞰图
项目档案
项目名称 海玥名邸
项目地点 天津·津南
业主单位 上海建工集团股份有限公司
建筑设计 天津天华北方建筑设计有限公司·建筑三所
总建筑师 徐强
主创建筑师 吴佐江 汤瑞雯
设计团队 徐晓东 梁力洪 李广 李伟
景观设计 上海市园林设计研究总院有限公司
占地面积 16728.25㎡
建筑面积 地上152075㎡
设计时间 2019年7月
竣工时间 2020年4月(示范区)
客服
消息
收藏
下载
最近


























