查看完整案例

收藏

下载
△ 宁海中昂新天地生活艺术馆实景
灵感 · 缘起
宁海茶院溪,是茶院乡六个村子的主动脉,力洋溪则源自力洋水库,流过虎头山,两条溪流一路南下汇聚于毛屿港。远方群山伫立,近处溪流缓缓流淌,偶有飞鸟经过,带出一片涟漪,可谓是水清岸绿入画来。
同时,新建的宁东新城金海大桥已通车,贯穿东西两岸,连接力洋片、茶院片以及宁东新城核心区,贯通的大桥宛如洲头展翅之翼,呈平和向前之势。
△ 项目用地鸟瞰效果
三江环抱的项目基地,承载着过去的小桥流水人家,迎接着未来的大桥如诗如画。
造型 · 构思
宁海中昂新天地生活艺术馆的设计,源自这份诗意的环境风貌,汲取两侧金海大桥的视觉呼应,将建筑设定为两个大形体,两个形体呈一定角度变化,仿若飞鸟展开的洁白之翼,与基地形态相契合。
△ 概念构想草图
△ 侧面实景
△ 正面鸟瞰
△ 俯视鸟瞰
两个形体自身做平缓斜坡,斜坡相互对应,富有张力与力量感,但又缓和包容,不显尖锐,宛如舒展的白色双翼,轻柔的覆在金色洲头。建筑二层与一层的几何结合方式,则遵循补形之原则,以巧妙角度使整体轻盈向上的同时不失稳重平衡。
△ 实景
前场的大面积水池,宁静无波,让整个空间显得旷阔了不少,双翼在水面映衬下,景象如同两溪沿岸,水鸟掠过水面,生生不息。
△ 实景
整个形体灵活契合场地,印象传承自飞鸟,建筑语言完整干净,一气呵成。
设计 · 细节
设计过程中保持与深化单位的紧密配合,对于选材与构造细节做了详细说明,力求作品高完成度落地。
△ 建筑材料分析
细节上,采用白色与香槟色两种不同的穿孔板,白色穿孔板为渐变图案,星星点点,以打破大面铝板的呆板,降低建筑体量的厚重感,使之轻盈如羽毛。
△ 轻盈明净,柔和空灵
香槟色穿孔板固定肌理,以提升近人尺度的体验,更显精致,同时给整个建筑带了一丝暖色与温馨。撞色的处理也让建筑趣味盎然,不同的镂空铝板使光影丰富,营造舒适有趣的空间体验。
△ 金色如土,洁白如翼
室内装饰也充分与外立面相结合,大量运用简约的几何图案做拼接。
△ 大厅实景
入夜,池水变得安静,灯火起,温暖平和,白翼似归巢的鸟,灯光在大地上勾勒出线性几何图案,以欢迎的姿态,等待着每一位归客。
△ 南侧次入口剖面
△ 北侧主入口剖面
△ 西侧次入口剖面
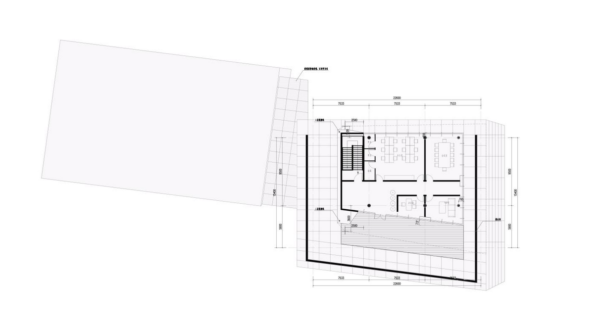
△ 总平图
△ 南立面1
△ 南立面2
△ 北立面
△ 西立面穿孔图案
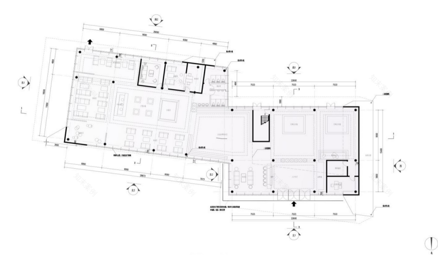
△ 首层平面图
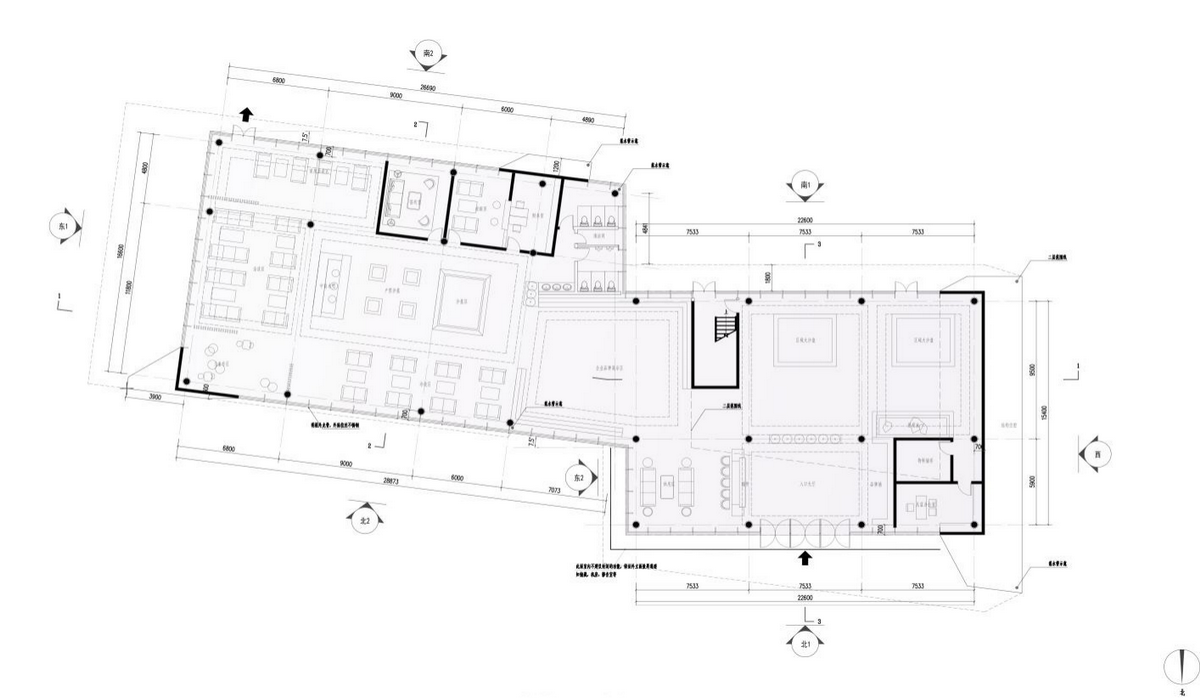
△ 二层平面图
项目信息
项目名称:宁海中昂新天地生活艺术馆
项目类型:建筑设计
项目地点:宁波 宁海 宁东新城
建筑设计单位:上海新空间工程设计管理有限公司
项目详细地址:宁海 宁东新城
设计时间:2019.9-2019.10
建设时间:2019.10-2020.4
用地面积:10300㎡
建筑面积:1408.46㎡
项目参与者
主创建筑师:孙琦
设计团队:陈希舟 邵代业 陈杰
摄影师:柯中州
客服
消息
收藏
下载
最近




























