查看完整案例

收藏

下载
万科京城上方
Vanke Beijing Upward
中国,张家口
Zhangjiakou, China
引言
展示中心以东方小镇为起点,利用现代设计语言,结合抽象东方的设计元素,以群落的组织方式,体现出建筑与园林相互依存的建筑情愫。
沿着一条纵深的轴线,采用小园小景的方式,不对称地布置一连串形状和大小不同的院落和建筑物。
空间收放有度、步移景异,经由院落与建筑物的空间艺术感染后,最终达到“余意不尽”的精神境界。
◎体块分析图
项目背景
“对浓绿阴中庭院,燕语莺啼”
基地位于张家口下花园区西北,面朝燕洞山景观,山明水秀,自然环境优越。
◎空间解析图
展示中心依据地形,南低北高,因循就势,打造叠水景观,拾级而上,合理连接两侧人流,以小尺度、精细化的建筑景观融合设计,呼应东侧顺势而上的滨水住宅,呈现亲近自然的浪漫度假氛围。
创作初衷
“智者乐水,仁者乐山”
“ 群山倒映山浮水,无山无水不入神。”
山水作为中国美学艺术的一部分,早已浸润于中国人的品格之中。山水已然超脱了它本身的物质形态,而与个人的审美情趣和道德修养融为一体。
远山、近水、叠影、繁花、绿树构建出一派建筑与山水的天然共融。
对话环境
“逸其人、因其地、全其天”
因循就势的前院与遥相呼应的燕洞山景观在视觉上共同形成建筑的前场空间。仰观山色,俯听水声,外在安适,内心和乐,居者在此便卸下白天的疲惫,一宿之后身心安宁,心情恬阔。
近景脚下有庭院一处,楼阁掩映,一条小道拾级而上,蜿蜒之中,大堂之后又另有院落,阶柳庭花,好一个清净之处。
建筑空间
“驻远势以环形,聚巧形以展势”
建筑形体向南打开,成环抱之势。整体形态上追求横向舒展一体化,形成连续而富有韵律感的整体界面。
建筑风格上追求现代、简洁、精致、优雅,同与景观的融合共生,再度诠释其东方自然山水的哲学韵味。
◎分解轴侧图
坡屋顶的形式将东方建筑语言抽象凝练,塑造其干练大气的形象。
形体的交接咬合别具特色,以小衬大、以低衬高的对比突出其二层建筑主体的雄伟气势。
室外自然空间和室内活动空间之间横亘着院落空间、檐下空间等多层次中性空间,同时在玻璃与金属板之间营造虚实相间的空间序列。
檐下空间是人和自然对话的场所,在半围合的空间中感受晨光、轻风、细雨、虫鸣、鸟叫,怡然自得。
结构与流线
“精雕细刻”
建筑师重新思考了建筑内外关系与秩序,通过屋面板与玻璃幕墙、室内吊顶与室外屋檐的交接细部设计,突显建筑屋面的延展和一体化,以精细化的细节造就由外及内、由内及外的空间渗透体验。
立面材料上采用阳极氧化铝板,塑造了简洁、优雅的形象,灰空间檐下近人尺度出的木质格栅给予人温暖、亲切感受的同时强化了东方建筑的意蕴,生出历史与现代交相辉映的情感。
◎材料分析手绘
立面分缝在尺度上进行了严密的推敲和设计,精细巧妙的分隔,使建筑立面更有序、精致。
结语
在本案中,“天有时,地有气,材有美,工有巧”的造物法在现代工艺中的传承和运用中表达的淋漓尽致。
设计师希望在建筑、景观的相互渗透中表达人与自然的特殊情感,挖掘生长于空间中的文化内涵。
技术图纸
◎总平面图
◎一层平面图
◎二层平面图
◎负一层平面图
◎西立面图
◎局部南立面图
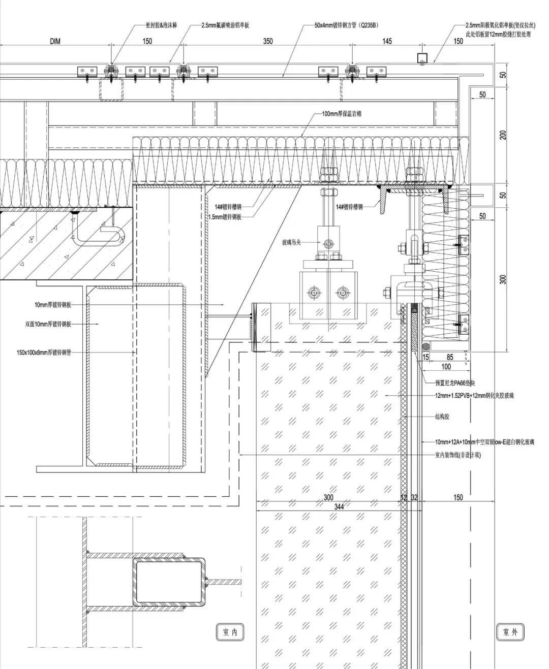
◎节点图
工程档案
项目名称丨万科京城上方
项目位置丨河北省张家口市下花园区
业主单位丨冀北万科房地产开发有限公司
建筑设计丨上海日清建筑设计有限公司
设计总负责丨宋照方
设计团队丨张强 张兆翔 王小飞 李秋霞 张晓静 加拉斯·依玛西 蒋阳东 刘姝婷 邓万 李婷 李玲玲
施工图设计丨唐山昊宇建筑设计有限公司
景观设计丨凯盛上景(北京)景观规划设计有限公司
室内设计丨上海意嘉丰建筑装饰有限公司
照明设计丨北京光石普罗照明设计有限公司
幕墙设计丨北京盛世维工程技术有限公司
建筑面积丨3676 m²
景观面积丨6000m²
建筑摄影丨战长恒
客服
消息
收藏
下载
最近




























