查看完整案例

收藏

下载

翻译
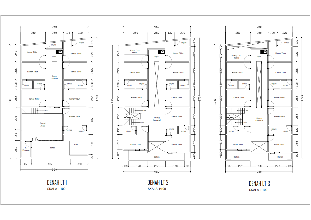
Rumah Kos ini terletak di Jl Bunga Srigading Kota Malang. Lokasi yang sangat strategis bagi mahasiswa mencari tempat tinggal karena dekat dengan berbagai macam kampus. Maka dari itu, lahan dengan lebar 9x16 ini dimanfaatkan sebaik mungkin untuk dapat memuat jumlah penghuni kos yang banyak tentunya tidak mengorbankan faktor kenyamanan. Bangunan ini terdiri dari 3 lantai plus rooftop pada bagian teratas yang bisa digunakan untuk ruang komunal dan ruang jemur atau juga bisa digunakan untuk tempat merenung, menikmati view kota malang dari ketinggian. Terdapat total 23 kamar tidur yang keseluruhan terdapat kamar mandi dalam.
Konsep bangunan mengusung gaya modern tropis yang dapat dilihat dari bagian fasadnya berupa pengaplikasian bukaan yang lebar, bentukan yang sederhana namun elegan, penggunaan atap miring, serta pengaplikasian warna yang hangat dihiasi dengan tanaman hias di bagian depan bangunan.
Dengan menyasar kelas eksklusif maka fasilitas penunjangnya pun sangat mumpuni, terlihat dari denah bangunan tersebut yang setiap lantainya terdapat dapur bersama, selain itu juga terdapat ruang cuci jemur di tiap lantainya. Penghawaan dan sirkulasi udara pun sangat maksimal dengan pengaplikasian void yang membuat tiap lantai pada bangunan ini terhubung. Demi menunjang interaksi antar penghuni kos, disediakan pula ruang komunal atau ruang belajar bersama. Penghuni kos juga mendapatkan fasilitas pribadi berupa AC, TV dan water heater pada tiap unit kamarnya. Faktor keamanan tidak perlu diragukan. Pada bagian depan terdapat pos security serta pemantauan CCTV 24 jam. Didukung pula dengan smart lock system pada setiap kamarnya.
Uniknya, klien sangat jeli dalam melihat peluang. Melihat potensi lokasi sebagai area mahasiswa, rumah kos ini juga membuka cafe yang bisa diakses untuk umum. Hal ini juga berdampak positif terhadap penghuni kos karena dapat memesan berbagai macam makanan dan minuman dalam satu tempat. Digunakan sebagai tempat ketemuan, mengerjakan tugas kelompok, berdiskusi, atau hanya sekedar main bareng game online juga sangat bisa donggg.
客服
消息
收藏
下载
最近









