查看完整案例

收藏

下载
鼓楼幼儿园是中国幼儿教育研究的发源地,新建的江北分园位于南京市江北新区核心区,总建筑面积约一万平方米,办学规模为5轨15班。目标是建设一所高标准示范性的幼儿园,带动江北新区优质幼教的培育和发展。
新颖活泼的建筑造型唤起小朋友的认同感
建筑造型设计的灵感来源于儿童画,感受小朋友对“房子”的第一印象,将之投射到建筑形态之中。不规则的连续坡屋顶形成有节奏的韵律;大小错落的窗洞营造随意轻松的效果;丰富的色彩唤起小朋友的认同感。外墙材料选用了适合幼儿建筑的环保且耐候性极佳的纤维树脂板。
多层次的室内活动空间激发小朋友的探索精神
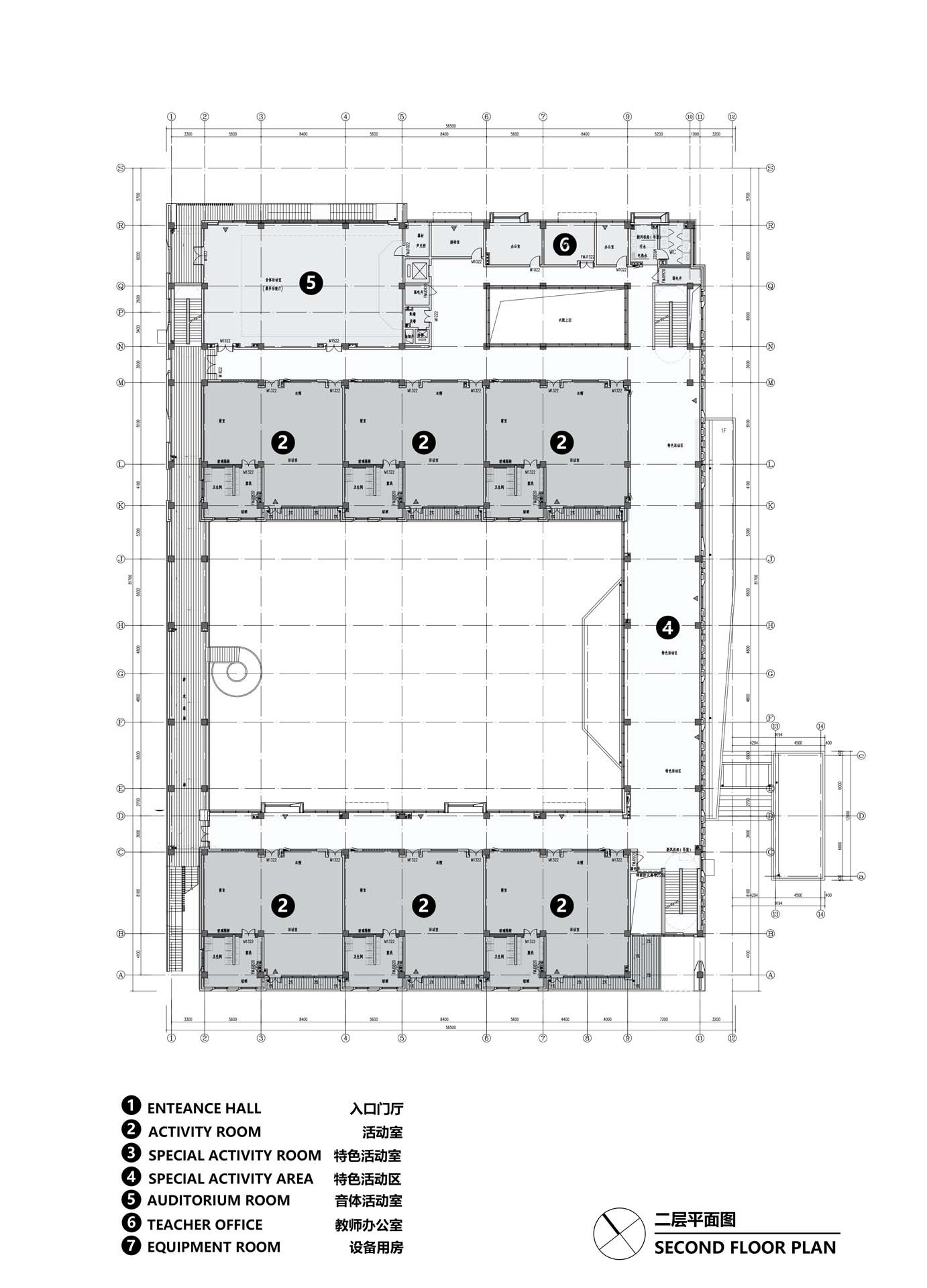
幼儿的大部分时间都在班级活动,所以班级活动单元朝向东南,保证充足的阳光。室内宽敞明亮,采用单廊形式,良好的自然通风采光不仅降低建筑能耗,更重要的是避免疾病滋生传播。
作为知名幼儿教育研究机构,园方为幼儿设立了多种特色活动课程。一楼的特色活动室为一个500平米的大空间,可根据课程设计灵活布置各种主题场景。二楼的音体活动室空间开阔,景观极佳,窗外就是绵延的山景。
建筑沿河一侧的室内廊道作为交通和游戏空间联系了各层班级,立面上丰富有趣的开窗也作为观赏河景的“画框”,给小朋友不同的角度来观察世界。另一侧室外连廊结合滑梯涂鸦墙等户外游戏设施,形成一个立体的游戏区域。
立体化、趣味性的户外空间,让每个角落都成为儿童游戏的场所
不同尺度和体量、不同空间性质的多层次的户外活动空间鼓励小朋友在其中漫步、玩耍、游戏,充当着交流的桥梁。
主要室外活动场地设置在南向,充足的阳光和大量绿化有利于幼儿的身心成长。利用两侧连廊围合出内部庭院,场地和院落有围合有开放,尺度大小有别,根据空间环境的不同还相应设置了表演场地、沙池、树屋、草坡、小菜园等各类户外活动装置,创造出多层次、立体化、趣味性的户外空间,努力做到让每个空间都成为儿童游戏的场所。
项目图纸
△轴测图
△轴测图
△总平面图
△一层平面图
△二层平面图
△三层平面图
△屋顶平面图
△立面图
△立面图
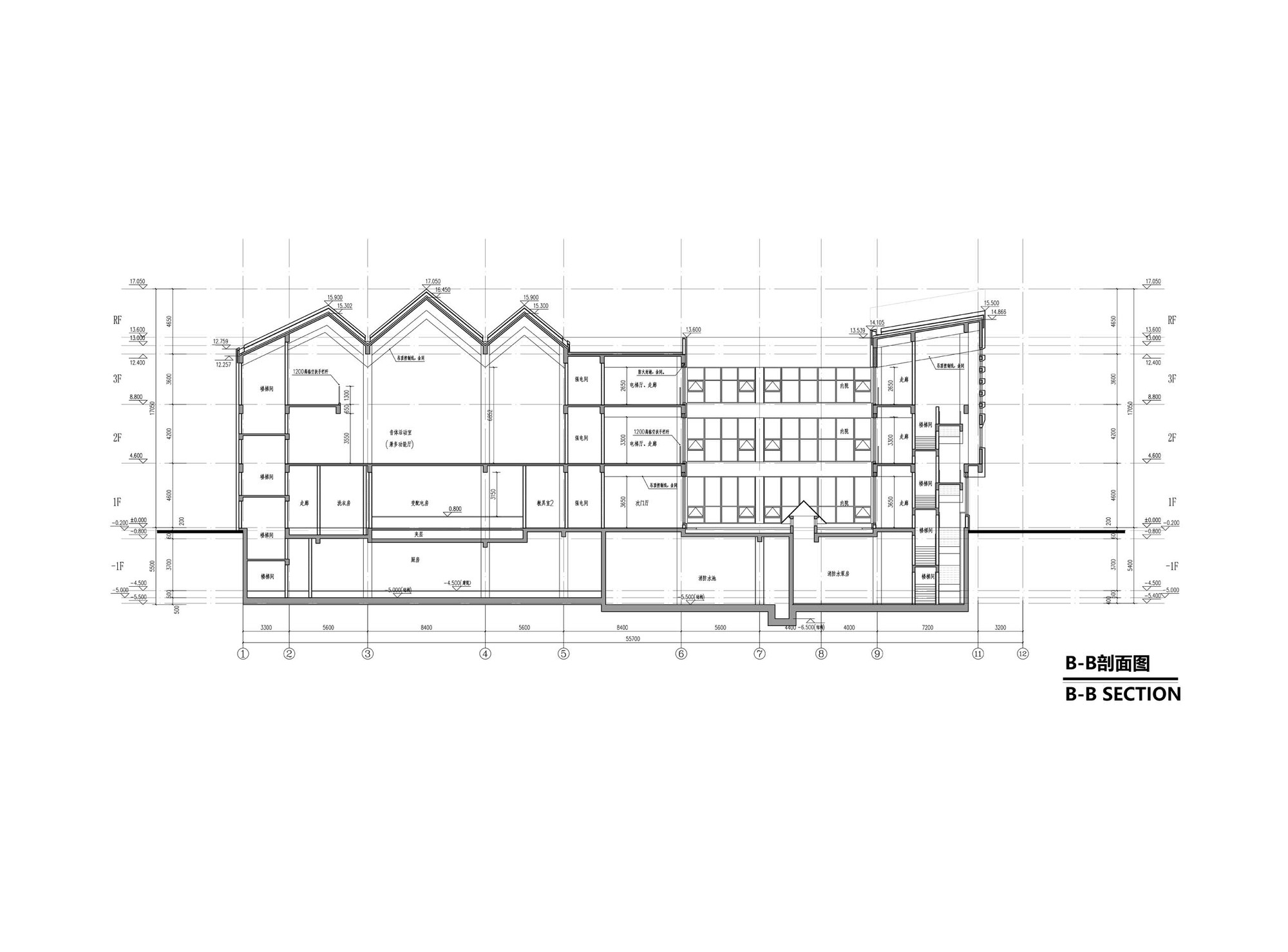
△剖面图
△剖面图
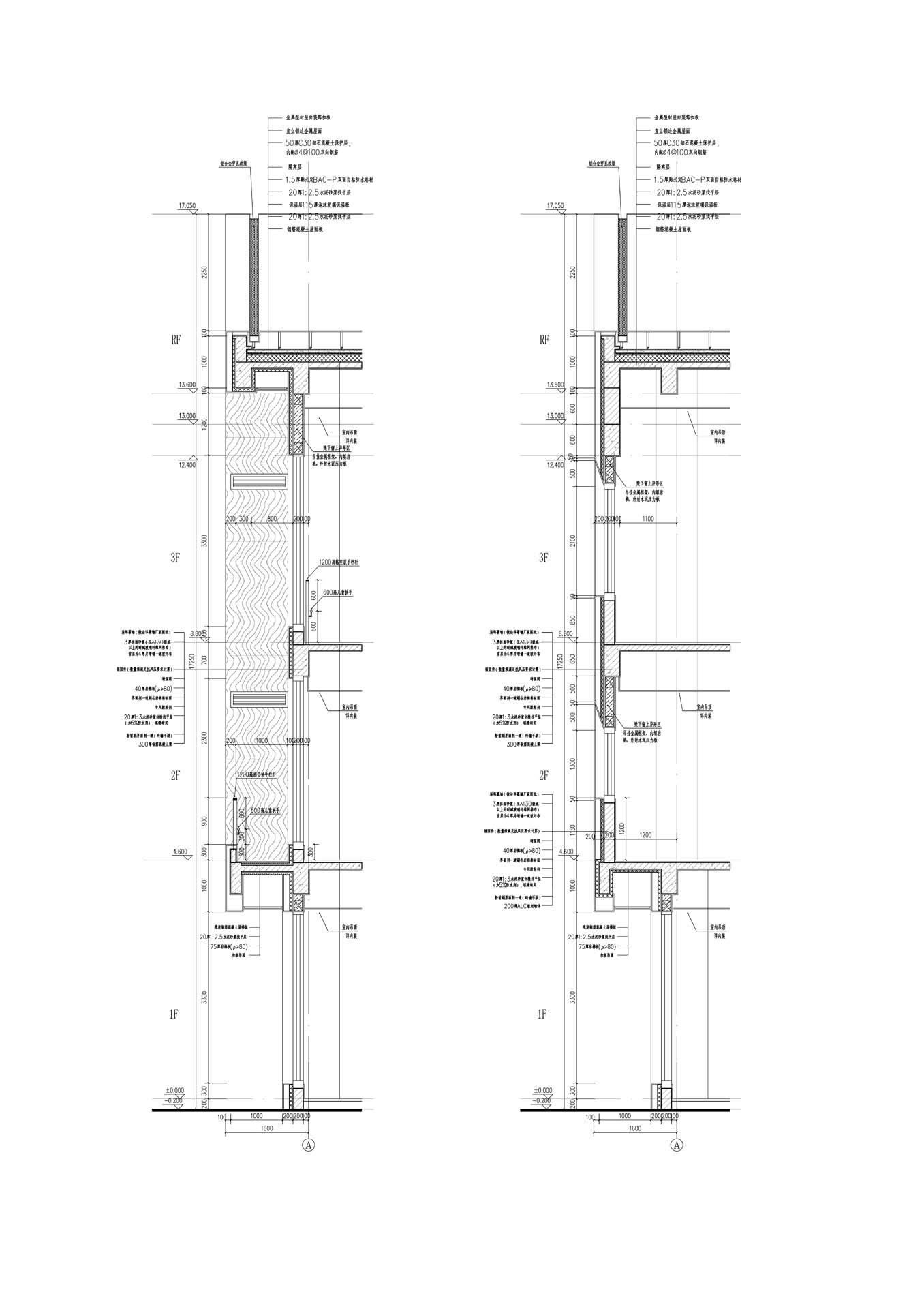
△细部大样图
项目信息
建筑设计: 东南大学建筑设计研究院
面积: 10744 m²
项目年份:2019
摄影师:侯博文, Jing Qian
主创建筑师:钱晶,王宇,孙霄奕
设计团队:钱晶,王宇,孙霄奕,刘洁莹,周泉,张咏秋,袁俊,罗汉新,王金飞,柏晨,钱长远,张程
结构设计:王志明,曹荣,蒋朝文
景观设计:唐小简,孙嬿
委托方:南京国际健康城投资发展有限公司, 南京市鼓楼幼儿园
施工方:中建八局三公司
地点:中国,南京
客服
消息
收藏
下载
最近






































