查看完整案例

收藏

下载
佛山卓越万科朗润园
佛山.顺德/ 2020.05
一幢幼儿园建筑可以五彩斑斓,无处不惊奇;但它也可以很自然,与光影互诉、与清泉共舞,这些原生状态激发对童真的认知,还原了造梦者内心的一种状态。童话村庄、乐从中来,于是便有了琴湖湿地北岸的朗润园。
提起佛山,从见证时代巨变的演绎者到风云际会的弄潮儿,这座城无疑是一个古老与现代奇妙交融的地方。时至今日,作为城市人居环境整治与更新改造的着力点,顺德北围工业区依托乐商小镇的建设契机,融合了多元产业、公共服务与智慧人居。
△那些独有的佛山记忆
△项目所在地理区位
顺德区的农田水网与城市肌理
卓越万科朗润园便深耕于此地,区域周边植被水网交织、自然景观阡陌纵横,这里拟规划引入顶级教育资源,北侧为在建精品住宅区。
△项目基地现状环境
但由于受到住宅区用地边界的限制、以及交叉口地带的多层退界线控制,幼儿园的场所营造举步维艰。如何在诸多限定条件下创造出集人性化、自然且富有童趣的教育空间,成为建筑师最初直面的最基本、也是最根本性的问题。
△前期幼儿园设计方案手稿
探讨建筑与城市、自然之间的共生关系
我们希望这里可以新城老城的交汇处寻觅属于这座城独有的人情味,让在此处奋斗的人们度过惬意的亲子时光。
设计从多重限定的困境中提炼发挥空间,将教育理念与社区配套定位相结合。基于对城市环境友好的立意,我们提出“童话村庄”的设计概念,作为此次幼儿园空间设计的依据。
△概念示意图
共生绽放
△平面布局与周边城市肌理的关系
这个“小村庄”在功能布局上颇为讲究,活动场所与建筑空间的拓扑关系巧妙消解用地条件局促的困境。这种形式有效促进各个单元之间的“若即若离”,从沿街视角最大化丰富城市界面,形成渐进起伏的韵律感。
渗透呼吸
△场地关系示意图
建筑介于城市与自然之间
考虑到南侧城市公园与水系的景观资源优势,设计从立面上呼应城市与自然之间的特质,在纯粹的白色涂料基础上搭配竹木材质,取法自然、赋予原生之境,加强亲人感与渗透性。
从视觉吸引方面,建筑空间激发小朋友对于自然山水的向往之心,于都市之中依然可以追寻自然野趣。
“错”而有趣
△体块关系示意图
错落变化的功能+协调统一的组织
根据实际需要的班级数量与空间容量将整体划分近似比例的单元,通过主体块与小体量之间的穿插与错位,从户外空间过渡到建筑,形成有趣多变的景观平台与灰空间。
考虑到儿童活动的实用性与日照的渗透性,我们将每一户空间的内天井错落有致的分布在坡屋顶上,营造丰富多彩的光影体验。
从建筑延伸到室内,独立又连续的单元模块都可以成为一个个“家”,鼓励小朋友在活泼温馨的空间中自由探索,在园中建立起归属感。
建筑材质的选择生发于幼儿园设计本身的初心,我们希望建筑呈现亲人的自然肌理,由此甄选具有自然原生属性的大庄竹木,从使用者可观可感的感受出发,与周边环境有机融合。
白涂料寓意纯粹、本源,能够最大限度的将暖色系在视觉上形成包裹感,同时搭配跳跃节奏的单元组合,野趣韵味油然而生。
△现场施工过程记录
将材质落实到建筑实体的过程需要应用与实践。在不影响整体氛围感的前提下,正立面的铝板与幕墙的斜角连接处采用仿铜型材收边,节点之处富于现代工艺的质感。
△灵活功能空间改造前后的节点对比
△节点大样剖透视
材质交接之处可见细致的处理方式
越是表面看似简单的建筑,其内在结构的设计心思便越是巧妙。坡屋顶作为幼儿园建筑的标志性亮点,其屋面排水通过天沟集水后顺流直下,保持立面的整洁通透,不干扰游园者的体验。
△坡屋顶排水系统与材质构造的详细解读
这座幼儿园是充满想象力的,小木屋串联起的是建筑与自然的空间故事,还有儿童与伙伴之间的纯真无暇的记忆。这里包罗万象,蕴藏自由的光影、多样的趣味元素,更有浸入式的场景体验。
卓越万科朗润园将新一代成长型社区作为立足点,正在发散无限的可能性与包容性,描摹这方城市天地的未来蓝图。
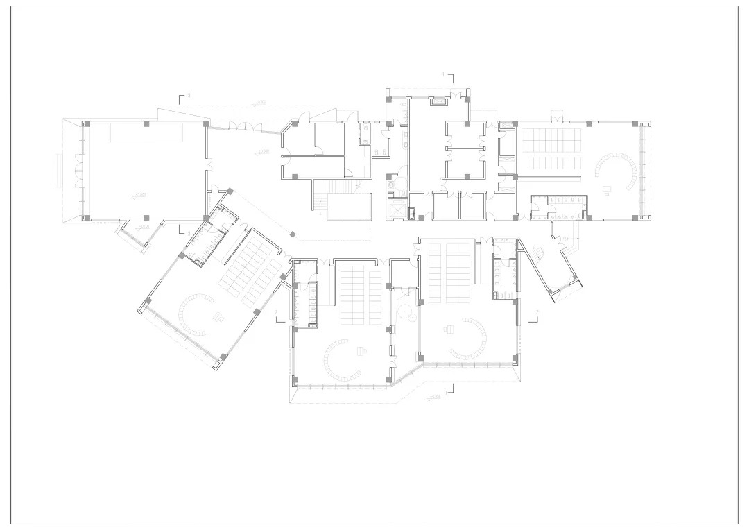
△一层平面图
△屋顶平面图
△立面图
△剖面图
佛山卓越万科朗润园
项目业主:卓越、万科
项目地点:佛山市顺德区
用地面积:5,400㎡
建筑面积:3,200㎡
建筑设计:致逸设计
设计团队:朱煜、梁胜、裴月璇、唐富生
甲方设计团队:卓越深圳公司设计部
施工图设计:广东粤建设计研究院有限公司
景观设计:SED新西林景观国际
室内设计:广州燕语堂装饰设计有限公司
幕墙设计:沈阳正祥装饰设计有限公司
泛光设计:深圳陆禾环境艺术设计有限公司
建筑摄影:行知影像、ACF域图视觉
客服
消息
收藏
下载
最近
















































