查看完整案例

收藏

下载
©仲几发
打造传统空间形制与现代教育需求交融的创新场所,一个师生学习、活动、交流的理想场所。
现代校园设计不是一个个孤立的建筑体,我们的设计不强调庄严对称的建筑体量,更多的是设计空间和营造环境,以人为本,以学生为中心,希望通过建筑的围合,创造出丰富的校园空间环境。校园融入自然,以苏州传统园林造园的手法,巧妙处理建筑的形态,通过局部体块的弯折变化,创造出不规则的、多维立体的空间,形成移步易景的校园景观,使自然在校园中延续与渗透,打造传统空间形制与现代教育需求交融的创新场所,一个师生学习、活动、交流的理想场所。
▲校园鸟瞰© 仲几发
▲校园主入口© 仲几发
▲校园西入口© 仲几发
总体规划
延续统一、突破创新
项目选址位于苏州工业园区兴浦路西、金胜路南、沽浦路东、振胜路北,项目用地约 6.25 公顷,拟规划建设一所 90 班学校。基地周边水系丰富,西侧沽浦河对面是金浦公园景观优美,与原星浦学校隔河相望。
▲项目与周边城市环境概览©仲几发
项目整体布局选取分而不隔的院落作为空间设计的原型——传统的院落空间再面对城市具有的内向型和面对自身具有的互动性方面与这个项目希望达成的愿景是相似的,形成由教学建筑以及其他教学用房围合形成的庭院式院落校园空间。我们将一些功能空间进行了整合,形成了沿着城市道路的综合体建筑,形成了丰富的各种形态的院落,共同构成了这所“轻盈灵动”的开放式校园。
▲概念分析© 苏州华造建筑设计有限公司
▲空间分析© 苏州华造建筑设计有限公司
空间设计延续呼应了老校区的空间,使整个区块的规划空间完整统一,力求主体空间与老校区整体规划既呼应协调,又各具特色。建筑沿街面有效的退让了城市绿带,又保持了大气的城市界面,兼具标志性。
▲交通空间© 苏州华造建筑设计有限公司
教学办公区与生活、运动区之间通过一系列宽敞连廊联系,教学区居于校园中心,各功能区域分区明确又紧密结合,保证学生最短的生活学习动线,提高了校园空间的利用,丰富了景观的层次,也使学习步行流线与生活文体流线有机结合,共同构成人性化、安全、通畅的校园交通体系。
▲西立面整体效果© 仲几发
▲运动场视角© 仲几发
建筑设计
立面简约、空间演变
建筑的立面特色体现在将轻颖、灵动、朴素、优雅的风韵融汇建筑,建筑细部简洁并运用现代构成手法,推陈出新,形成富有现代感,特色鲜明的建筑造型,充分体现建筑简明有力的形象特点。
▲综合楼内庭院入口© 仲几发
▲ 综合楼内庭院© 仲几发
▲ 综合楼内庭院近景© 仲几发
▲综合楼内庭院二层视角© 仲几发
▲校园庭院© 仲几发
▲丰富的连廊与景观© 仲几发
▲ 综合楼开敞平台© 仲几发
我们把地域空间特色与建筑相结合,着重强调空间景观的渗透与空间形态的演变。空间设计延续了建筑的设计思路,在保证满足常规教学空间需求的同时,增加了空间的流动性和多样性。
▲艺体楼局部© 仲几发
▲艺体楼夜景局部© 仲几发
室内设计
简洁干练、有机联系
该项目的室内设计理念本着符合科学、自然、活泼、文化、沟通这五大要素。在空间布局和色彩构成上需要和建筑设计紧密结合,做到建筑风格的有机联系。而在该项目的室内设计中,我们的设计理念中的一个重要部分就是从建筑的形态和色彩入手提炼出一些独特的设计元素,并融会自然的运用于室内空间之中,做到从建筑外部空间到室内空间的完美过渡。
▲入口大厅室内© 仲几发
▲大厅© 仲几发
以干净、简洁的处理手法来表达空间,在色彩表现上整体色彩以延续建筑简洁、明快色彩关系来充足视觉感官。
▲图书馆门厅室内© 仲几发
▲体育馆室内© 仲几发
▲黄昏中的校园© 仲几发
项目图纸
▲彩色总平面图© 苏州华造建筑设计有限公司
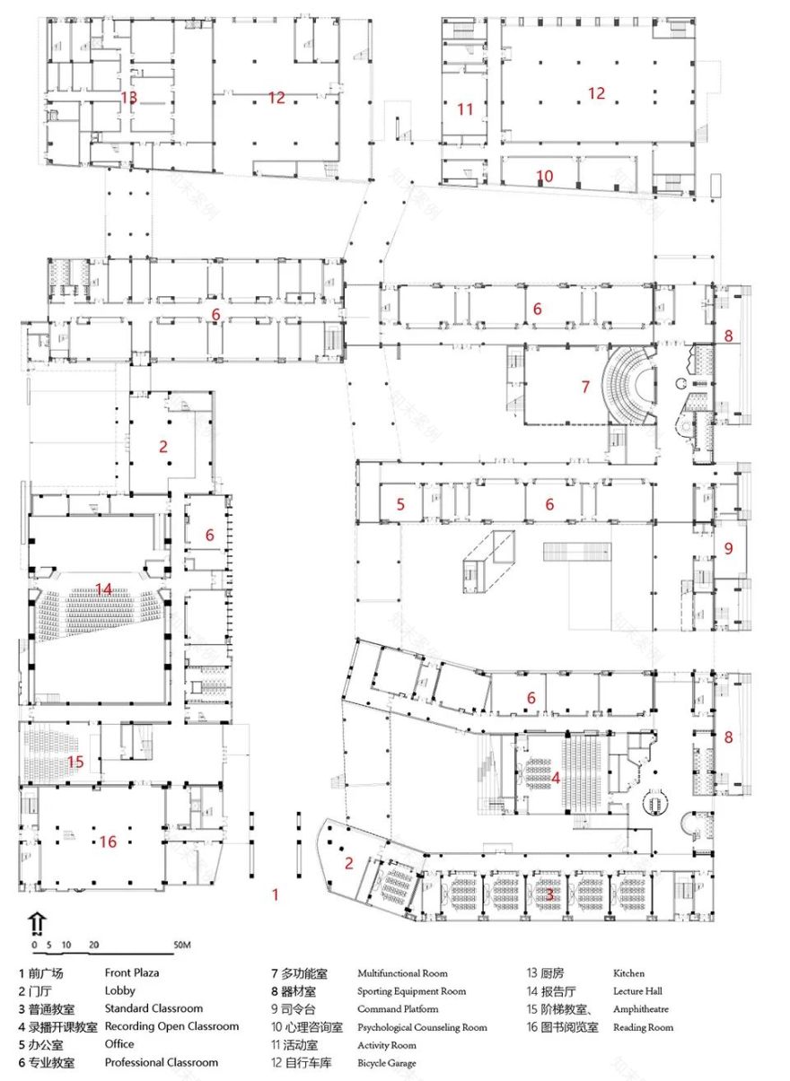
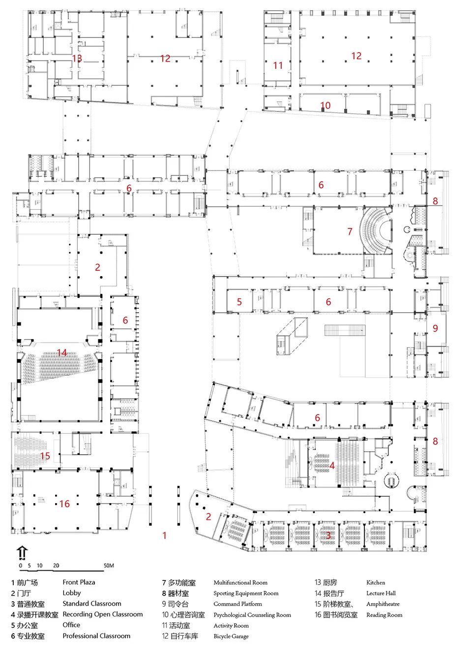
▲一层平面图© 苏州华造建筑设计有限公司
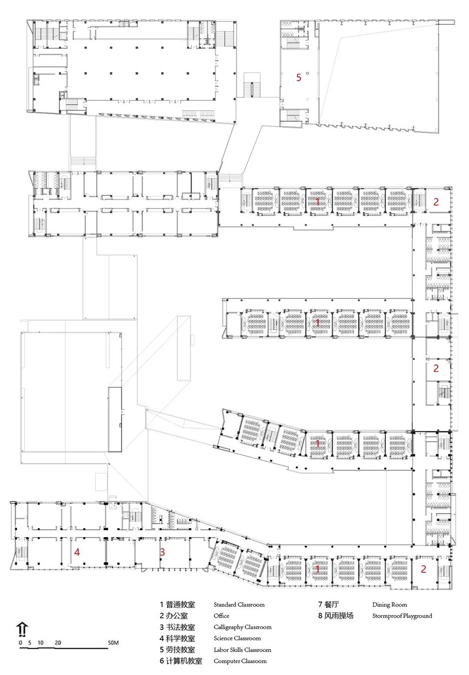
▲二层平面图© 苏州华造建筑设计有限公司
▲三层平面图© 苏州华造建筑设计有限公司
▲四层平面图© 苏州华造建筑设计有限公司
▲五层平面图© 苏州华造建筑设计有限公司
▲东立面图© 苏州华造建筑设计有限公司
▲南立面图© 苏州华造建筑设计有限公司
▲西立面图© 苏州华造建筑设计有限公司
▲北立面图© 苏州华造建筑设计有限公司
项目名称:苏州工业园区星浦实验中学
项目业主:苏州工业园区教育局
设计单位:苏州华造建筑设计有限公司
代建单位:苏州工业园区城市重建有限公司
项目地址:苏州工业园区胜浦街道
项目规模:建筑面积 8.7 万平方米,90 班
设计时间:2020 年 1 月
完工时间:2022 年 9 月
设计总负责人:顾柏男
项目负责人:王志斌
建筑:王志斌、徐宏伟、谈敏、徐向东
结构:陈劲丰、殷韦、顾曦
给排水:罗志华、陈媛
暖通:陆勤俭、姚俭
电气:黄斌斌、贺青波
室内:杨晨、董亚丽、姚刚
摄影:仲几发
客服
消息
收藏
下载
最近





































