查看完整案例

收藏

下载
幼儿高等师范专科学校是一所培养幼儿教师的职业学校,它以理论教学与实践训练并重,为社会培养技术应用型人才。在国家大力发展高职教育的大背景下,项目试图在规划组织、教育模式、空间营造等方面探索职业院校设计的新可能。
幼师学校选址在海边山上,由于幼儿教育的特殊性,这也是一所女生占绝大多数的学校。而学校所在地区的传统观念中,女性地位相对较低,我们非常注重这所幼师学校对于地区的价值。设计的主题为“海的女儿”,我们以FOREST、FREEDOM、FEMINIE为关键词,通过低影响开发、自由空间流线和女性价值三大切入点,致力于呈现“巨型幼儿园”一般的乌托邦校园。校园提供自然、自由、自主的空间环境,使学生们能够在这里恣意挥洒青春、学习技能与实现自我,并借助未来的工作将女性价值传递给下一代。
这里一年四季气候温润、阳光灿烂,白色建筑群静静地依偎在群山与海湾的怀抱中。依山而建的校园体量轻盈飘逸、大气优雅,灰泥为主的立面朴素大方、肌理丰富,并且能够耐受海边骄阳与狂风的考验。根据职业学校的习惯,校园规划将学习分为教学、实训、生活等多个部分。幼师学校办学的核心任务是将一群十八九岁的青少年,培养成合格的幼儿教师。与孩子天然的亲近,是成为一名合格幼师的必要条件,如果无法感受母亲的心情,那不妨回到童年吧。空间设计更多地照顾女性的视角和审美,为这些学生提供一个安全、温馨的庇护所,使她们的校园生活足够快乐和幸福。设计试图构建一个如童年般自由快乐的乌托邦,在无限自由的氛围中学习如何成为儿童、引导儿童和教育儿童。规划打破了传统大学校园里的兵营式和行列式,将所有的空间打散、混合、重组、消隐,从而实现使用流线的大自由。
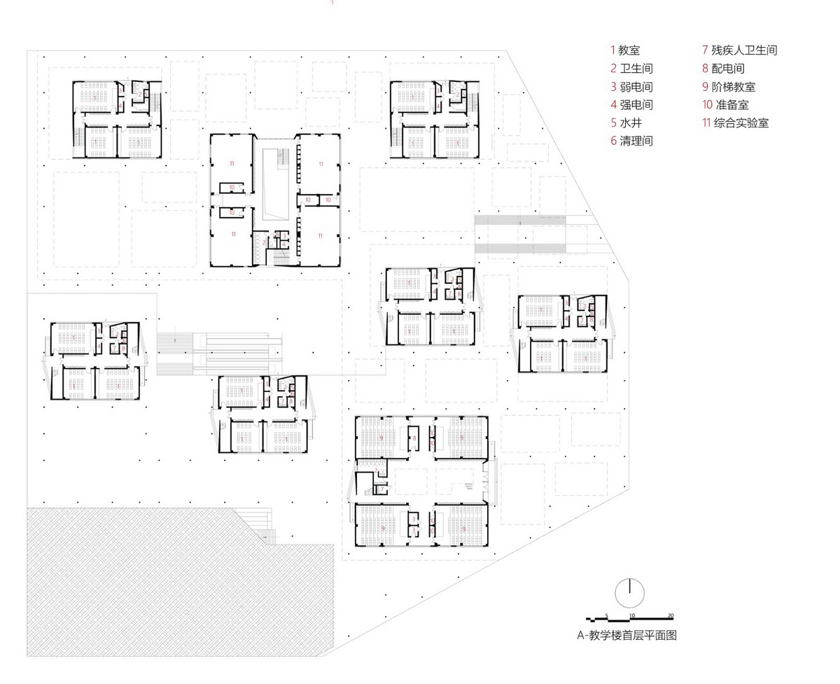
自然是生活的来源,是一切教育的起始。教学区利用场地内唯一一块相对平坦的场地,打破了传统校园的行列式,采取与幼儿园相似的自由布局,使幼师教育与幼儿教育充分接轨。建筑彼此相连,将高差化解于无形,同时形成错落精致的多个庭院,这是师生们交流、学习的绝佳场所,保护未来的幼儿教师如孩童般的好奇心和创造力。
设计以“非竞争,重合作”的教育理念为空间核心,充足连续的共享空间将成为整个校园最具活力的场所。学生们在这里重归童年,融入自然,互助互爱,“自由“”平等“”独立“的观念渗透到空间与教学之中,并能够借助她们未来的工作与生活来传播给儿童。
其他功能则依山而建,设计遵循地势将操场架空于山顶,减少土方量以降低工程造价。山顶操场位于校园的最高处,“无边”的设计赋予其拥山纳海的气势,而食堂就巧妙地藏在操场之下,借助“项链”般的坡道同操场相连。在操场跑步的时候,仿佛置身于山林云海,这种独一无二的体验将成为学生们难忘的回忆。
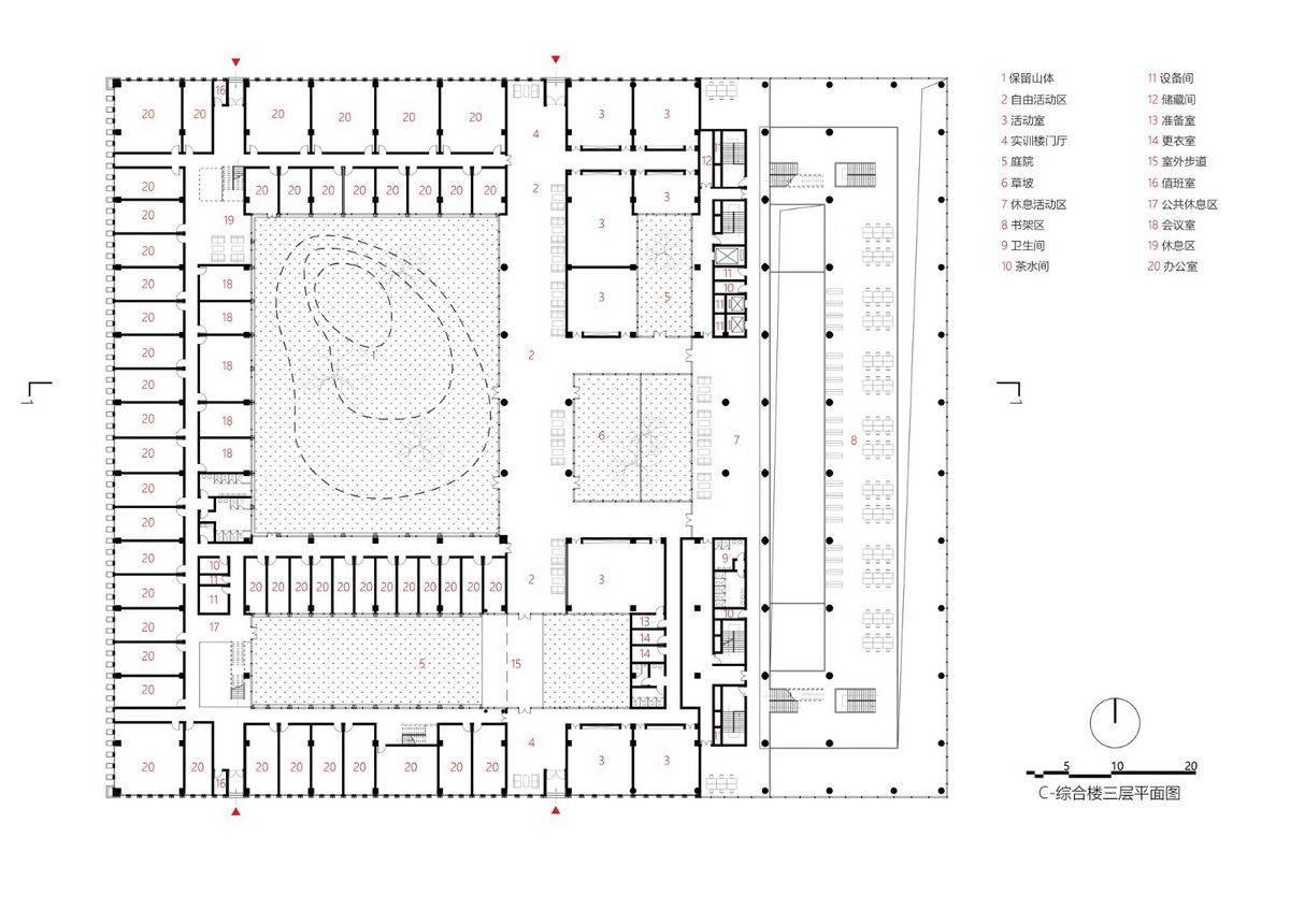
越过树顶的青葱绿色,生活区沐浴在整个山林的青翠之中,低密度的“海景方院”灵巧错动,位于屋顶的“观海平台”遥相呼应,处处都是好风景。综合琴房布局在生活区东侧,尽端是无边泳池,无限山海风光尽收眼底。
这是一所依山傍海的学校,海上的云一天有无数种变化,美丽而多姿。在项目摄影期间,我们的镜头记录下了云的不同姿态、不同色彩,海上的云让人迷醉,物我两忘。人们常说,“教育是一棵树摇动另一棵树,一朵云推动另一朵云,一个灵魂唤醒另一个灵魂”。
项目图纸
△模型图
△模型图
△模型图
△总平面图
△区位分析
△分析图
△轴侧剖视图
△分析图
△分析图
△分析图
△轴测图
△轴测图
△轴测图
△轴测图
项目信息
建筑师: 立木设计
面积 : 100000 m²
项目年份 : 2021
摄影师 :朱清言, 杨鹏程
项目经理 : 郭岚
主持设计 : 刘津瑞、邹明溪
方案阶段团队 : 朱嗣君、李伟辉、高雪莹、王婷婷、李佳妍、谢舜冰、李春瑶、张恩东、杨绪伦、谢雪桢、陈余胤柯、胡笳、葛霖妲、李雨宸、俞纯昕
实施阶段团队 : 李伟辉、刘明昊、程苗
技术顾问 : 侯秀峰、刘承亮
设计顾问 : 申鹏
项目顾问 : 广东晖达工程顾问有限公司
施工图设计 : 广东新长安建筑设计院
地点 : 中国,汕头
客服
消息
收藏
下载
最近

























































