查看完整案例

收藏

下载

翻译
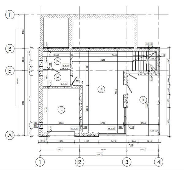
As an architect-constructor, I had the privilege of leading the development of a private house project in Europe from inception to completion. The challenge was the site's 2.2-meter elevation difference, which I turned into an opportunity.
I devised a concept that divided the plot into two sections: a private area and a guest section. By cleverly utilizing the varying terrain, I created distinct leisure zones for both. The private area offered tranquil spaces for the owner's relaxation, while the guest section catered to entertainment and social gatherings.
To add a unique touch, I included a sauna, fulfilling the owner's desire for a personal wellness retreat.
Throughout the process, I collaborated with the owner to ensure their vision was brought to life. The final design harmoniously blended functionality, aesthetics, and the natural surroundings, creating a home that embraces the landscape and caters to the owner's needs and preferences. It was a fulfilling experience to witness the project's successful realization, providing the owner with a private haven that complements their lifestyle.
客服
消息
收藏
下载
最近


















