查看完整案例

收藏

下载
▲ 面向山谷的二期主立面
项目位于浙江省杭州市桐庐县莪山畲族乡戴家山,地处浙江省桐庐县中部中南部丘陵地区,距桐庐县城9.5公里,为戴家山8号民宿项目二期扩建工程。
目前戴家山已经成为江浙一带“网红”民宿聚集区,对于竞争越来越激烈的民宿产业中,我们试图跳出设计本身去思考问题:究竟我们希望为来到戴家山的人带来什么样的体验?去设计和创造出怎样的一种旅居生活方式?我们将“沟通”作为核心贯穿设计始终,这其中包含了人与自然环境的沟通,住客与住客之间的沟通,以及住客与村民之间的沟通。
设计理念
面对复杂的现状环境,以及业主的诉求,如何充分地利用好每一寸空间,同时应对未来居住在民宿中不同人群可能出现的行为模式进行思考,我们对场地原有的交通与功能进行重组,在不破坏原有场地关系的情况下,力求形成一个完整的解决方案。
现状分析
▲ 场地区位
整个村落呈现出Y字型的山谷形态,场地位于村落西侧贴近山位的位置,拥有较好的景观视线,同时由于这样的一个高点存在,从村口及其它位置均能看到这样一幢“地标”性的建筑。
二期与一期之间有一条小溪,隔水相望,竖向上存在较大的高差。
▲ 项目与一期的关系
▲ 一期位置看二期
▲ 二期位置看一期
▲ 一二期整体透视
▲ 房屋原始状态
原始房屋为一幢70年代的土坏民居,由一幢三开间的主楼及右侧两开间的加建部分组成。内部木结构梁柱截面较小,且存在腐朽问题,有较大的结构安全隐患。我们对原有结构体系进行更换,拆除内部木结构并改换为钢结构,保留外部土胚墙体。
▲ 场地现状
由于依山而建,场地环境较为复杂。正面为小片平台,背面有较大高差,呈现出坡地及台地结合的现状,存在一定山体滑坡的隐患。
▲ 改造后
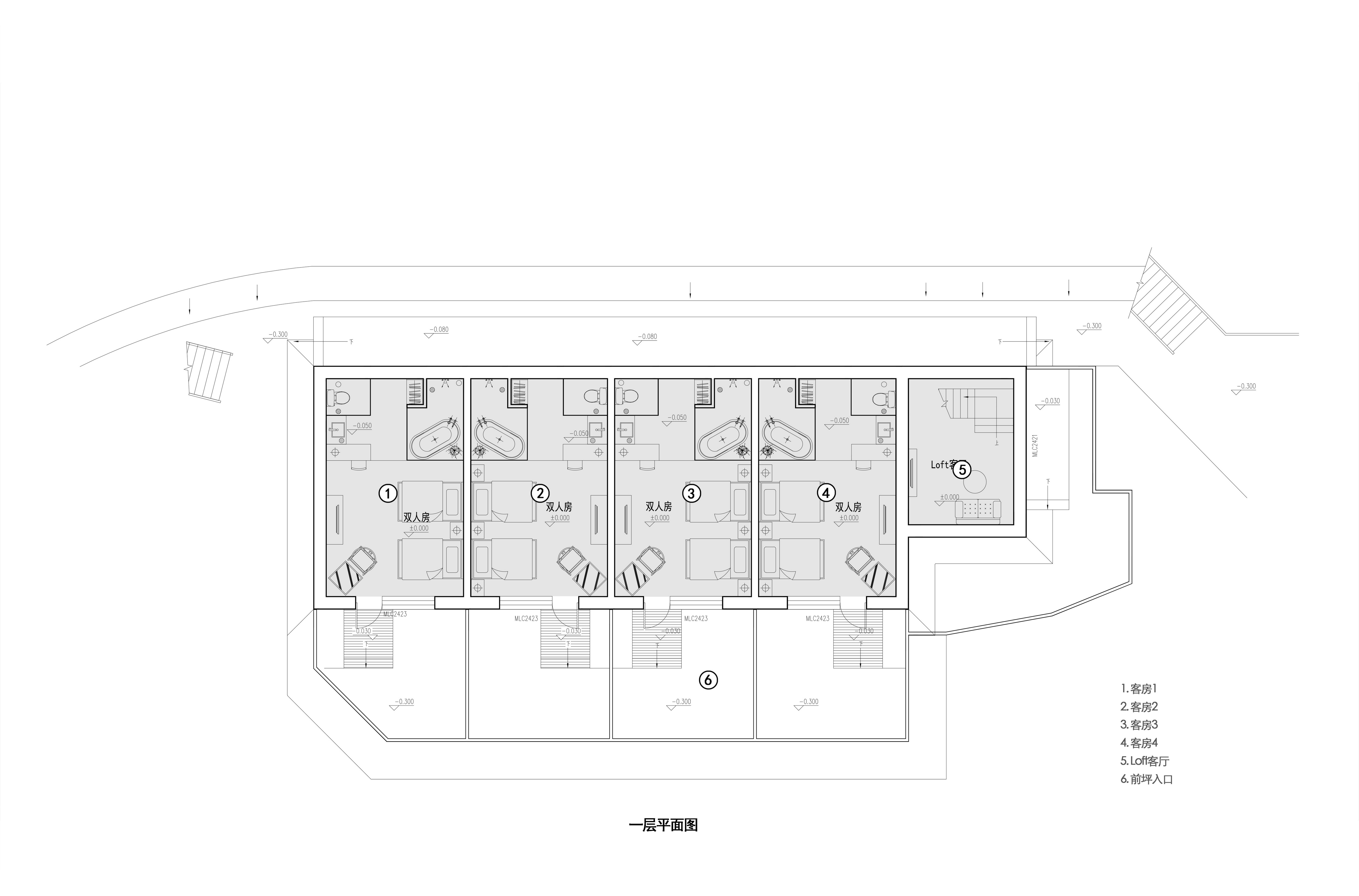
为进一步丰富整个项目的公共活动区域,同时增加一部分客房数量,必然对原有建筑的容量进行扩充。我们在原有的建筑形态上做加法:植入了第三层空间作为民宿的公共区。这个公共区占有最好的景观视线,同时由于它在竖向标高上与背面最大的场地平接,通过架空廊道的连接,拓展了公共区的外部活动空间,让原本较为消极的背面山体变为积极的活动场地。一二层空间在保证不对原有土坯墙体做较大的改动的前提下改造成为客房。由于主要活动场地的转移,一层建筑原有的正面平台成为该层客房独享的庭院空间。
▲ 体块形成
由于原始建筑进深方向的限制,我们将原本应该出现在建筑内部的交通走道外移,结合背面的台地形成不同层次的交通空间,在竖向上形成上下交流和呼应。同时改造后的台地也有效地解决了原有场地山体滑坡的隐患。
建筑背面场地高处较为平整,结合现状整理成两个台地关系:我们将泳池布置于下层的台地,通过叠水的做法化解高差。同时泳池的平面布置上与建筑呈现一定的夹角,朝向山谷方向,带来无边泳池的视觉体验;上层开阔空间作为户外活动营地,为以家庭或团队为单位的客人提供充足的户外活动空间。
▲ 总平面图
▲ 剖面图
▲ 一层客房庭院
▲ 一层LOFT家庭房庭院
▲ 主要竖向交通
▲ 二层入户平台
▲ 三层室外无边泳池
在最终呈现的建筑形态上,形成原有部分与新建部分对话的关系,新建部分的屋顶纵向置于老建筑屋顶上,将“山墙面”覆以玻璃来获取最好的景观资源。以这种形式消解后的形体也避免了屋顶体量过大的困扰。起伏的屋顶为三层公共空间带来有趣的内部空间体验。除了保留土坯墙体以致敬原有的畲族传统建筑形式,我们还保留了部分二层檐口以有效保护土坯墙体,免遭雨水的侵蚀,同时也是对原有建筑在构造做法上的尊重。
▲ 施工现场
▲ 轴测爆炸图
作为承载客人主要活动的公共空间,我们试图弱化建筑本身的存在,正面的大面积落地窗将室外景色一览无遗,同时阳台的半室外空间让客人与山民的生活有了更进一步的沟通。而背面通长的吧台,让室内休憩的人可以与室外活动的人在视线上有着直接的联系,建筑室外的露台通过架空廊道将泳池与营地连接,变成了场地的一部分。
▲ 三层公共空间
▲ 三层露台
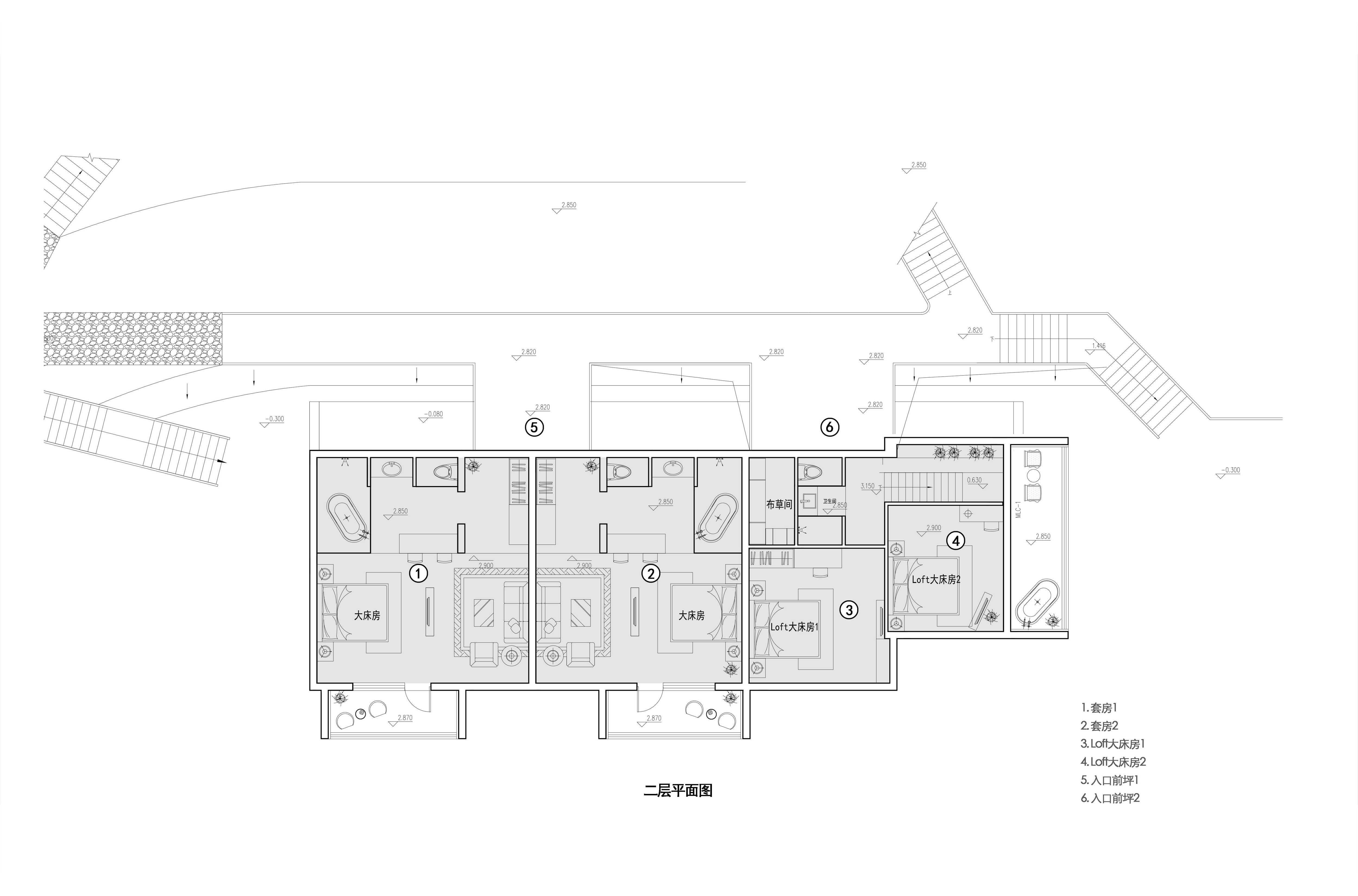
客房空间作为民宿中最为私密的部分,我们通过合理的功能组织充分发挥每一个客房的价值点:一层设置为带私家庭院的客房,二层扩大开间设置为套房,而原有辅房改造为LOFT家庭房,为不同的客群带来满足各自需求的度假体验。
▲ 一层庭院房
▲ 二层套房
▲ Loft家庭套房
▲ 卫生间
技术图纸
▲ 一层平面图
▲ 二层平面图
▲ 三层平面图
项目信息
项目名称:戴家山倚云山舍精品民宿
建筑事务所:杭州简然建筑设计有限公司
公司所在地:浙江杭州
项目完成年份:2019
建筑面积:600㎡
项目地址:浙江省杭州市桐庐县莪山畲族乡戴家山
主持建筑师:何奇
主创建筑师:陈吉利、杨洋
团队成员:魏烨铌、余晨、林迪琦、刘丽瑛
委托方:杭州桐庐倚云山舍民宿有限公司
摄影师:潘爽
客服
消息
收藏
下载
最近





































