查看完整案例

收藏

下载
拉昆塔·温德姆酒店
La Quinta · Wyndham Hotel
山东,潍坊
鹏之背,不知其几千里也;怒而飞,其翼若垂天之云。
——庄子《逍遥游》
潍坊市位于山东半岛西部,又称鸢都,是风筝的发源地。从鲁国墨翟制作第一只“木鸢”至今,已有两千多年的历史,是一座根植传统手工艺的胶东名城。
◎基地现状
场地位于坊子新区,紧邻北海路,用地北、西、东三面被虞河环绕,但周边存在大量待开发空地,城市界面较为荒芜。酒店及办公用地面积约38000㎡,总建筑面积亦超过95000㎡,如何平衡场地与体量,重塑都市地标感是项目面临的首要挑战。
设计初衷并不在于对单一建筑的表现,而恰恰相反,更想以宏观整体的笔触,创造一组属于城市的建筑群落,以自身整体性和统一性上从周边的城市环境中脱颖而出。
◎体块生成图
半开放式围合布局是我们最终采用的布局方式,通过对酒店和办公体量进行整体考虑,东、南、北侧U字形布局的体量围绕裙房布置,景观最大共享,并向西侧主要道路打开,最后紧邻西侧城市主干道放置100米地标塔楼,限定出入口城市广场。
在设计手法上,“统一”与“整体”成为关键词。设计团队并未做体量上的拆分,而是采用“化零为整”的手法,将四个高低起伏长短不一的体量赋予同样的建筑语言,既保证了功能空间的统一,又能在城市尺度上形成强烈的整体标识感。
设计取材于潍坊知名标签——风筝,以“风之翼 ”为概念,为建筑赋予轻盈动感的性格,而立面上局部扭转的线条则让人联想到微风吹拂湖面,泛起的阵阵涟漪。
地块西侧北海路沿街建筑城市天际线营造出一个高低错落有序、简洁时尚的现代都市新形象。重复使用水平方向的横线条,创造了一组现代、时尚的建筑群体,富有诗意的弧形线条,将建筑不规则切割,使建筑像是漂浮在云间,又像是与天空融为一体。
酒店主入口朝向西侧城市主路,内部围绕建筑形成环线,客人流线、后勤流线、消防流线互不干扰,顺畅便捷,入口广场的设计将酒店前场景观标志化,创造城市景观感受。裙房部分为酒店提供服务的同时,也为周边办公提供商业与休闲文化服务。
东侧沿河打造一处滨河景观绿化,将河景最大程度的导入内部。场地中设置各种庭院空间,结合树木采用不同形式组成绿化空间,成为市民休憩和儿童游乐的场所,使项目景观融入城市绿化体系,成为城市景观的组成部分。
酒店的1-2层裙房主要布置公区功能,包含大堂、大堂吧、大宴会厅、中西餐饮、商业及休闲娱乐等;3-8层为客房层,提供259间客房,包含标准客房、行政套间、总统套房在内的各种房型,满足多样化需求。
◎酒店功能分布图
旅客由西侧入口进入大堂后,由水平动线便捷的去往各公区分区,或由独立的垂直动线进入客房,互不干扰。在地下车库设置有专用客人电梯,连接到一层酒店大堂;后勤人员则通过专用后勤入口和垂直服务梯到酒店各楼层后勤区。
酒店造型简洁而优雅,酒店入口的弧线设计,使其整体像一艘起航的船,航行于虞河之中。主体采用玻璃幕墙加外挂银白色铝板水平横线条的处理方式,简洁大气;同时,通过楼层间水平线条细微扭转,形成充满动感的肌理,在阳光下也产生出微妙的光影变化。
外墙铝板在不同时间的阳光下呈现出不同的光泽,横向线条为建筑带来了漂浮和水平延伸感,而线条局部的扭转又为立面添加了些许灵动,加上建筑优雅水平架构和透光玻璃,当在远处遥望时,似乎感觉到建筑在游动。
建筑材料目的是突出建筑的漂浮感和流动感,整体建筑立面为冷色系,银白色铝板外挂与浅灰玻璃的冷色调相互衬托。塔楼层间的横线条采用3mm厚银白色铝板和3mm厚深灰色铝板相互交错,主体的支撑式玻璃幕墙,采用8(Low-E)+12Ar+8钢化中空玻璃。
入口材料采用与立面一致的3mm银白色铝板以及金属格栅,8(Low-E)+12Ar+8超白钢化中空玻璃的应用,保证了北向大堂有良好的采光效果。山墙局部采用灰色真石漆,通风口百叶与周边墙体使用相同颜色的铝板防雨百叶。
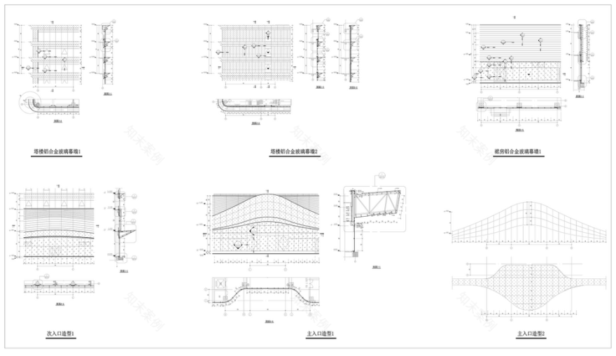
入口造型整体宽8.4米,高5.4米,悬挑5.8米,内部用120(80)x60x4镀锌钢管搭建,外包3mm厚银白色铝板,既让整个雨棚具有乘风破浪的动感,又有利于结构受力。造型底部以层层退进的形式,结合灯光效果营造出波光粼粼的视觉体验,提升入口意境。
为了实现水平横线条的旋转造型,材料的选择综合考虑立面质感,结构荷载,成本控制等因素后,选择了最为常见的银白色铝板作为最终材料,把重点放在深化的节点控制上。
技术设计」
◎平面图
◎立面图
◎节点图
项目档案
项目名称:潍坊恒信拉昆温德姆酒店
建设单位:恒信建设集团有限公司
设计单位:上海睿风建筑设计咨询有限公司
项目地点:山东省潍坊市
建筑面积:95000m²
容积率:2.5
景观设计:青岛沿海设计有限公司
室内设计:青岛沿海设计有限公司
施工图设计:青岛沿海设计有限公司
幕墙设计:金丰环球装饰工程(天津)有限公司
摄影:一 l 影像
客服
消息
收藏
下载
最近























