查看完整案例

收藏

下载

翻译
MULTAQAWhere Architecture Meets Nature
International Competition: Arch of The Place, SAE School of Architecture in Egypt
Team: Mahmoud Abdel Raouf - Mai Ali Sinousy - Radwa Mosaad - Aya Elsheiwi - Dana Ekramy
Location: Sohag, Egypt
Award: Top 10 Finals
Plot area: 22,500 sqm
Type: Cultural CenterProject Year : 2024
Vision
Form Generation
Layout
Accessibility and Contextual Study
The main axis, where an open plaza sits on the Nile, and acts as a connector -not a separator- to the 2 sides of the island.
Linkage and Landscape Study
The masses beneath this plaza seamlessly blend with the urban fabric of Suhag. The landscape design incorporates modular units as well
Visual and Social Connectivity Study
Through directing spaces towards the Nile view, and using terraces to create engagement between outdoor and indoor spaces.
Primary Stage of Project
All of Sohag's residents find a place in this architectural narrative, symbolizing cultural enrichment and community building. The building connects people to each other, fostering unity and shared identity in the heart of the city.
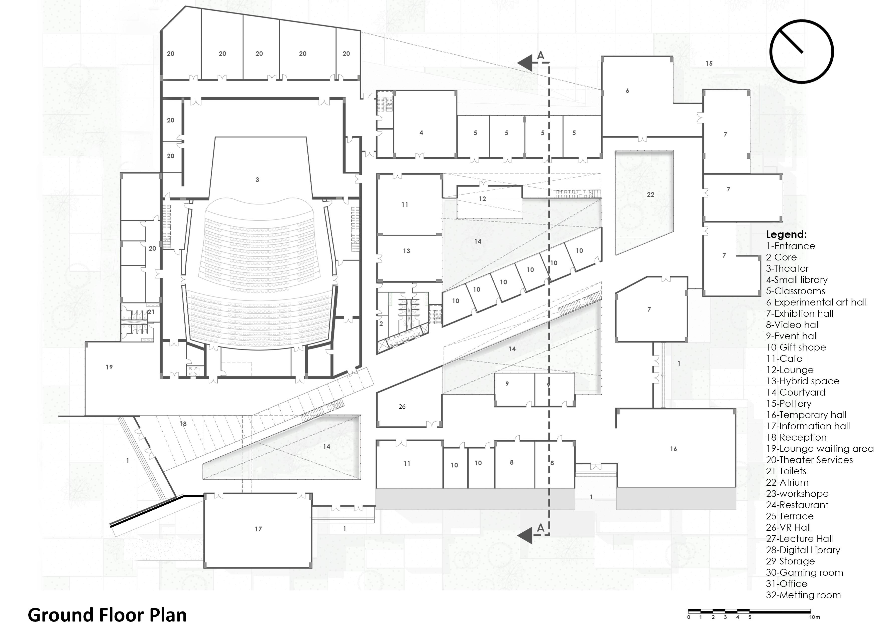
Architectural Drawings
The project is economically sustainable through injecting new spaces, such as open theatre, gift shops, and restaurants. These elements are crucial for enabling the project to generate its own funding.
Interior Shots
The Crafts Center welcomes visitors with a journey that combines traditional craftsmanship, matched by the building's rammed earth material, with a sense of serenity brought about by the use of tall canopy trees in the courtyards and expansive areas.
The user can engage with the interior through the masses, which are recessed and projected in a sequence that creates maximum visual and social connectivity, making the experience more than just observational.
Final Board
客服
消息
收藏
下载
最近





















