查看完整案例

收藏

下载
大河小城
灌河入海口最广为人知的传说,也许是吴承恩笔下二郎神大战美猴王的所在地。偏于长江三角洲北部的灌河是由古海湾泻湖冲积平原基础上发育起来的入海潮汐自然河流。灌河以盐河为纽带,北通连云港,西南通淮阴与京杭运河相接。全长只有区区174.5公里,它却滋养着两岸的万顷良田和人民的生生不息。与长三角区域数不清的小城相比,因灌河流经数十里跌水轰鸣而得名“响水”的这个县城并无二致。在从煮盐捕鱼发展到港口工业发展的时代提速之下,小城生活气息依旧是那惬意度余生的岁月静好。
城镇化的尾浪
进入21世纪以来的十五年,我国的城镇化比例快速提高,从36%一跃达到56.1%,城镇常住人口达7.7亿。虽迟但到,作为盐城的下属县,响水县政府积攒了十余年的建设指标储备终于在2015年迎来了一波集中的城市公共建筑建设。这波开发希望实现两个目标:其一,通过配属政务服务中心,五星酒店,全民体育中心等大型公共建筑的配备,为已初步部署落地的东部新城的土地溢价提供推力,借助土地媒介滚动完成城市化资本闭环。其二,对于老城区现有配套缺失严重的补足,将多个文化相关部门的场馆建设集中合并,统一建设管理,响水文化艺术中心中心正是在这样的契机下独自肩负起丰富主城区文化生活的使命。
个体回望
2016年初,ATAH介景建筑事务所通过竞标获得了响水文化艺术中心的设计权,这对自小生活在南京的我而言却是一次遥远而模糊的回望。小时几次和姥爷的见面回想起来早已语义不详,甚至面目模糊。只记得中学开始,每年家人都约着去苏北扫墓访友。虽然当年没有高铁,路途颇费周折,令少年凭空中生成些许惆怅,但熟悉的江淮乡音喃喃述说着这是一片遥远而熟悉的乡土。亢奋的时代气息下,忙于求学与职业起步的青年身心早已飞去地球另一边,直到这十多年之后的再度相遇。地理的坐标描述,一定不如早起街边的一碗鱼汤面让人获得一种准确的误读。(鱼汤面是苏北另一县城东台特色,但县城间的共性远大于差异)虽然城市化的进程已经不可避免的格式化小城的模样,带来了巨型的工业企业和商住综合开发,但人们大体保持着细水长流的生活节奏。夜幕降临后拓宽的城市道路被市政亮化照的通明,男士们在隐秘的私房菜据点觥筹交错,夫人们如果要置办高级货儿还是会约着去盐城金鹰,台灯下苦读的县中娃娃并没有闲情思考夜晚可以和好友在何处相聚,他们梦想大都被安排在省会城市的未来,没错这是一个时代巨变中的小城生活,更是一个源远流长的熟人社会。
定义一个问题
当年的建设计划围绕着新城展开,唯有文化艺术中心位于老城的闹市之中。受城市化所赐,除了交通便捷,人口密度充足之外,臆想中的历史文脉早已无迹可寻。设计关注的一个基本议题是:面对一个大型政府项目为底色的工程,如何避免成为又一个脸谱化的官式建筑,而能为小城提供尺度适宜而真切的空间肌理,为具体使用者创造个别且多样的场所记忆呢?在此之后,设计对一些基本的城市条件进行了回应:①比如水平舒展的主形象屋顶应对北侧的烈士纪念公园退让出的开敞视野;②将瞬时人流量最多的剧院设置在西侧与已存体育馆形成的对望,更好的界定以教育局主楼为轴线的城市广场;③十字路口显著的形体退让以纳入180度的河景和水岸活动;④项目作为”四馆三中心“提供服务的使用要求。这体现了(过)多个使用单位迫切的在新环境入驻的意愿,以及如何在方便其各自独立形象,高效运作的同时,提供整体的秩序、交流的平台、互补的运营。
建筑里的城市
总体布局上四个主要场馆依据其动静之别,被舒展而统一的屋面覆盖在四个象限。通过清晰的体积剔除,在灰色体量中高亮出公共空间的区域。设计通过在建筑的内部置入二层户外公共街道、环廊、下沉景观庭院,天井等操作,将城市街巷般的体验内化到建筑体量中央。如同被切开的峡谷所显现出的多变而热烈的内侧壁整合了灯光设计,在日夜呈现两种质感氛围,并被统一在向内倾倒的动势之中。使用者在体量的中央展现出一种被保护的洄游路径,传递出一种被鼓励的链接和漫游体验。遗憾的是外部的功能性需要景观软装来一并塑造,由于局部工程局部拆改,暂未全面实现。
涟漪潋滟
早年站在让.努维尔的琉森当代艺术博物馆的屋檐下极目远眺琉森湖面的体会极其深刻。文化艺术中心东北角的局部处理上通过大跨的屋面结构,和从外延绵到室内的吊顶以及灯光的处理,试图向内外两个方向再现这样的体验。晶体结构的吊顶单元与菱形的内立面单元以一种高度抽象的密铺单元的模式加强了这种内外协商的包裹感。在这种整体性之下最引人注意的是县城唯一的一座800人多功能剧院。作为中国小戏艺术之乡的响水,即希望本地的文化精品能有更好的展示舞台以走出去;也希望高规格的外地演出能走入小城人民的文化日常之中。以水为媒,形态,舞台灯光以及声学被建筑师整合进了动态涟漪的韵律之中。自建成开放以来的数十场场的文艺演出已将其中曼妙编入了众多观者的回忆之中。我们在这个高温创纪录的炎炎夏季对现场运营管理进行了回访,图书馆和妇女儿童活动中心外场成片溢出的电瓶车和自行车以一种诙谐的方式展现了市民的热情。有趣的是物业人员在忙于非机动车管理的闲暇之际,闲聊起对周末即将上映新剧的期待。
波折与河湾
响水文化艺术中心作为全县四个重点城市建筑新建之一,开始于政府对全面提升小城文化生活水准的雄心,却多次因为不可抗力走走停停,几经波折。建筑师始终在妥协与坚持的刻度线上动态校准立场,以作出适时的抉择。在这个充满不确定的时代;在一次次与主管领导的协商与博弈中;在一次次响应施工和运营的调整反馈中,我们在地的工作方式被根本的改变了。坐在返程的高铁上不尽感悟,我们从未改变小城,小城改变了我们。我们希望这个建筑展现解构官式价值的某种可能,它包容的场地精神和浪漫开放的建筑性格如同灌河分支的一曲河湾,为少年们的织梦之旅提供一处记忆与想象共存的栖息地。
项目图纸
△模型图
△模型图
△模型图
△模型图
△分析图
△分析图
△功能分区图
△流行分析图
△总平面图
△一层平面图
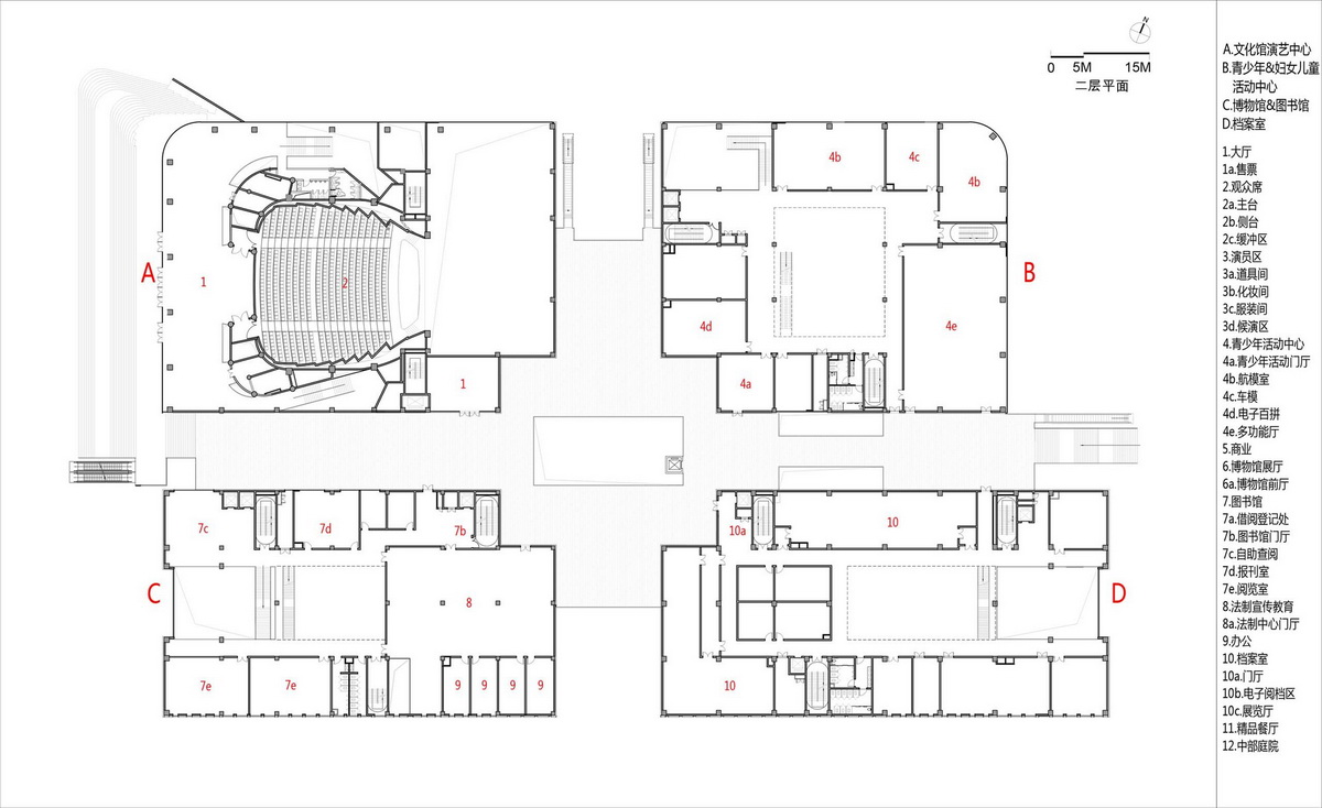
△二层平面图
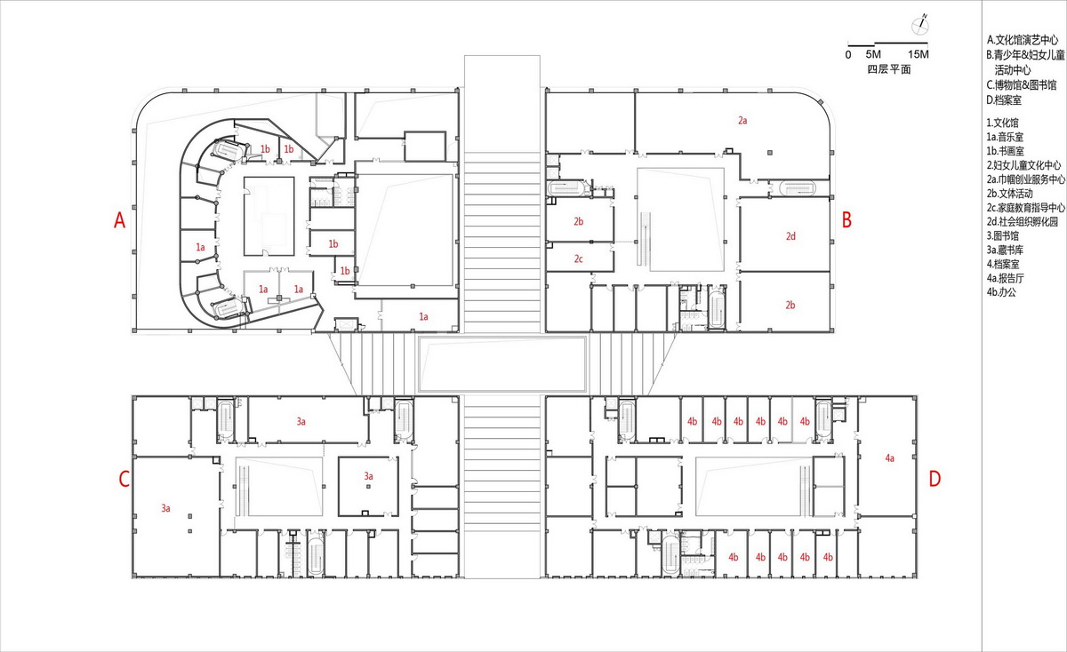
△四层平面图
△剖面图
△剧院平面图
△剧院剖面图
项目信息
建筑师: ATAH介景建筑
面积 : 39164 m²
项目年份 : 2022
摄影师 :赵奕龙
厂家 : Toto, 南京华埠机电工程有限公司, 江苏华东耀皮玻璃有限公司
项目负责人 : 何凡、程瀛
竞赛阶段设计 : 段俊,杨朕钦、满铁木尔、何珍
设计团队 : 何凡、杨朕钦、满铁木尔、程瀛、何珍、苏晨、Amanda Ai、陈金、赵法中、沈友航(实习)、缪刘阳(实习)
Principal Architects : Guang Xu, Dandan Wang
业主 : 响水城投控股集团
施工图团队 : 盐城市建筑设计研究院有限公司
结构顾问 : 上海泰大建筑科技有限公司
声学设计顾问 : 同济大学声学研究所
地点 : 江苏省,盐城市
客服
消息
收藏
下载
最近






















































