查看完整案例

收藏

下载
海南 ACC 产业交流中心
Hainan ACC Industry Exchange Center
中国,海南
Hainan, China
引言
“最好的建筑就是这样的,我们深处其中,却不知道自然在哪里终了,艺术在哪里开始。”——林语堂
区域背景 气候特征
ACC 产业交流中心项目位于海南省澄迈老城镇,地处热带北缘,属热带季风气候。这里长夏无冬,入春早,升温快,夏日酷热,全年无霜冻,冬季温暖,稻可三熟,菜满四季。海南省受季风环流的影响,雨季和旱季分明,夏季风期间,因地处低纬海洋,降水受台风影响甚大。在此自然气候环境下,如何打造舒适安全的空间以及促进建筑和环境的融合是建筑师需要重点考虑的问题。
△摄影:曾江河
建筑功能 设计主旨
作为海南生态产业园项目中的产业交流中心,建筑服务于地块内不同规模不同需求的中小企业,包含了巨屏影音宣讲、文化沙龙、团队建设等功能板块。无论是新产品发布、会议、展陈,或是文化交流、社交、互动,每一种情况都需匹配合适的场景。
建筑师旨在打造一个顺应气候特征,提供产业人员在多元融合的复合功能空间中交流的场所。
△效果图:艺元视觉
方案生成 空间塑造
建筑东侧与产业园内部组团花园相邻,西侧毗邻市政滨水公园,顺应西侧公园主要人流动线,建筑体量中心做架空处理,连接东侧组团,使得东西向流线贯通。
与此同时,让每层体块错动堆叠,形成大量的露台和挑板阴影空间,其中,挑板部分形成的外遮阳空间给使用者提供了清凉舒适的空间,出挑体块部分为解决西晒与视线问题做外遮阳彩釉玻璃处理,也极大地提高了使用体验。
这种自然流动的建筑体量不仅可以提供更舒适的空间,而且更能融于自然环境中。
△体块生成
△摄影:曾江河
△摄影:曾江河
“看与被看”—楼梯空间的重塑
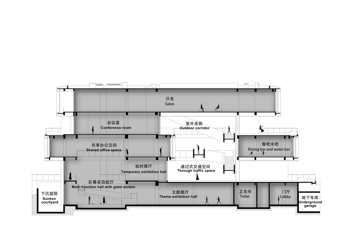
在架空通道放置了一个尺度夸张的大楼梯,整合来往人流,首先实现层与层之间使用可达性的基本要求。其次,楼梯在二层向西设置挑台观赏西侧市政景观,四层向东设置挑台观赏组团景观,直至五层楼梯到达产业沙龙交流核心空间。楼梯成为交通的枢纽与观景的媒介,登高望景使周边景观的优势发挥到了极致。
△建筑剖视图
△摄影:曾江河
同时,在建筑的核心空间采用铜铝复合板材料建造大楼梯,挺拔的雕塑感体量,与建筑整体的结合给人强烈的视觉冲击感,成为建筑外立面语言。在规则的建筑立面里,室外楼梯的材质和造型显得十分桀骜不驯,形成强烈的对比,成为“被看”的视觉亮点。
△摄影:曾江河
实与空的对话
艺术楼梯在这里作为空间的纽带,将建筑内部各层空间与外部空间串联起来,将内外部空间的界限朦胧化,通过空间上虚与实的交融与交流,成为了看与被看的容器,艺术性由此得以彰显。
△四层挑台看楼梯
△二层入口处玻璃室内外渗透
△一层柱廊灰空间与室外空间的渗透
△五层楼梯右侧室内外空间渗透(来自广州里外视觉影像)
△五层室内空间看楼梯(来自广州里外视觉影像)
结构美学
一个好的建筑的产生,定是建筑与结构的完美结合。建筑设计构思的自由性是随着对结构学法则性认识的逐步深化而扩大,而建筑结构的自在性又是在把握美学构成法则性的基础上得到飞跃的。本项目中大跨度楼梯采用悬挂结构体系在于空间感上是极其震撼性的,建筑与结构相得益彰。
△摄影:曾江河
△摄影:曾江河
材料与构造细节的创新,服务于功能需求。创新的外遮阳彩釉玻璃的幕墙节点,首先解决了西晒问题,增加了建筑的体量感与空间感;其次,幕墙结构采用点式支撑系统和上下玻璃夹具相结合,解决超高夹胶彩釉玻璃结构绕度过大问题,对抗海南台风天气下的风荷载。最后通过对彩釉玻璃点釉大小的调节来保证内部空间视线丝毫不受影响,依旧可以透过玻璃感知光影的变化与时间的流逝。
捕捉光与影的容器
△摄影:曾江河
细节
△摄影:曾江河
技术图纸
1.主题展厅
2.休息区
3.巨幕多功能厅
4.临时展厅
5.休息区
6.共享办公空间
7.餐吧水吧
8.会议室
9.户外露台
10.沙龙
△立面 1
△立面 2
△剖面 1
△剖面 2
工程档案
项目名称|海南生态软件园科技企业加速园(ACC)
本案名称|ACC 产业交流中心
项目位置|海南省/海口市/澄迈县南二环路与疏港路交口
业主单位|海南誉程实业有限公司
设计单位|上海日清建筑设计有限公司
设计总负责|程虎
项目经理|陈成
技术顾问|郭丹
方案设计团队 |陈佳洁 朱云芳 万柯 朱凯 林盈婷 江涛
建筑材料 |阳极氧化铝板、彩釉玻璃、铜铝复合板、超白玻、灰玻
施工图设计 |华阳国际
景观方案设计、施工 |伍道设计、海南兴源
室内设计 |上海董世建筑设计咨询有限公司
幕墙、泛光设计 |上海恒利益建装潢、上海徽之度照明科技有限公司
建筑占地面积|13270.51 平方米
建筑面积|4180 平方米
竣工时间丨2023 年 3 月
专业摄影丨曾江河
客服
消息
收藏
下载
最近
















































