查看完整案例

收藏

下载
中国核建上海科创园核文化展示馆
CNNC Nuclear Culture Exhibition Hall
中国,上海
Shanghai, China
基因编辑技术可以对生物的DNA序列进行修剪和替换。促使胚胎用健康的基因复制品来修复DNA,消除致病突变,保证健康后代的出生。
而建筑改造正如基因编辑,试图用更优的策略手法,解决原有建筑的问题,让建筑呈现新的生命。
而建筑、室内、景观一体化的设计直面传统项目中三者相互剥离,语义相悖的问题。
将三者整合到一个语境下,用统一的设计策略,延续性的手法串联起彼此。使三者可以紧密结合,相互对话,形成完整不可割裂的整体。
基地区位
“ Site Location”
项目位于上海虹桥商务区,北临徐民路,西靠蟠龙路,毗邻国家会展中心。建筑为永久性建筑,作为核文化展示馆使用。设计意图在形态上呼应核文化的力量感,并创造新的空间体验。项目通过建筑、室内、景观的一体化设计,保证了概念的延续性。
项目的难点主要来自以下三个方面:一是不能改变原有方案深处地块内部的位置,但需要和地块入口有更好的联系;二是不能改变原有方案的轮廓,但要提升内部空间品质;三是需要在设计范围内解决来自地下防火分区的疏散口。
◎位置关系图
设计理念 & 空间生成
“ Concept & Space Shaping”
对于展示展览馆来说,展示区域的空间感受以及展示流线都是设计的重点。原方案将展示空间简单地放置于中间,且上下分置,没有达到展示空间需要的尺度和空间流动感。另外由于使用了室内空间消化地下疏散口,影响了入口门厅的空间效果。
◎原方案平面图
在新的设计策略中,一条与展示区流线发生关系的“路径”将整体的L型空间一分为二。在“路径”的两侧自然生成两个挑空区,分别定义为展示和公共空间,满足两种功能对空间尺度的要求。
◎建筑轴测图
通过对疏散通道的位置和方向重新设计,使其可以完美植入分割后的空间里,让门厅不再受到疏散口的影响。
后勤办公被布置在端头和二层,避免和主空间的使用冲突。“路径”不光与室外展示区有形态上的关联,还串联起室内的各个使用空间。
造型立面
“ Shaping & Façade Design”
原方案的大跨屋架形式更多地运用于临时性建筑,屋面和立面是相互剥离的个体。
◎原方案效果图
新的设计将原有外放的空间整合进室内,形成完整有力的建筑形态。“路径”不光划分空间,也是生成外部形态的基础。
通过“路径”对整体形态的切割以及对切割后屋面墙面的变换组合,形成了连续的外立面形态。
斜墙,反斜面挑檐,折板等立面元素是对“路径”的形态呼应。而立面上的虚实组合则是不同室内功能的外在表现。
建筑语言和材料
“ Architectural & Material ”
材料方面新方案突破了原有方案的玻璃和钢的普通搭配,尝试了新材料的运用。
外立面采用了咖啡灰的铝板和浅金色的拉丝不锈钢,强化建筑的质感和张力。铝板墙,铝板百叶,玻璃幕墙的组合运用构成了立面上的虚实变化,丰富了建筑立面的层次。
室内材料方面,除了将从室外自然过渡进来的拉丝不锈钢用作顶面材质,还运用两种不同颜色的石材来表达空间感。在保证纯粹的空间感同时,加强了空间的戏剧化。
室内空间
“ Interior Design”
在“路径”的有机分割和串联下,新方案不再拘泥于原方案方形的空间,营造出丰富的空间形态。
通过两个挑空空间和路径的串联,所有的空间不再被楼板和墙体束缚和隔离,而是相互关联,形成一个完整的流动空间。
通过外立面的虚实变化,室内外的关系不再平铺直叙,而是建立起叙事性的联系。让人们不再迷失于标准化的空间中,重新拾回建筑的场所精神。
展示区景观
“ Landscape”
由于场地两侧分别受大区红线及南侧绿地环河陆域控制线的限制,整体较为狭长,怎样通过入口的处理引导人流成为了设计中需要解决的主要问题。
方案中,借用河道上空的部分空间,以景墙及门头限定,形成喇叭口,加强入口的昭示性。而水镜面的设置从感官上扩大了空间尺度。折线形的门头及道路使得广场空间自然而然的过渡到狭长的庭院空间。
◎展示区轴侧图
同时,项目地块临河,设计中通过标高的梳理,增加场地的亲水性。把现有的景观吸纳进售楼处的视野之中。临水设置户外洽谈空间,充分利用现状河道条件的同时,提供多功能活动的场地。
风格上,提取建筑设计语言,融入景观设计中,追求简洁抽象的现代意境。功能上,力求室外空间与室内建立关联,以求打造景观建筑室内一体化的和谐设计。
植物的选择上,上层乔木、主景树以落叶为主,以求感受四季的变化,中层乔木以常绿为主补充绿量,并结合花灌木的设置,增加各个季节的景致变化。
下层以常绿灌木以阶梯式的高度变化回应场地的竖向设计,观赏草的点缀打造轻松自然的游览氛围。
总结
“ Summary ”
改造项目并不具备重构的条件,而是需要在原有的架构中寻找“问题DNA”或者负面的“外源DNA”,运用设计手段,剪断问题序列,并用健康的序列进行替换,消除负面影响因素。
“健康”的建筑客体不仅仅是物理层面的好用躯壳,更是场所精神的载体。
技术图纸
“ Drawings”
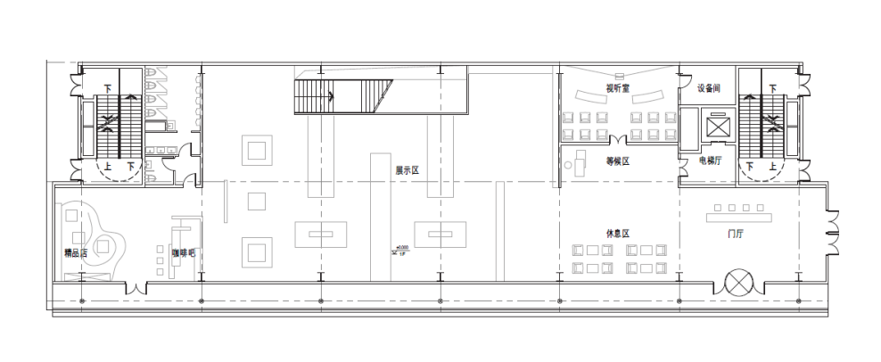
◎总平面图
◎首层平面图
◎二层平面图
◎北立面图
◎南立面图
◎西立面图
◎东立面图
◎剖面图
工程档案
项目名称丨中国核建上海科创园核文化展示馆设计
项目位置丨上海虹桥
业主单位丨上海中核科创园发展有限公司
建筑、景观、室内设计丨上海日清建筑设计有限公司
设计总负责丨李竞
业主团队丨胡建昌 李佳宇 常志荣 沈德中
设计团队丨凌霄 王南南 吕铭 陆柏屹
室内深化设计丨上海半分空间设计有限公司
建筑面积丨1800㎡
设计周期丨6个月
竣工时间丨2019.06
建筑摄影丨胡文杰&繁玺视觉
客服
消息
收藏
下载
最近








































