查看完整案例

收藏

下载

翻译
照片 © Roland Bernath
照片 © Roland Bernath
照片 © Roland Bernath
照片 © Roland Bernath
照片 © Roland Bernath
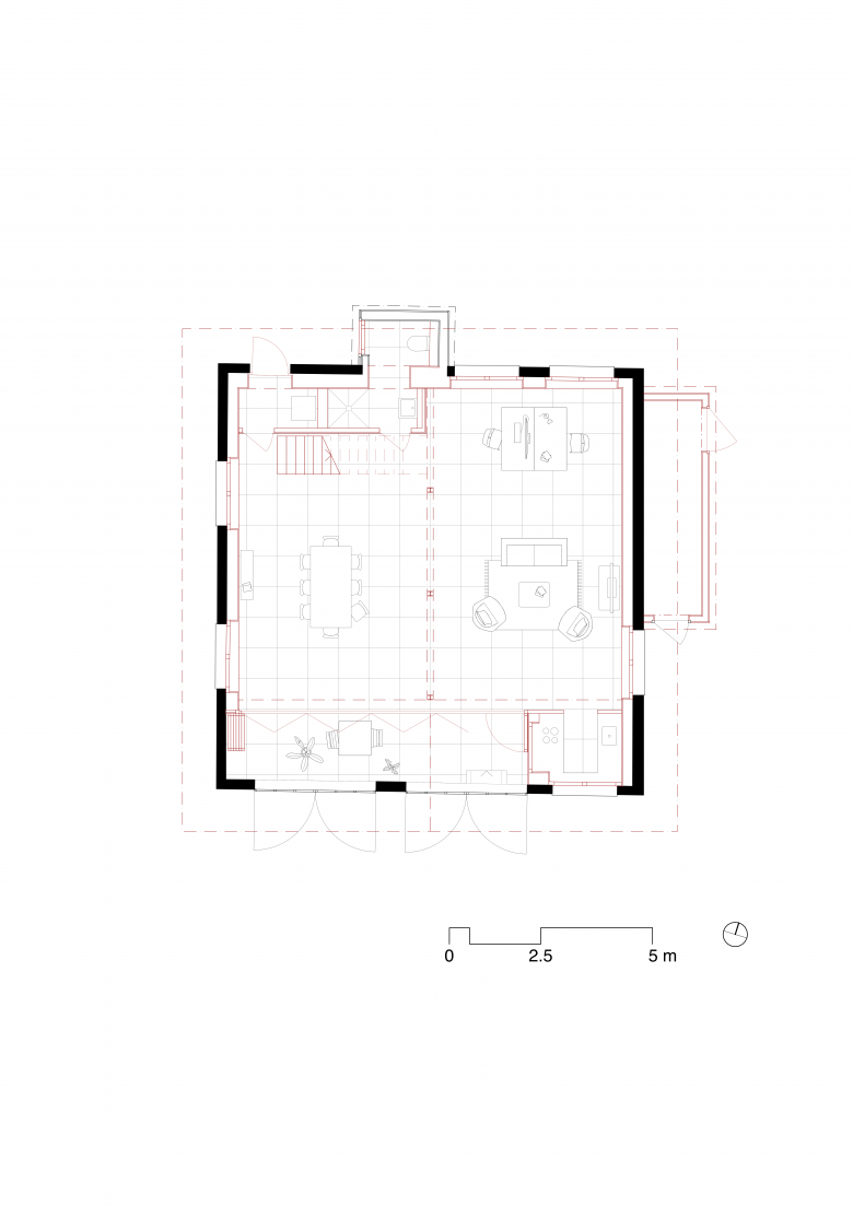
图纸 © Neon Deiss
照片 © unbekannt
建筑师:Neon Deiss GmbH
位置:8173 Neerach, 瑞士
年份:2021
Kreislaufwirtschaft:Zirkular AG
Umnutzung einer ehemaligen Garage zu einem Wohnatelier.
客服
消息
收藏
下载
最近








