查看完整案例

收藏

下载

翻译
建筑师:Kistler Vogt Partner
位置:Zug, 瑞士
年份:2020
Der Ersatzneubau an der Baarerstrasse 86 ist die letzte Etappe des 2003 entstandenen städtischen Bebauungsplans, welcher damit seinen Abschluss findet. Das Neubauvolumen bildet einerseits den nordseitigen Kopfbau der Häuserzeile Baarerstrasse 78 - 82 und andererseits das Gegenüber zum anschliessenden Hochhaus des SOV. Zwischen den beiden Bauten spannt sich ein städtischer Aussenraum auf, welcher gleichzeitig Transparenz schafft zum rückwärtigen Grünraum des Guthirt-Schulhauses.
Die Fassadengestaltung mit vorgehängten Betonelementen orientiert sich an den Gestaltungsprinzipien der Nachbargebäude. Das 6-geschossige Haus nimmt sowohl die Fassadengliederung des Hochhauses als auch die horizontale Bänderung der anschliessenden Häuserzeile auf.
Schalungsglatte und geschliffene Betonelemente gliedern die Fassade und schaffen ein kompaktes, kräftiges Bauvolumen, welches über die erforderliche städtebaulichen Präsenz verfügt, um seine Funktion als Kopfbau der Häuserzeile und als Gegenüber zum Hochhaus erfüllen zu können.
Durch die unterschiedliche Oberflächenbehandlung der Betonelemente werden die beiden Gestaltungsziele, das Einbinden in den Kontext und die Eigenständigkeit des Gebäudes durch eine subtile Weise miteinander verwoben.
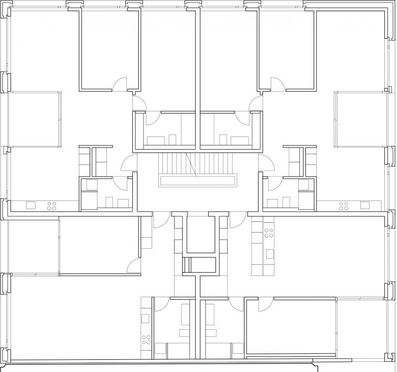
Die insgesamt 19 Wohneinheiten in den 5 Obergeschossen werden über ein natürlich belichtetes, zentral liegendes Treppenhaus erschlossen. Vom 1 bis 4. OG sind jeweils zwei nach Westen und Osten orientierte 2 ½ und 3 ½ Zimmer-Wohnungen angeordnet. Eingezogene Loggias bei den westlichen 2 ½ Zimmer-Wohnungen schaffen einen attraktiven Aussenraum und schützen die dahinterliegenden Zimmer vor den Verkehrsimmissionen der Baarerstrasse. Die Loggias der östlich situierten 2 ½ Zimmer-Wohnungen sind an der südöstlichen Gebäudeecke situiert. Durch die Öffnungen in der Brandmauer profitieren diese von der Nachmittagsonne. Bei den 3 ½ Zimmer-Wohnung gliedert die allseitig verglaste Loggia den Grundriss in eine multifunktionelle Eingangshalle mit anschliessendem Wohn- und Essbereich, welcher sich entlang der Fassade aufspannt. Im 5. OG ist neben zwei 3 ½ Zimmer-Wohnungen eine 4 ½ Zimmer-Wohnung situiert deren Grundriss sich über die gesamte Baukörpetiefe von 22.00m erstreckt. Das zentrale Patio dient dabei als Belichtungs- und Gliederungselement des Grundrisses.
客服
消息
收藏
下载
最近










